在近几年积累的设计能力和记录的基础上,In2工作室对过去的方法进行了优化和改进,使其在空间和交通线设计中得以引入。这种设计没有明显的时尚感,也不涉及材料的过度堆积。我们希望重构In2独有的设计语言,保留5年的记录,作为向客户展示我们设计的范例。
On the basis of the design capacity and records accumulated in recent years, Studio In2 has optimized and improved its past approaches for them to be introduced in space and traffic line design. This design is not overtly stylish and does not involve the over-stacking of materials. We hope to reconstruct the design language unique to In2 to keep a 5-year record as an example to demonstrate our designs to our clients.






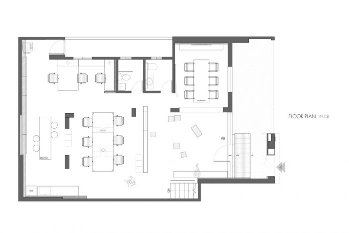
考虑到保留每个空间的初始功能,我们利用建筑现有的结构体量来创造空间层次,并利用场景来进行形象构成。我们将白色和独立的体量与现有的结构整合在一起,为空间结构创造了自然的感觉。
In consideration of retaining the initial function of each space, we used the existing structural volume of a building to create spatial layers and used the scene for image composition. We integrated the white and independent volume with the existing structure to create a natural feeling for the spatial structure.

最后,我们坚持品牌的核心价值,强调线条、体量和区域的布局,创造一个抽象的图像构成。尽管场景发生了变化,但工作场所对我们的团队来说仍然是熟悉的,实现了情感的共鸣和延伸。通过延续、继承和改进我们的思维方式,我们集中在新的工作环境中展示了我们品牌的灵魂和精神。
Finally, we adhered to the core value of our brand by emphasizing the layout of lines, volumes, and areas to create an abstract image composition. Despite the changes in the scene, the workplace still felt familiar to our team, enabling emotional resonation and extension. By continuing, inheriting, and improving our ways of thinking, we concentrated on exhibiting the souls and spirits of our brand in the new work environment.









Architects: Studio In2
Area : 109 m²
Year : 2021
Photographs :Jackal Liu
Manufacturers : Louis Poulsen, FLOS, Roca
Design Lead : Howard Yu, William Sun
Project Manager/ Designer : Wills Chang
City : Taipei
Country:China