在多恩比恩的一个旧车间工作了15年后,我克服了内心的抵触情绪,为自己和员工建了一个工作室。在我漫步布雷根茨的过程中,我不止一次地注意到在火车站附近有一块废弃的小建筑地块,里面有一个不再运行的变压器站。凭着一点运气,我们能够在市中心内买下这块小地块,也许也是因为它的面积小,对投资者没有特别大的吸引力,而且地下停车场也不是一个选项。
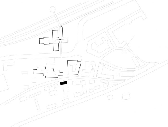
After having worked in an old workshop for fifteen years in Dornbirn, I overcame my inner resistance and built a studio for myself and my staff. On more than one occasion during my walks through Bregenz, I noticed near the train station a small derelict building plot with a transformer station that was no longer in operation. With a bit of luck, we were able to purchase the small plot inside the city center, perhaps also because it wasn't particularly appealing to investors due to the small size and because underground parking was not an option.



最终出现的东西是由可以容纳的东西决定的。那些记得废弃的角落和电力大楼的人不会相信自己的眼睛。以一种近乎超现实的方式,一个非常醒目的、修长的黑暗结构就坐落在Klostergasse上,仿佛它不小心从纯几何学的领域跳到了一个不完整的世界。前景中的地区行政办公室和省警察总部的大尺度,以及周围60年代和70年代的住宅楼,更加突出了这种对比。
What finally emerged was determined by what could be accommodated. Those who remember the abandoned corner and the electricity building won't be able to believe their eyes. In an almost surreal manner, a very striking, elongated dark structure sits right on the Klostergasse, as if it had accidentally popped from the realm of pure geometry into an incomplete world. The large scales of the district administrative office and the provincial police headquarters in the foreground, and the surrounding residential buildings of the 1960s and 1970s, bring out the contrast even more.


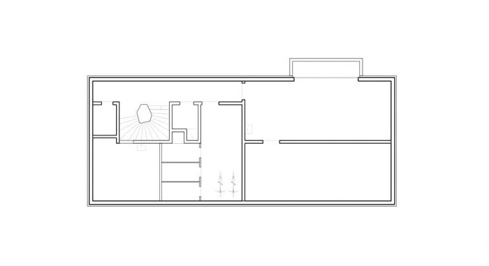
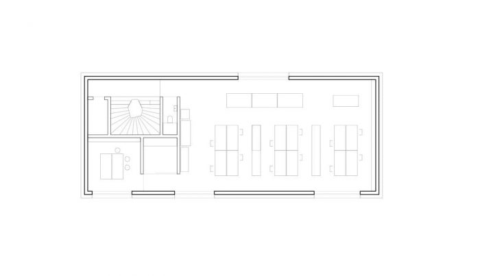
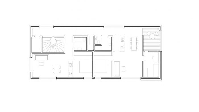
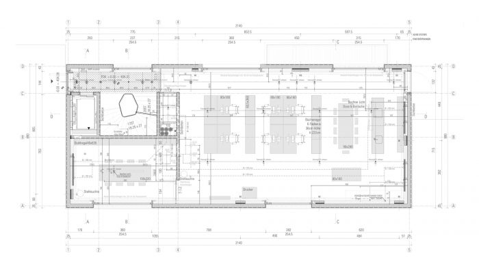
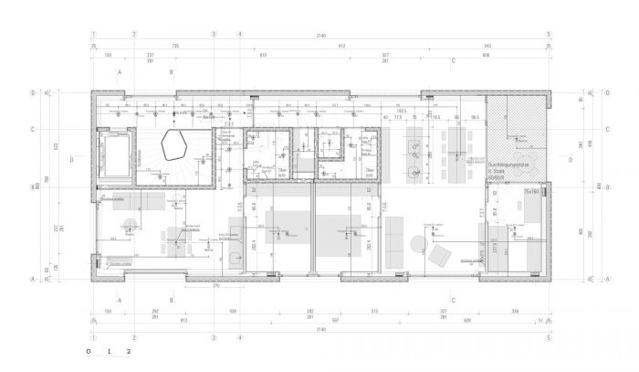
这个细长的结构由四层楼组成,层层叠加。各个楼层的空间都以精确的等比例组织起来,但有不同的大窗户开口,以受益于众多的景观和太阳的位置。每个单元的设计都允许在空间内既工作又生活。使用的灵活性将使该建筑具有长期的价值。
The slender structure comprises four floors that are stacked one above the other. The spaces are organized across all floors with precisely equal proportions, but with varyingly large window openings to benefit from numerous views and positions of the sun. Each unit is designed to allow both working and living in the space. The flexibility of use will give the building long-term value.

该建筑完全由混凝土制成,地板、天花板、墙壁和屋顶都是同一材料。深色的混凝土在这个项目中充分展现了它的雕塑性和大气的潜力。无论是巧妙地拼接还是不加处理,充满活力的表面都象征着工作过程和这种材料的原始力量。
The building is made entirely of concrete, with floors, ceilings, walls, and roof being of the same material. The dark-stained concrete reveals its full sculptural and atmospheric potential with this project. Both skillfully planked and left untreated, vibrant surfaces symbolize the work process and the primal power of this material.



混凝土空间辅以自然染色的云杉和未经加工的钢材制成的家具。表面结构及其触觉质量为各个工作室和生活空间注入了其独特的氛围。大气的每一个细节和刺激的激进性,该建筑唤起了持久的吸引力。它反映了我们的建筑立场,并赋予建筑自己的特点。
The concrete spaces are supplemented with naturally stained spruce and furniture out of unprocessed steel. The surface structures and their tactile quality infuse the individual studio and living spaces with their unique ambiance. Atmospheric in every detail and of a stimulating radicalness, the building evokes a lasting appeal. It reflects our architectural stance and gives the building its own character.




















Architects: Bernardo Bader Architekten
Area : 675 m²
Year : 2020
Photographs :Adolf Bereuter
City:BREGENZ
Country:Austria