Suanphlu办公室是一个私人办公室,业主的阁楼在顶楼。它位于Lao Pueng Thao Kong祠堂旁边,这是Suanphlu社区的一个历史祠堂。建筑物的主要朝向面对着祠堂,而祠堂也在接受大量阳光的西部方向。邻居成为立面设计的一个重要因素。立面设计不仅要考虑用户在内部的视线和通过建筑的阳光量,还要注意这个立面也是社区的背景,有可能将刺眼的阳光反射到邻近的神社。
Suanphlu Office is a private office with the owner's penthouse on the top floor. It is situated next to Lao Pueng Thao Kong shrine, a historical shrine of Suanphlu’s community. The building’s main orientation faces the shrine, which is also in the west direction that receives a lot of sunlight. The neighbor becomes an important factor in the facade design. The facade design has to not only consider the view of the users on the inside and the amount of sunlight getting through the building but also be aware that this facade also serves as a backdrop for the community with the potential to reflect the harsh sunlight onto the neighboring shrine.



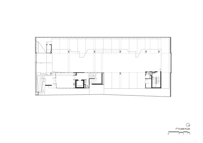
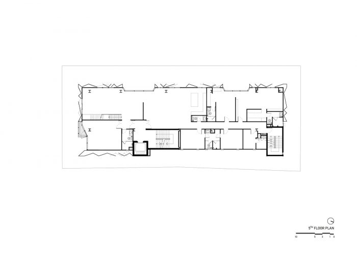
由于房产面积的限制,该建筑的特点是凹陷插入的绿色口袋庭院,从底部向侧面爬升。袖珍庭院在每一层都被连续放置,从一层到另一层,导致每一层都有不同层次的绿色景观。这个想法不仅提高了建筑的立面美感,也为建筑内部的办公空间创造了袖珍绿化的景观。
Due to the property size limitation, the building features concave insertions of green pocket courts, climbing from the base up the side. The pocket courtyards are continuously placed on each level alternatively from floor to floor resulting in the different layers of green views on each floor. This idea not only improves the building’s elevation aesthetics but also creates views of pocket greenery for the office spaces inside the building.


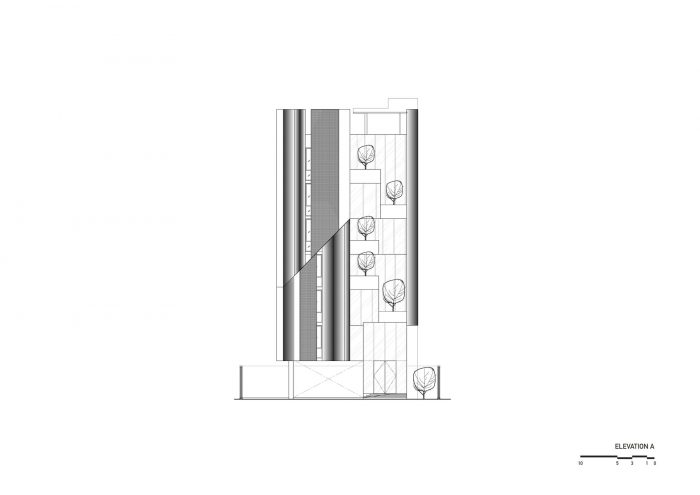
双层外墙的设计是为了保护建筑免受刺眼的阳光照射,减少玻璃外墙的反射,并促进风的流动和通风。大楼的玻璃外墙被铝包层覆盖,以减少热量和进入大楼的阳光量,同时通过其透明、穿孔和不透明的设计,仍然可以看到外面。
The double-skin facade is designed to protect the building from harsh sunlight, reduce the reflection on the glass facade, and encourage wind flow and ventilation. The building’s glass facade is covered by aluminum cladding to reduce the heat and the amount of sunlight entering the building, while still providing visibility to the outside through its clear, perforated, and opaque design.


半光泽的钛合金覆层以不同的角度添加,从而形成了全天变化的阴影图案。平面以不同的角度弯曲,以避免刺眼的阳光反射到邻居身上,而设计中的对角线切割在视觉上将整个建筑的外墙分离成板块,创造出运动和增加动态。外墙成为一个可识别的特征,按照业主的意图为项目增加了一个独特的特征,因此,该项目能够提高内部用户的生活质量,同时也考虑到了现有的周边社区。
The semi-gloss titanium claddings are added at different angles which results in a shadow pattern that changes throughout the day. The planes are bent at different angles to avoid harsh sunlight reflection onto the neighbors while the diagonal cuts in the design visually separate the facade into panels across the building, creating movements and adding dynamically. The facade becomes a recognizable feature that adds a unique characteristic to the project as the owner has intended and as a result, the project is able to enhance the quality of life for the users on the inside while also being considerate to the existing surrounding community.


























Architects: IDIN Architects
Area : 2290 m²
Year : 2020
Photographs :Ketsiree Wongwan
Manufacturers : FAMELINE, Siam Yamato Steel (SYS), TOA, Windset Aluminium
Interior Designer : Inblock Studio
Structural Engineer : C-Insight Company Limited
Owner : Vinsmor Group
Design Team : Jeravej Hongsakul, Eakgaluk Sirijariyawat, Sakorn Thongdoang, Wichan Kongnok
System Engineer : Eakachai Hamhomvong, Panot Kuakoolwong
Contractor : Sorawee Karnchang, Inblock Group
City : Khet Sathon
Country : Thailand