这套面积为 52 平方米的公寓是为一对有两个孩子和一条狗的已婚夫妇设计的临时住所。他们计划两年后搬到一个更大的公寓。
The apartment with an area of 52 m2 was designed for a married couple with two children and a dog as a temporary accommodation. The family planned to move to a larger apartment in two years.


我们在这个项目中的目标是找到解决方案,让小空间的生活也能像大空间一样舒适。
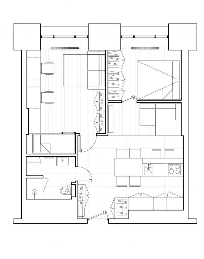
虽然面积有限,公寓也只有两扇窗户,但客户要求我们布置所有必要的功能区:厨房-餐厅、带电视的沙发区、父母卧室和儿童房(包括保姆用的折叠沙发、玩耍和学习区)、带储藏区的浴室以及大量的储藏系统。尽管如此,对客户来说,空间的美学品质与功能同样重要,因为一家人会在这里度过很多时光。
Our goal in this project was to find solutions in which life in a small space would be as comfortable as in a large one.
Although the area is limited and the apartment has only two windows, the clients asked us to place all required functional zones: a kitchen-dining room, a sofa area with TV, a parents’ bedroom and a children’s room, including a folding sofa for a nanny and areas for playing and studying, a bathroom with a loundry zone, plenty of storage systems. But, nevertheless, the aesthetic quality of the space is as important for the clients as its function, because the family spends a lot of time in it.

公共空间兼具客厅、餐厅、厨房和大厅的功能。我们将厨房的橱柜和衣柜合并成一个木制体量,放置在房间入口处。
餐桌与厨房岛相连。一张小巧的转角沙发构成了起居室。在狭小的空间里很难维持秩序,因此我们设计了许多隐藏式储物系统。尽管面积不大,但这个房间看起来却很宽敞。室内隔断上部的窗户透出自然光,将沙发区和父母的卧室隔开。
The common room combines the functions of living room, dining room, kitchen and hall. We combined the kitchen cupboards and the wardrobe into a single wooden volume and placed it at the entrance to the room.
The dining table is attached to the kitchen island. A compact corner sofa forms the living area. It is very difficult to maintain order in small spaces therefore we designed many hidden storage systems. Despite of the small area, this room looks spacious. It is illuminated by natural light passing through the upper window in the interior partition, dividing sofa zone from the parents' bedroom.






父母的卧室是公寓里最小的房间,其中一面墙完全被嵌入式衣柜占据。白色和没有任何细节的外墙隐藏着宽敞的储物格。床后的镜子让空间在视觉上变得更大。
儿童房里的家具是用木头设计的多功能单品。书桌与床铺合二为一。由于公寓的建筑面积并不大,所以多功能性成为首要考虑因素。
The parents' bedroom is the smallest room in the apartment, one of its walls is completely occupied by a built-in wardrobe. White color and total absence of any details on facades hide roomy storage compartments. Mirrors behind the bed make the space visually bigger.
The furniture in the children's room is designed as a single multifunctional object made of wood. The study desk merges to a bunk. Because the floor area of the apartment isn’t large, multifunctionality was made the priority.




公寓的内部装饰是简约的,甚至是朴素的。厨房和浴室都铺设了相同的地砖,墙壁是白色的,家具是由与地板同色系的木材制成。
客户原计划将来将这套公寓出租,但住在这里感觉非常舒适,因此决定留下来。
The interior of the apartment is minimalist, and even austere. The same floor tiles are in the kitchen area and in bathroom, walls are white, and furniture is made of wood of the same color tone as floorboard.
The clients planned to rent out this apartment in the future, but living in it turned out to be so comfortable that they decided to stay.

















Architects: Architectural bureau PROJECT905
Year:2024
Area:52 sq. m
Photographer:Varvara Toplennikova
Lead Architects: Alexey Dunaev, Marianna Zapolskaya
Manufacturers:Union, Olivari, Artemide, Vibia, Samsung, Zehnder. , GIRA, Tikkurila, LAUFEN, FANTINI, Porcelanosa, Mile
City: Moscow
Country: Russia