Kop Zuidas可以被看作是阿姆斯特丹的一个支点。该地点的北侧是Zuidelijke Wandelweg[步行道];Berlage的Plan Zuid和南部的绿色Amstelland之间的历史边界。这条步行道仍然是连接Zuidas和Amstel的重要通道。
The Kop Zuidas can be seen as a pivot point in Amsterdam. The north side of the location is the Zuidelijke Wandelweg [walking path]; the historical boundary between the Plan Zuid of Berlage and the green Amstelland in the south. The walking path still forms an important connection between the Zuidas and the Amstel.




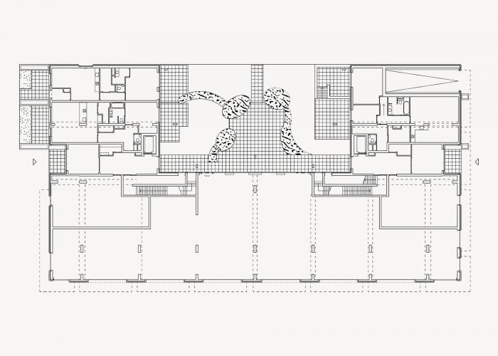
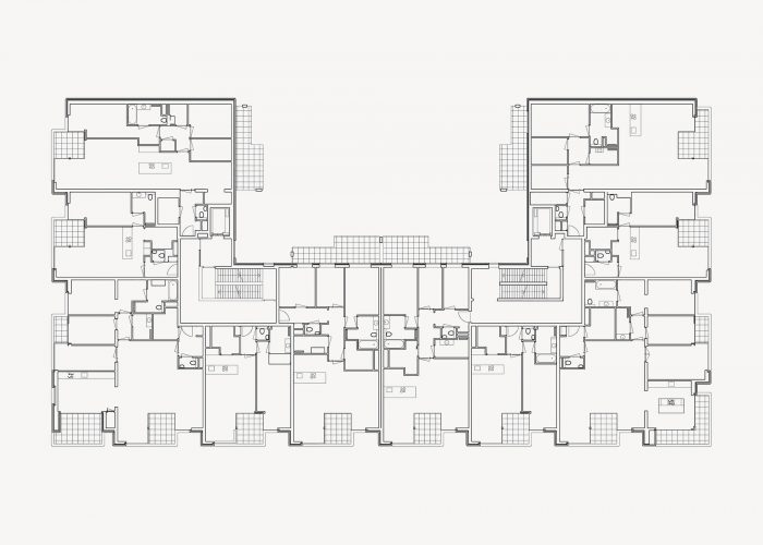
SUD是一座住宅楼,构成了一个街区的头。SUD位于一个广场的正面,形成了Zuidas的这一部分的中心。在规划上,半开放的街区结构响应了邻近的Rivierenbuurt的两种城市规划传统:带有内院的 "经典 "封闭式建筑街区和Rivierenbuurt南边的 "现代 "条形建筑。
SUD is a residential building and forms the head of a block. Located frontally on a square, SUD forms the centre of this part of Zuidas. In plan, the semi-open block structure responds to the two urban planning traditions of the adjacent Rivierenbuurt: the “classic” closed building block with an inner courtyard and the “modern” strip construction on the southern edge of the Rivierenbuurt.


SUD包括一个地下停车场,一个面向广场的商业和零售空间的基座,以及45套舒适的公寓。公寓面积从60到150平方米不等,有很高的天花板。室内的木屋、阳台和屋顶露台通过一个折叠门系统与每个公寓紧密相连。大多数公寓都有一个以上的室外空间,有不同的方向。两个200平方米的顶楼为该建筑加冕。
SUD consists of an underground parking garage, a plinth with commercial and retail spaces facing the square, and 45 comfortable apartments. The apartments range from 60 to 150 m2 and have high ceilings. The indoor loggias, balconies, and roof terraces are closely connected to each apartment via a system of folding doors. Most apartments have more than one outdoor space with different orientations. Two 200 m2 penthouses crown the building.



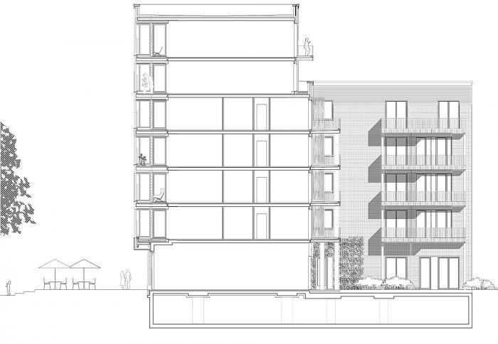
SUD的设计建立在阿姆斯特丹南部现代住宅建筑的传统之上,如De Wolkenkrabber和Zonnehof。这些建筑的特点是对材料的精心使用,通常是用砖头,有表现力的阳台、凸窗和大窗户。
The design for SUD builds on the tradition of modern residential buildings in Amsterdam South, such as De Wolkenkrabber and Zonnehof. Buildings that are characterized by careful use of materials, often in brick with expressive balconies, bay windows, and large windows.


SUD的十三扇窗台围绕着建筑折叠,上面覆盖着柔软闪亮的 "Wittmunder "砖。砖石具有丰富的色彩,以半砖块结合的方式执行,有圆角,窗台有装饰性的图案。天然石材基座和屋顶边缘增强了住宅建筑的雕塑特征,并将其牢牢地固定在新的、生动的广场上。
The thirteen bay windows of SUD fold around the building and are covered with a soft shiny ‘Wittmunder’ brick. The masonry has a rich color nuance and is executed in a half-brick block bond with rounded corners and a decorative pattern in the bay windows. The natural stone plinth and roof edge enhance the sculptural character of the residential building and anchor it firmly in the new and lively square.













Architects: Office Winhov
Area: 8897 m²
Year: 2020
Photographs: Stefan Müller, Max Hart Nibbrig
Manufacturers: Solarlux, Candido, Wittmunder, mutsaers natuursteen, pollybouw, verbaan systems
Lead Architects: Jan Peter Wingender, Jasper ten Bosch
Team:Jan Peter Wingender, Jasper Ten Bosch, Camille Moreau, Charles Hueber, Troy Fawcett, Robert van Driel
Client:COD Development Pioneers
City:Amsterdam
Country:The Netherlands