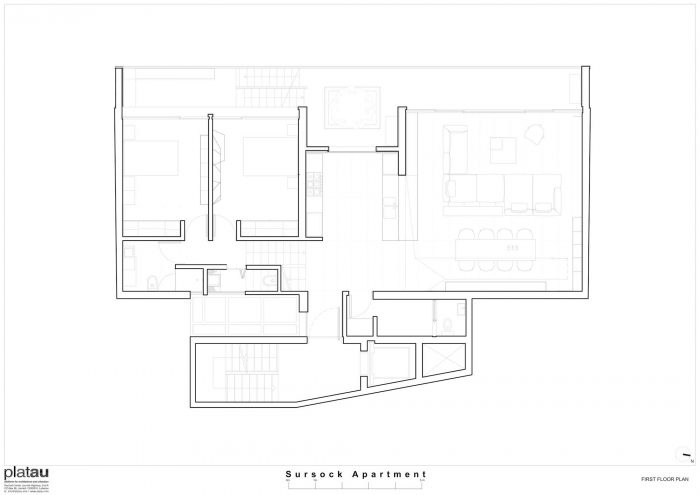
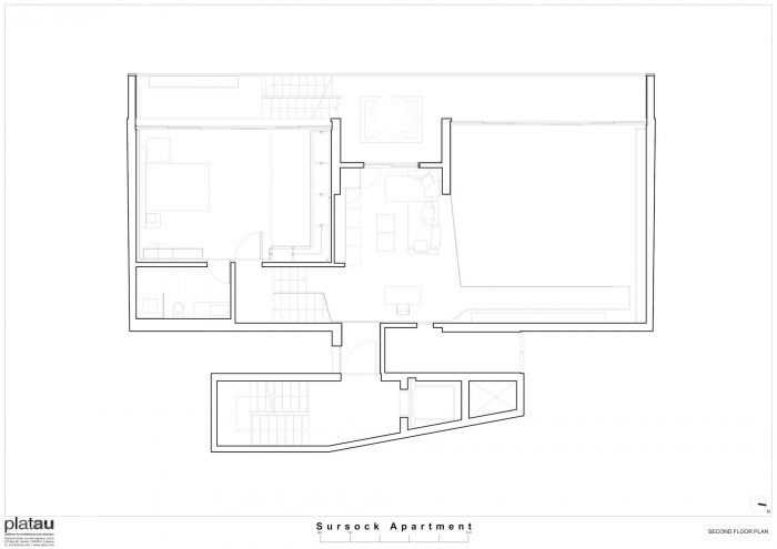
苏尔索克公寓由一个线性分层循环定义,这是其最有趣的建筑特征,在双高接待空间和两个单高卧室层之间波动,并以相同的剪刀形板块挤压到阳台,以定义建筑的外墙。
The Sursok Apartment is defined by a linear split level circulation that is its most interesting architectural feature,fluctuating between a double height reception space andtwo single heights bedrooms’ levels, and extruding out to the balconies in the same scissor-shaped slab to define the façade of the building.



该方案通过揭示沿着公寓长度的混凝土结构墙来加强这种空间安排,使其线性成为公寓主要特征的背景:一个多面的钢铁 "脊柱"。
The scheme reinforces this spatial arrangement by revealing the structural concrete wall that runs along the length of the apartment, allowing its linearity to become the backdrop for the apartment’s main feature: a multifaceted steel“spine”.

这条新引入的脊柱雕塑了流通、表面和空间,构成了公寓的主干部分。它将楼梯的底部与夹层板合并,使夹层和它下面的厨房能够向接待处开放。在接待处,脊柱在一个狭窄的猫道上伸出来,可以看到一边的生活区和另一边的双高书架。脊柱在一个结构性的梯子中与接待处的地板重新连接起来。它的顶部是一个薄钢扶手,成为猫道上的一个书架,上面有一个用于阅读的照明装置。
This newly introduced spine sculpts the circulation, surfaces and spaces that makes the backbone of the apartment: It merges the underbelly of the staircase withthe mezzanine slab, allowing the mezzanine and the kitchen underneath it to open up to the reception. At the reception space, the spine protrudes out in a narrow catwalk that overlooks the living area on one side and a double height bookshelf on the other side. The spine reconnects with the reception floor in a structural ladder. It is topped by a thinsteel handrail that becomes a shelf at the catwalk with a lighting fixture for reading.



偶发性的元素,如木制的入口壁龛、水平的木质书架和照明装置,使混凝土墙和钢制的脊柱生动起来,将它们的规模分解成亲密的实例,而不影响整体的完整性。
Punctual elements like awooden-cladded entrance niche, horizontal wood shelves, and lighting fixturesanimate the concrete wall and steel spine, breaking down their scale into intimate instances without underminingtheiroverall integrity.































Architects : platau
Year : 2017
Photographs :Wissam Chaaya
Manufacturers : Listone Giordano, Porcelanosa Grupo, Vetro vivo
Lead Architect : Boulos Douaihy
Project Managment : Frameworks
Lighting Design : PSLAB
City : Beirut
Country : Lebanon