房屋示范单元是杜塞尔多夫应用科学大学的一个研究建筑,作为对欧洲太阳能十项全能竞赛和北威州生活实验室的贡献。太阳能十项全能竞赛被认为是最大的国际建筑能源竞赛。第20次,世界各地的大学被要求开发和实施可持续建筑和生活的想法。2022年6月,决赛首次在德国举行,更确切地说,是在伍珀塔尔举行。跨学科团队MIMO联合了来自所有七个系(建筑系、设计系、电气和信息工程系、机械和工艺工程系、媒体系、社会和文化科学系以及经济系)的18名教授、约70名学生和10名工作人员,在比赛的所有竞赛类别中展开竞争。
The House Demonstration Unit is a research building of the University of Applied Sciences Düsseldorf as a contribution to the Solar Decathlon Europe and the living.lab NRW.The Solar Decathlon is considered the largest international building energy competition. For the 20th time, universities worldwide were asked to develop and implement ideas for sustainable building and living. In June 2022, the final took place for the first time in Germany, more precisely in Wuppertal. The interdisciplinary team MIMO united 18 professors, about 70 students, and ten staff members from all seven departments (Architecture, Design, Electrical and Information Engineering, Mechanical and Process Engineering, Media, Social and Cultural Sciences, and Economics) to compete in all competition categories of the competition.





来自杜塞尔多夫应用科技大学的团队在 "最小影响-最大产出"(简称MIMO)的指导原则下,着手展示城市背景下整体资源节约型建筑的解决方案。该指导原则意味着,只有那些为地方增加价值,并以最小的影响创造最大的利益的事情才应该做。在太阳能十项全能竞赛中以传统方式实施并在两周内建成的建筑原型被称为房屋示范单元,简称HDU,目前的竞赛版本首次展示了之前所谓的设计挑战中所阐述的概念焦点--以建筑竞赛的方式阐述的城市密集化的重建和扩张概念。
The team from Düsseldorf University of Applied Sciences has set out to demonstrate a solution for holistic resource-efficient buildings in an urban context under the guiding principle ‚Minimal Impact - Maximum Output‘, or MIMO for short. The guiding principle implies that only what adds value to the place and creates maximum benefit with minimum impact should be done. The building prototype to be implemented traditionally in the Solar Decathlon competition and to be erected in two weeks is called House Demonstration Unit, HDU for short, and the current competition edition shows for the first time the concept focal points elaborated in the preceding so-called Design Challenge - a redevelopment and expansion concept for urban densification elaborated in the style of an architecture competition.



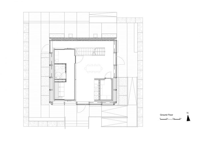
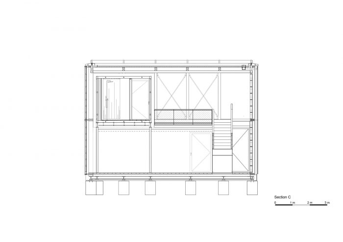
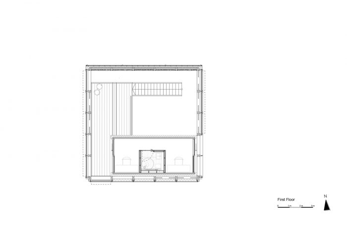
MIMO团队的HDU示范性地展示了两个缩短至约8米的紧凑住宅模块和一个技术模块,它们被放置在两层之上,并被气候围护结构所包围。围绕着公共房间和住宅模块的所谓气候围护结构通过大型可开启的天窗和外墙的玻璃百叶窗形成一个热缓冲空间。在两层楼中的每一层,都有一个精简到最基本的住宅模块,以及公共区域,如厨房、大餐区、休息室,以及包括储藏空间在内的家具开发。
The HDU of Team MIMO exemplarily shows two compact residential modules shortened to approx. 8 m as well as a technic module, which is placed on top of each other over two levels as well as surrounded by the climate envelope. The so-called climate envelope surrounding the common room and residential modules forms a thermal buffer space via large, openable skylights and glass louvers in the facade. On each of the two levels, there is a residential module reduced to the bare essentials, as well as communal areas such as a kitchen, a large dining area, a lounge, and a development of furniture including storage space.


这些模块是基于坚实的、无胶的实木墙壁和天花板元素,它们被预制成房间模块,并被运到伍珀塔尔的太阳能校园完全安装。除了无胶木和未经处理的软木,粘土是该项目中最重要的天然建筑材料。MIMO团队的HDU将作为研究对象在伍珀塔尔的太阳能校园使用三年,作为联邦州北莱茵-威斯特法伦州(NRW)living.lab的一部分。北威州生活实验室是北威州关于气候中立建筑和未来城市可持续生活的中央研究和教育设施。
The modules are based on solid, glueless solid wood wall and ceiling elements that were prefabricated into room modules and transported to the Solar Campus in Wuppertal fully installed. Besides glue-free wood and untreated cork, clay is the most important natural building material in the project. Team MIMO‘s HDU will be used as a research object for three years at the Solar Campus in Wuppertal as part of the living.lab of the federal state North Rhine-Westphalia (NRW). The living.lab NRW is the central research and educational facility of the state of NRW for climate-neutral building and sustainable living in the city of the future.
















Architects: Team MIMO, University of Applied Sciences Düsseldorf
Area : 115 m²
Year : 2022
Photographs :Marvin Hillebrand
City:WUPPERTAL
Country:Germany