超大和真实: SWEETS BANK是不可错过的一站--适合社交媒体的SWEETS BANK项目是一个基于 "城市中的大客厅 "概念的综合设施。该网站的大型但精心设计的桌椅旨在表达Shunkado公司的口号:"我们希望人们在餐桌上与甜食一起度过家庭时光"。在现代社交媒体时代,一张照片就能瞬间俘获人心,建筑本身的形象成为媒介,吸引人们来到区域城市,并创造出令人难忘的体验,向世界发布。
Outsized & Authentic: SWEETS BANK is a Must-See Stop - The social media-friendly SWEETS BANK project is a mixed-use facility based on the concept of "a large living room in the city.” The site’s outsized, but carefully designed tables and chairs are intended as an expression of the Shunkado corporate slogan: "We want people to spend family time at the table with sweets." In the modern age of social media, in which a single photo can instantly capture hearts and minds, the image of the building itself becomes the medium, attracts people to regional cities, and creates memorable experiences for posting to the world.



真实性和价值--为了满足全球游客的期望,我们将桌椅设计成实际尺寸的13倍,同时追求建筑设计的质量和形式。我们相信,为家具争取一个真实的外观是创造建筑价值的关键。这反过来又会使城镇和公司受益,并使其作为一种广告媒介的吸引力最大化。这是在讨论了该建筑应如何从长期角度为城市景观和企业活动的形成做出贡献后得出的结果。由此产生的紧凑场地本身就是一个世界,为游客提供了一个令人兴奋的独一无二的体验。
Authenticity and Value - In order to meet the expectations of global visitors, we designed the tables and chairs at 13 times their actual size, pursuing both architectural design quality and form. Striving for a genuine look for the furniture was key to creating architectural value, we believed. This, in turn, would benefit both the town and the company, and maximize its appeal as an advertising medium. This resulted from discussions on how the building should contribute to the formation of the cityscape and corporate activities from a long-term perspective. The resulting compact site is a world unto itself, providing visitors with an exciting one-of-a-kind experience.



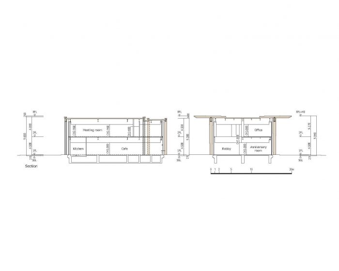
超大的家具和玻璃盒--该建筑由两个主要元素组成:作为避雨和遮阳的家具,以及确保舒适的玻璃盒。超大的桌子和椅子的设计紧密地代表了实际的家具,同时克服了与结构、装饰、排水和机械系统有关的挑战,创造了一个现实,增强了城市的魅力,吸引了人们。玻璃箱的设计很抽象,细节上也很简单,作为家具的背景。
Outsized Furniture & Glass Boxes - The building is composed of two major elements: furniture as shelter from the rain and sun, and glass boxes that ensure comfort. The outsized table and chairs were designed to closely represent actual furniture while overcoming challenges related to structure, finish, drainage, and mechanical systems, creating a reality that enhances the city and attracts people. The glass boxes were designed abstractly and simply in detail to serve as a furniture backdrop.


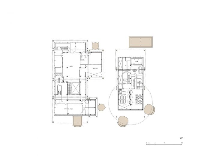
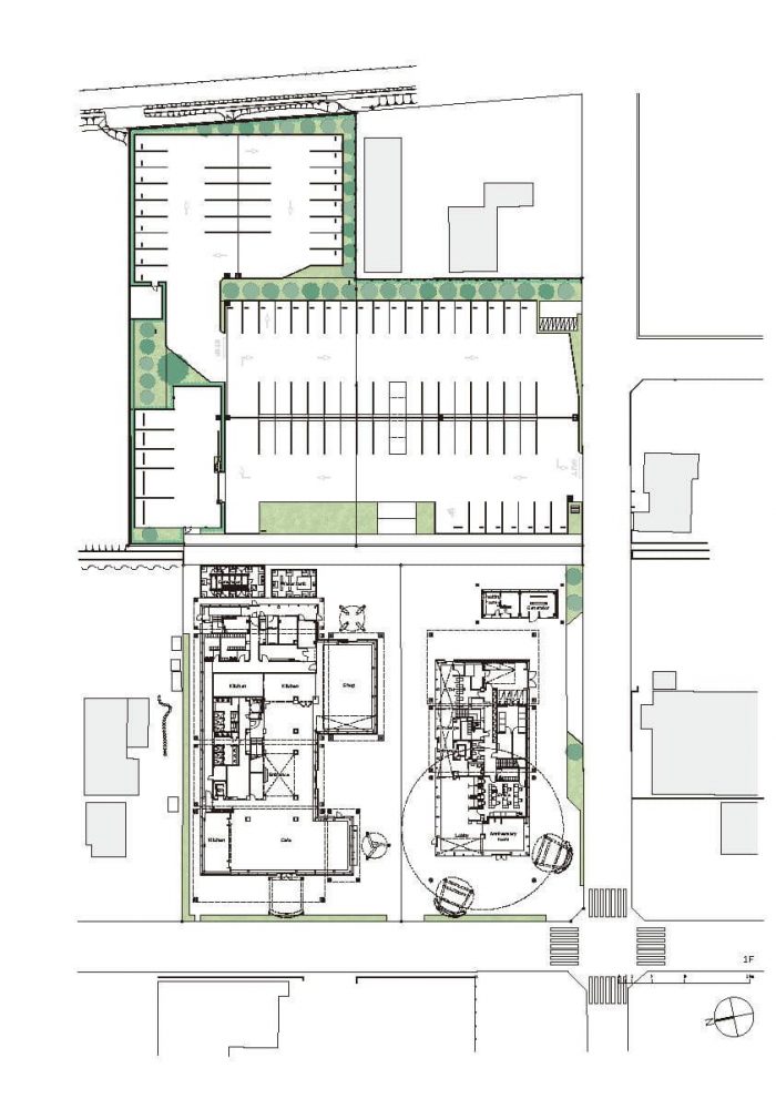
城市中的大客厅--大客厅的概念已经成为家庭聚会的标志性地点,同时也是欢迎客人来此的地方。为了使这个空间易于理解,并让第一次来的人感到熟悉,桌子和椅子被设计成Shunkado的咖啡馆、商品店和当地的滨松岩田信用金库的形象。其目的是通过一个连接人们的社区综合体,在城市中创造活力。
A Large Living Room in the City - The concept of the large living room has become an iconic location where families can gather, as well as a place for welcoming guests to the area. In order to make the space easy to comprehend and familiar to first-time visitors, the tables and chairs were designed in the images of Shunkado's café, merchandise shop, and a local Hamamatsu Iwata Shinkin Bank branch. The aim was to create vitality in the city via a community-based complex that connects people.



媒体影响—在COVID-19大流行期间,该设施正式完工并开业后,该公司的社会媒体追随者急剧增加。该公司还出现在滨松市针对入境游客的视频中,以及日本政府针对台湾的社交媒体中。
Media Impact - The company's social media followers grew dramatically after the facility’s official completion and opening in the midst of the COVID-19 pandemic. The company also appeared in a Hamamatsu City video for inbound visitors, and in the Japanese government's social media for Taiwan.









Architects: Nikken Sekkei
Area : 2684 m²
Year : 2020
Photographs :Kenta Hasegawa, Shohei Nakai
Interior Design : Tanseisha
Clients : Shunkado Co., Ltd.
City : Hamamatsu
Country : Japan