直到2015年夏天,瑞士联邦在科特迪瓦的代表是位于阿比让高原区的大使馆,位于一栋办公楼的上层。然后在2013年,瑞士联邦建筑与物流办公室(OFCL)决定收购位于该市迷人的科科迪区的挪威大使旧居,并计划对现有建筑进行翻新和扩建,以容纳其新的大使馆。
Until the summer of 2015, the Swiss Confederation was represented in Côte d’Ivoire by an embassy located in Abidjan’s Plateau district, in an upper storey of an office building. And then in 2013 the Office Fédéral des Constructions et de la Logistique (OFCL – Swiss Federal Office for Buildings and Logistics) decided to acquire the former residence of the Norwegian ambassador in the city’s attractive Cocody district, planning to renovate and extend the existing building in order to house its new embassy there.



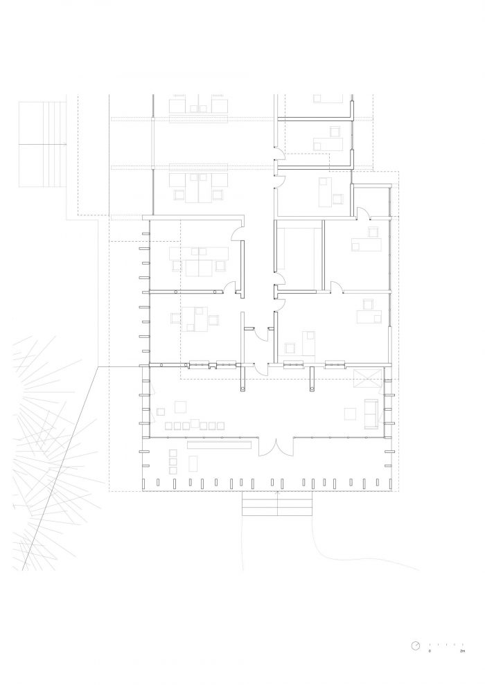
该建筑矗立在一块宽阔的土地上,上面长满了壮丽的树木。现有的别墅可以追溯到20世纪60年代,坚固且布局合理,其水平设计被分成规则的结构单元并向地面开放。因此,该项目涉及将一个私人住宅改造成一个具有代表功能的工作场所,它将成为瑞士联邦外交部代表团及其外交和领事部门,以及瑞士发展与合作署(SDC)办公室的所在地。
The building stands on a generous plot with magnificent trees. The existing villa, dating from the 1960s, was sturdy and well laid-out, its horizontal design divided into regular structural units and opening onto the grounds. The project therefore involved converting a private residence into a workplace fulfilling a representative function, one that would host the Swiss Federal Department of Foreign Affairs mission, with its diplomatic and consular sections, as well as an office of the Swiss Agency for Development and Cooperation (SDC).

新的建筑需要实现以下四个目标:确保大使馆在新的环境中能够有效运作;尊重场地和现有的别墅;考虑到科特迪瓦当地的特殊气候条件;最后,体现瑞士的价值观。
The new building needed to fulfil the following four objectives: to ensure that the embassy could function effectively in its new setting; to respect the site and the existing villa; to take the specific local climate conditions of Côte d’Ivoire into account; and, finally, to embody Swiss values.

一个公共/私人的别墅
主要的干预措施是在别墅的临街一侧增加一个新的 "公共 "建筑,该建筑是处理签证的领事部门所在地。
A PUBLIC/PRIVATE VILLA
The major intervention involved extending the villa on the street side by adding a new “public” building which houses the consular section, where visas are handled.

新建筑通过扩展其水平屋顶扩大了原来的别墅,创造了一个新的公共立面,该立面高于地面,通过一个宽阔的楼梯进入。屋顶板靠在混凝土柱子上--不规则的间隔和不同角度的设置。当游客登上楼梯时,他们会被一个宽大的外部有盖走廊所欢迎。这个空间作为一个阴凉的等待区,同时也保护了玻璃幕墙免受恶劣天气的影响。
The new building expands the original villa by extending its horizontal roof, creating a new public façade which is raised above ground level and accessed via a broad stairway. The roof slab rests on concrete pillars – irregularly spaced and set at various angles. As visitors ascend the stairway they are welcomed by a wide external covered gallery. This space acts as a shaded waiting area and also protects the glazed façade from bad weather.

修长的接待大厅设有柜台,专门处理签证申请、瑞士公民的咨询和其他领事事务。该空间向大楼入口和使馆花园的绿色植物开放。四个柜台设置在后墙,墙面上有不同种类的科特迪瓦木条,与垂直的镜面条交替使用,反映了外面的花园。
The elongated reception hall has counters dedicated to handling visa applications, enquiries from Swiss citizens and other consular matters. The space opens onto the building entrance and the greenery of the embassy gardens. Four counters are set into the back wall, which is lined with strips of Ivorian wood, of various different species, alternating with vertical mirror strips which reflect the garden outside.

瑞士的形象
新的公共立面旨在反映瑞士的力量和多样性--一个享有巨大的政治和经济稳定的国家的力量。柱子传达了一种纪律感,暗示了安全感。它们略带棱角的形式,边缘向游客倾斜,表达了系统内的运动元素,一种包容多样性的欢迎的慷慨。垂直的线条被倾斜的表面所抵消。
AN IMAGE OF SWITZERLAND
The new public façade is intended to reflect Switzerland’s strength and diversity – the strength of a country that enjoys tremendous political and economic stability. The pillars convey a sense of discipline and suggest security. Their slightly angled forms, with edges tilted towards the visitor, express an element of movement within the system, a welcoming generosity which accommodates diversity. The vertical lines are offset by the slanting surfaces.

象牙海岸的材料
建筑的原始混凝土呼应了阿比让在20世纪60年代和70年代建造的宏伟的现代主义建筑遗产,并与同样来自这个时期的原始别墅相协调。混凝土的力量和印在混凝土中的模板木材的感性,是本设计试图在科特迪瓦当地环境中庆祝和重新建立的品质。除了向过去的宏伟建筑致敬外,这种材料的使用也适应了当地的资源(砾石、沙子、水泥和模板木材),减少了材料的进口量。
IVORIAN MATERIALS
The raw concrete of the construction echoes Abidjan’s magnificent modernist architectural heritage, built during the 1960s and 1970s, and harmonises with the original villa, also from this period. The power of the concrete and the sensuality of the formwork timbers, imprinted in the concrete, are qualities this design seeks to celebrate and re-establish in the local Côte d’Ivoire context. As well as paying homage to the majestic buildings of the recent past, the use of this material is also adapted to local resources (gravel, sand, cement and formwork timber), reducing the quantity of materials to be imported.

瑞士-科特迪瓦
新的柜台墙在设计中起着关键作用--领事人员和当地公民或瑞士居民之间的界面。它唤起了两国之间的交流,包括文化和经济方面的交流,通过将科特迪瓦的木条与反映玻璃柜台周围花园的镜子并列在一起。
SWITZERLAND – CÔTE D’IVOIRE
The new counter wall plays a key role in the design – the interface between the consular staff and local citizens or Swiss residents. It evokes the exchanges between the two countries, both cultural and economic, by juxtaposing strips of Ivorian wood with mirrors reflecting the garden around the glazed counter desks.

















Architects: LOCALARCHITECTURE
Area: 208 m²
Year: 2015
Photographs: Iwan Baan
Project Architects:Antoine Robert-Grandpierre, Manuel Bieler, Laurent Saurer, Diana Brasil
Local Architect:Cabinet A.C.A., Francis Sossah.
Structural Engineer:Thomas Jundt Ingénieurs, Carouge, CH Thomas Jundt
Electrical Engineer:Perrin & Spaeth Ingénieurs, Renens, CH Michel Marville
Security Engineer:Nicolas Tireford
General Contractor:Fabio De Luca
Chef De Chantier:René Häni
Plot Surface:5.850 sqm
City:Abidjan
Country:Côte d'Ivoire