T-house位于3.77x11.32米的土地上,深藏在西贡的一条小而长的巷子里。这座房子既是一对年轻夫妇的家,也是他们两个孩子的游乐场。 胡志明市总的来说,特别是第6区是人口密集的地区,有600多条小巷,长度超过70000米。在小巷深处,有相当多的联排别墅,水平面狭窄,面积小。此外,年轻家庭(2-4人)的住房需求正在增加。
T-house is located on the land of 3.77x11.32m, deep in a small and long alley of Saigon. The house is both a home for a young couple and a playground for their two children. Ho Chi Minh City in general and District 6 in particular are densely populated areas, with over 600 alleyways over 70 000 m long. Deep in the alleys, there are quite a few townhouses with narrow horizontal facades and small areas. Besides, housing demand for young households (2-4 members) is increasing.




从这里,问题被提出来了,"为年轻家庭提供面积和成本有限的房屋模型"。争取建立一个没有分隔的空间,一个儿童的游乐场,所有成员可以更容易地相互联系和沟通。
From there, the problem was posed "House model for a young family with limited area and cost". Towards a space without separation, a playground for children, where all members can connect and communicate with each other more easily.


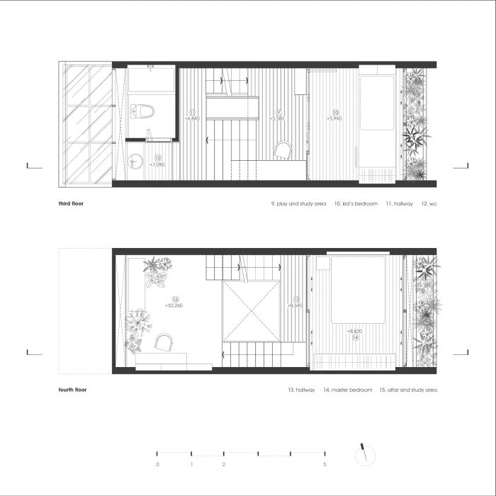
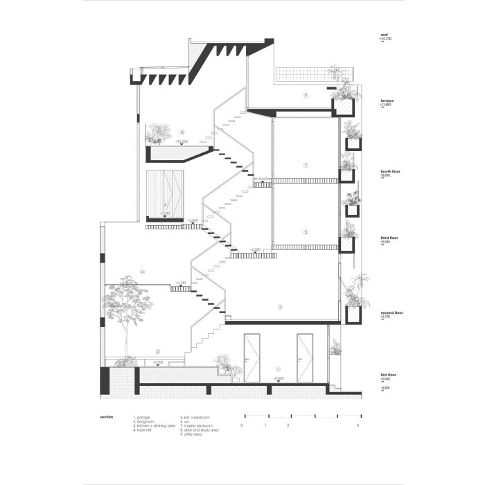
面积有限,房子的结构必须增长高度,以确保功能使用的需求。分层布局,11层垂直交错组装,通过灵活的交通系统连接,从而创造出许多不同高度的空间。居住和玩耍的空间被安排在一起,相互交织。越往上走,空间就越密集,越私密。
Limited in area, the structure of the house must grow in height to ensure the demand for functional use. Split floor layout with 11 floors assembled staggered vertically, linked by a flexible traffic system, thereby creating many spaces of different heights. The spaces for living and playing are arranged and intertwined. The higher you go, the more dense and private the space will be.


交通结构被修改并作为生活空间(操场、图书馆......),以帮助消除移动时的无聊感,并消除楼层之间的分离感。空间被来自楼板之间的标高变化的 "软限制 "所分割 - 一个在垂直和水平方向上不断发展的楼层结构。楼层的定义被移除,取而代之的是一连串未被分割的生活空间。所有这些都为房子创造了一个总体 "氛围"。
Traffic structures are modified and used as living spaces (playgrounds, libraries, ...) to help eliminate boredom when moving and erase the sense of separation between floors. The spaces are divided by "soft limits" from the elevation changes between the floor slabs - a floor structure that continuously evolves both vertically and horizontally. The floor definition is removed and replaced with a sequence of undivided living spaces. All that creates a general “atmosphere” for the house.

尽量减少钢筋混凝土结构的体积,在外壳(墙和屋顶地板)内是一个预先组装的钢木地板系统,以创造最轻的感觉。稀疏的木质地板、交错的布局以及灵活的悬空楼梯的形式,使 "生活氛围 "能够潜入房屋的每个角落。
Minimizing the volume of reinforced concrete construction, inside the shell (wall and roof floor) is a pre-assembled steel wooden floor system, in order to create the lightest feeling. The form of sparse wooden floors, staggered layout, and flexible and suspended stairs, allow the "living atmosphere" to creep into every corner of the house.


T-house是我们在建筑实践中针对城市筒子楼问题,将 "多层住宅 "结构研究为 "连续楼层 “结构的第一步。
T-house is the starting step for the study of the "multi-story house" structure to the "continuous floor" structure in our architectural practice for the urban tube house problem.




















Architects: H.a
Area: 42 m²
Year: 2022
Photographs:Quang Dam
Manufacturers: AutoDesk, Luu’s Atelier, Megaman, Toto, Trimble Navigation, Xingfa
Lighting Consultants: Megaman
Design Team: Trung Huu Vuong , Minh Tien Chau, Quoc Huy Tran
Construction Of Terrazzo: Mr. Loc
Construction Of Curtains + Rope Net: Lam.weavingspaces
Structure And Construction Supervision: Minh Lam Coltd
Wood Fabrication Services: Luu's Atelier
Steel Fabrication: Tai Loi Coltd
Mep & Hvac Consultants: Minh Lam Coltd
City: Ho Chi Minh City
Country: Vietnam