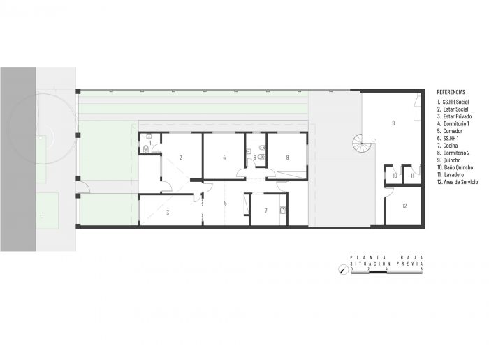
Reforma TA包括对一个简陋的、已经老化了30多年的家庭住宅的修复。它的建筑和空间质量由于时间的流逝而受到影响,并且与客户所要求的当代功能和舒适度的要求相悖。该项目从一开始就提出了各种预算、技术和内涵方面的挑战,因为除了要在合理的成本范围内解决漏水、潮湿、地板下沉、裂缝和排列不整齐的围墙之外,我们还必须考虑到房子的使用者将是一位盲人和他们的老母亲。这就决定了我们的标准是无障碍性、光亮度、空间流动性、颜色和纹理的适当处理等等。
Reforma TA consists of the rehabilitation of a humble and deteriorated family home of more than 30 years. Its constructive and spatial qualities were compromised by the passage of time and opposed to the contemporary requirements of functionality and comfort requested by the client. The project presented various budgetary, technical and connotative challenges from the start, since in addition to solving leaks, humidity, subsidence of floors, cracks and poorly arranged enclosures within a reasonable cost, we had to consider that the users of the house would be a blind person with their elderly mother. This framed our criteria of accessibility, luminosity, spatial fluidity, appropriate handling of colors, textures, etc.




人们常说,每一项改革都是一个潘多拉的盒子。无论盒子有多大,它总是提供惊喜,对工作室来说,这是探索基于创意和材料逻辑的解决方案的机会,使用回收和适应技术。作为第一项措施,我们寻求通过拆除不必要的隔断墙来清理社会空间。这一行动将使我们能够为围墙内部提供幅度,以及更大的亮度,这对盲人的感知至关重要,在某些情况下,盲人有能力区分光和影之间的对比和不透明度。
It is often said that each reform is a pandora's box. No matter the size of the box, it always offers surprises, which, for the studio, are opportunities to explore solutions based on creative and material logic, using recycling and adaptation techniques. As a first measure, we seek to clear the social space through the demolition of unnecessary dividing walls. This action would allow us to provide amplitude, as well as greater luminosity to the interior of the enclosure, which is essential for the perception of a blind person, who, in certain cases, has the ability to differentiate between the contrasts and opacities between light and shadow.

在进行干预工作时,我们发现屋顶木材与承重墙的连接处完全腐烂。这就产生了一个大胆的结构性解决方案,虽然简单有效,但不是完全更换支架(产生巨大的成本和缺乏独创性),而是故意切断两端,使其脱离明显的支撑,并使眼睛已经习惯的这种遭遇戏剧化。这是通过支撑屋顶和在整个空间横向安排四个IPN型材来实现的,并通过从拆除中回收的反梁的长度进行间隔,将点负荷分配给插入墙壁的一些钢筋混凝土枕木,吸收它们的剪切力,减轻因其本身的组成、湿度和时间的推移而被削弱的承重砌体的工作。
While working on the intervention, we found the roof timbers completely rotten where they meet the load-bearing walls. This gave rise to a bold structural solution, although simple and effective, where instead of completely replacing the braces (incurring a great cost and lack of ingenuity), the ends were deliberately cut to detach them from the obvious support and dramatize this encounter to which the eyes are already accustomed. This was done by propping up the roof and arranging four IPN profiles transversally throughout the space and spaced apart by the length of the counter beams recovered from the demolition, distributing point loads to some reinforced concrete sleepers inserted in the walls, absorbing their shear forces and relieving the work of a load-bearing masonry weakened by its very composition, humidity and the passage of time.



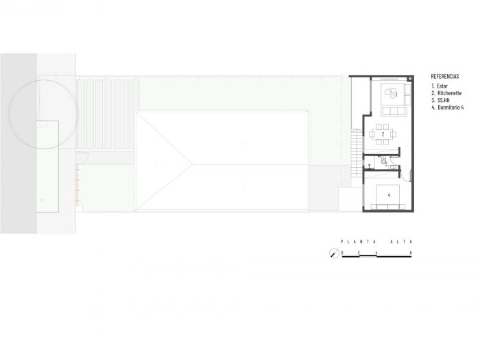
木制开口被回收、修复和再利用,采用传统的百叶窗类型,根据空间的便利性及其功能、通风或流通,将其旋转90度,成为水平或垂直的旋转板。这种操作为房子提供了一种新鲜感和原创性。在地板上,也在某些区域进行了回收,加入了一个引导元素:盲人的引导路径,由普通的砖块制成,由于其粗糙度与一般的釉面陶瓷地板形成对比,便于阅读通过配备空间的主要移动轴。
Wooden openings were recycled, restored and reused, with a typology of traditional shutters that are rotated 90 degrees to become pivoting panels horizontally or vertically according to the convenience of the spaces and their function, ventilation or circulation. This operation provided an air of freshness and originality to the house. In the floor, which is also recycled in certain sectors, a leading element is incorporated: a guiding path for the blind, made of common bricks that, due to their roughness in contrast to the general glazed ceramic floor, facilitate the reading of the main axes of mobility through the equipped spaces.


最后,作为一种创造性和预算工具,废弃的陶瓷砖被用于过滤器,解决了关于公共道路和房屋内服务空间的隐私问题。其结果是,一个当代的低预算住宅适应了一个特殊家庭的需求,其中光线、自然通风和对材料的诚实使用是日常享受的明显特征。
Finally, and always within the line of recycling as a creative and budgetary tool, the obsolete ceramic tiles were used in filters that solve the requested privacy regarding the public road and the service space inside the house. As a result, a contemporary low-budget home adapted to the needs of a special family, where light, natural ventilation and honesty in the use of materials are evident for daily enjoyment.










Architects: OMCM arquitectos
Area : 252 m²
Year : 2022
Manufacturers : AutoDesk, Sika, Aciron Metales, Deca, Docol, FV, Guazukol, Irene Industrial y Comercial, Klaukol, Mateco, PisoForte, Tramontina, Trimble Navigation, Votomasa
Project And Construction : María Paz Chamorro, Matías Ortiz
Collaborators : Sofia Rojas, Mauricio Paiva, Yeruti Amarilla
City : Asunción
Country : Paraguay