这座新房子是在现有家庭住宅的基础上,由70-80年代著名的建筑师事务所Rifenberg和Rirkrit Architects在40多年前设计的,他们的著名作品之一是位于Huahin和Chidlom Place的Baan Kai mook,以及在素坤逸地区的大量私人高端住宅。他们的著名作品之一是Baan Kai mook在Huahin和Chidlom Place以及大量的私人高端住宅在素坤逸地区。房子的设计是现代简洁的建筑形式,看起来和现在一样现代。
This new house is an addition to existing family house designed by a famous architect firm in 70-80’s, Rifenberg and Rirkrit Architects over 40 years ago. One of their well-known works is Baan Kai mook in Huahin and Chidlom Place along with a great number of private hi-end residences in Sukhumvit area. The house design is modernly clean with simple building form that looks as modern as it is today.



时过境迁,家庭也在不断壮大。是时候扩大房子了。家人非常喜欢现有的房子,最初并不想在同一块土地上建造新的房子。起初,他们想在附近的另一块地皮上建新房,但家人会完全分开。 我们得到了一个机会,与该家庭合作,并尝试提出一个与现有房屋共存的设计方案。在尊重他人的前提下,我们成功地将新房与现有的房子放在中心位置,使其在功能和视觉上与现有的房子相连接。
The time has passed and the family has grown. It is the time to extend the house. The family loves the existing house so much and initially didn’t want to build a new house in the same plot. At first, they want to build a new house in another site nearby but the families would be totally separated. We got a chance to work with the family and try to come up with a design solution to coexist with the existing house. With a respectful layout, we managed to place a new house centered with the existing house, so it is connected to the existing house functionally and visually.

对我们来说,设计一个盒子形状的房子是不常见的,但这是业主的选择,希望有一些与现有的房子不同的东西。我们面临的挑战是如何让房子既现代又不破坏过去。
It is not typical for us to design a boxed shape houses but this is the owner choice to have something different from the existing. A challenge is to make the house as modern and yet not to undermine the past.

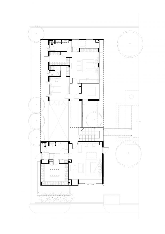
尽管是一个简单的长方体,但我们创造了一个面向现有房屋的凹陷庭院,打开了新房子的生活区域,使其在视觉和物理上与老房子相连接。这在两栋房子之间创造了一个对话。 连接处被设计在楼梯台阶处,以允许一些灵活性或水平变化,也作为房屋的有意义的过渡(时间的通道)。桥的设计尽可能的透明,但对现有房屋的改动最小。只有一个窗户板从现有的房子被删除,以创建连接。
Despite a simple rectangular box-like masses, we create a recessed courtyard facing the existing house that opens up the new house living area to connect to the old house visually and physically. This creates a conversation between the two houses. The connection is designed to be located at the stair landing to allow some flexibility or level changes and also as a meaningful transition of the houses (a passage through time). The bridge was designed as transparent as possible and yet the least modification to the existing house. Only one window panel from existing house was removed to create the connection.

房子的规划是非常简单和直接的。 建筑形式要谦虚、简单,要与众不同,又要谦虚。建筑配色以单调或淡雅的颜色为主,多以灰白色为主,让房子更有亲切感。房子内部的装修以简洁的细节为主,这样才能经得起时间的考验。 墙面上有大量的储物柜,作为业主的一大设计标准,所以橱柜工程贯穿整个房子,与房子融为一体。光线是房子的另一个因素。新房中引入了天窗,这是从现有房屋中延续下来的,让空间尽可能的明亮。天窗被用于生活空间、洗手间和步入式衣柜。
The house plan is very simple and straight forward. The building form is to be modest and simple to be different and yet to be humble. Building color scheme is a monotone or muted color, mostly off white color to make the house more intimate. The interior of the house is simple with clean details, so it will last through the time. There are a great amount of wall cabinets for storages as a big design criteria from the owner, so the cabinet works are integrated into the house through-out the house. Light is another factor of the house. Skylights are introduced to the new house which carried on from the existing house to give the spaces a bright as possible. The skylights are used in living space, restroom, and walk-in closet.


业主的另一个要求是最少的维护,所以地面的墙面采用墙砖,上层采用铝制外墙,以达到免维护的要求。铝合金的典型部分被精心安排,使房子具有独特的个性,既温暖又不失现代感。我们使用了典型的木制房屋细节的模式,但用铝制盒子做出来。
A least maintenance is also another requirement from the owner, so the walls on ground level are cladded with wall tiles and with aluminum façade on upper level to give a free maintenance as requested. Aluminum typical sections are arranged carefully to give a unique character to the house that is still warm and not too modernized. We used the pattern from typical timber house details but make out of aluminum boxes.

我们很荣幸能在传奇建筑师身边设计这栋房子。这将是另一个温和的现代房子,与热带现代家庭共存。
It is our honor to design the house next to the legendary architects. It would be another modest modern house that co-exists with the tropical modern home.














建筑师:AOMO
面积:560 m²
年份:2019年
摄影作品:DOF Sky|Ground
制造商:APS/Aluminium Perfect System, GL&R
首席建筑师:Sivichai Udomvoranun
建筑师:Sivichai Udomvoranun, Kumpee Charoensook
内饰:Ratchada Kijpan, Nujinat Champhuwiang
工程:Thitanon Chotwirawat, Suchada Ninchan, Wittaya Pangnuja
城市 : Khet Bang Phlat
国家:泰国
Architects: AOMO
Area: 560 m²
Year: 2019
Photographs: DOF Sky|Ground
Manufacturers: APS/ Aluminium Perfect System, GL&R
Lead Architects: Sivichai Udomvoranun
Architect:Sivichai Udomvoranun, Kumpee Charoensook
Interior:Ratchada Kijpan, Nujinat Champhuwiang
Engineering:Thitanon Chotwirawat, Suchada Ninchan, Wittaya Pangnuja
City:Khet Bang Phlat
Country:Thailand