Tapí,以一辆餐车开始运营,迁移到实体店,面临的挑战是如何将巴西的地域性(北部/东北部)与一个年轻而成熟的品牌的世界性方面相结合。客户希望在里约热内卢的城市场景中,有一个低成本的项目,同时又不忽略其原料食品--木薯(从木薯根中提取的淀粉)的原产地的假象。研究考虑了颜色和质地--从食物的准备方式到地区的审美特征。
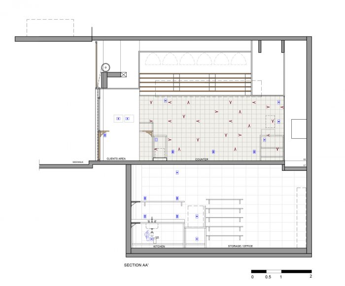
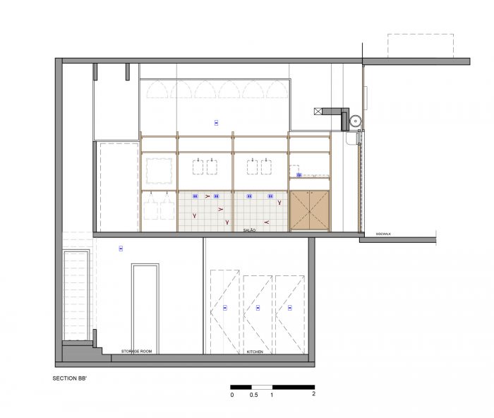
Tapí, which began operations with a food truck, migrated to the physical store with the challenge of planning the combination of Brazil’s regionalism (north/northeast) with cosmopolitan aspects of a young and sophisticated brand. The client wanted a low-cost project in Rio de Janeiro’s urban scenarios without leaving aside artifice of the origin of its raw material food – tapioca (a starch extracted from cassava root). The research considered colors and textures - from the way food is prepared for the region's aesthetic traits.



我们为商店定义了一个清晰和中性的基础。沙子、木材和稻草的色调。从这个组织中,商店的所有元素在游客的体验中发挥了基本作用。简单的设计细工增强了 "手工制作 "的一面。标志的元素被印在墙砖的一部分。篮子里的灯是在巴西北部发现的。典型的北部/东北部的双联门,以及外墙框架的构成,把观众带到了巴西的旅行中。柜台上有一个铜制的细节,灵感来自于土著艺术,也是Tapí品牌的一部分。
We have defined a clear and neutral basis for the store. Shades of sand, wood, and straw. From this organization, all the elements of the store played a fundamental role in the experience of the visitors. Simple design joinery enhances the "handmade" aspect. Elements of the logo were printed on part of the wall tiles. The baskets lamps were found in North Brazil. The bipartite door, typical of the North / Northeast, along with the composition of the frames of the facade, take the viewer to a trip through Brazil. The counter has a copper detail inspired by indigenous art, and also part of Tapí’s branding.

正如我们的许多项目一样,我们提供创造性的解决方案,使小型新品牌的计划可行,并在考虑到低预算的情况下,转化为品牌的灵魂。鉴于城市中心的高租金成本,要创新就是要把低成本的建筑和好的设计方案结合起来。该项目被设计成一个未来的特许经营网络。
As in many of our projects, we offer creative solutions that make small new brand's plans viable and that translate the brand’s soul, having in mind the low budget aspect. Given the high rental costs of urban centers, to innovate is to combine low-cost construction with good design solutions. The project is designed to be a franchise network in the future.

这样一来,所有的设备--标牌、架子、覆盖物等。- 可以很容易地调整到新的位置。其结果是年轻企业家的世界性宇宙和巴西的区域性之间的融合。我们相信,通过认真和创造性的外观,并考虑到较低的财务投资,有可能创新、惊喜和提高我们城市商业设施的质量。
In this way, all devices - signpost, shelf, coverings, etc. - can be easily adjusted to new spots. The result is a fusion between the cosmopolitan universe of young entrepreneurs and Brazil’s regionalism. We believe it is possible to innovate, surprise and improve the quality of the commercial establishments of our cities through a serious and creative look, bearing in mind lower financial investments.














Architects: Tadu Arquitetura
Area : 50 m²
Year : 2018
Photographs :Nathalie Ventura
Manufacturers : Laminex, Roca, Conceitos Marcenaria, Eilane, Marcondes Coimbra, Suvinil
Authors : João Duayer, Thiago Tavares
Team : Alice Varella Tepedino, Nathalie Ventura, Fred Gomes, Clarissa Paes
Constructor : FF Arquitetura
Woodwork : Conceitos Marcenaria
Electric Engineer : Paulo Márcio Engenharia
Kitchen Equipments : Maqcem Equipamentos and Peças Comerciais
City : Rio de Janeiro
Country : Brazil