这个项目与我们工作室的第一个项目在同一个海湾。它发生在Imsouane村。它是摩洛哥南部索维拉和阿加迪尔之间的一个小渔村。这个村子是世界各地冲浪者的一个著名地点。他们称其为 "神奇的海湾"。
This project is on the same bay as the first project made by our studio. It takes place in the village of Imsouane. It is a small fishing village between Essaouira and Agadir in southern Morocco. This village is a well-known spot for surfers around the world. They call it the “magic bay”




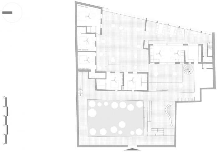
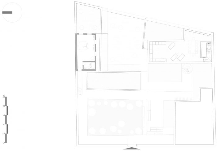
该项目是一个冲浪营地,位于 "神奇海湾 "前面的悬崖上。它位于历史悠久的Imsouane村,离渔港很近,在完全以乡土方式建造的木屋中间。该项目不在前线,但由于悬崖之上的崎岖地形,冲浪营提供了海湾的迷人景色,并作为一个观察站,使冲浪者能够监测海浪的变化。这座建筑也比海平面高出二十米。
The project is a surf camp which is on a cliff in front of the "magic bay". It is located in the historic village of Imsouane, very close to the fishing port, in the middle of huts built in a completely vernacular way. The project is not on the front line, but due to the rugged terrain above the cliff, the surf camp offers stunning views of the bay and acts as an observatory that allows surfers to monitor the swell. The building is also raised a good twenty meters above sea level.


这个修复项目是一个老房子,是村里最早的房子之一。我们的想法是保留老房子的天井,同时改善这里的空间和景象,以配合未来的规划。因此,该项目有一个接待处,大约10个房间,一个餐厅,一个厨房,一个冲浪板工作室,一个屋顶,一个露台,一个空间瑜伽,和一个中央花园。
This rehabilitation project is an old house, one of the first in the village. The idea was to keep the patios of the old house while improving the spaces and the scenography of the place to match the future programming. As a result, the project has a reception, about ten rooms, a restaurant, a kitchen, a surfboard workshop, a rooftop, a terrace, a space yoga, and a central garden.


由于村子里的乡土住房,该项目有很大的混杂性,由于其慷慨的地块,以及选择不使其密集化,该项目仍然相当通风。材料的选择是根据当地情况而定的。地板上铺设了陶土砖,即Bejmat。所有的墙壁都被涂上了石灰,有时是粗糙的,有时是泰德拉克风格。一些露台的结构是由木板制成的,然后用芦苇包扎。建筑物的屋顶是由raphia制成的。
Having significant promiscuity due to the vernacular housing of the village, the project remains rather airy thanks to its generous plot, and the choice not to densify it. The choice of materials was local and contextual. The floor was covered with terracotta tiles, the Bejmat. All the walls have been coated with lime, sometimes rough, sometimes tadelakt style. The structure of some terrace covers was made of wooden planks, then dressed in reed. The roofs of the buildings are made of raphia.










Architects: Studio BO
Area : 1100 m²
Year : 2022
Photographs :Alessio Mei
Lead Architect : Omar Benmoussa
City : Imsouane
Country : Morocco