一位摄影师找到我们,要求我们在他们刚刚收购的布鲁克林阁楼中设计和建造他们的新工作室。该项目要求有一个灵活的空间,可以容纳各种不同的工作室设置。该空间以前是一个住宅,被细分为多个小房间。鉴于该房产三面都有窗户,而且有两个用木板盖住的天窗,自然光非常充足,我们能够看到这个空间的潜力,如果它被打开,尽可能少地进行永久性分割。
We were approached by a photographer to design & build their new studio in a Brooklyn loft that they had just acquired. The program called for a flexible space that could accommodate a variety of different studio setups. Formerly a residence, the space was subdivided into multiple smaller rooms. Given the abundance of natural daylight from windows on 3 sides of the property and 2 boarded-over skylights, we were able to see the potential of the space if it were to be opened up with as few permanent divisions as possible.




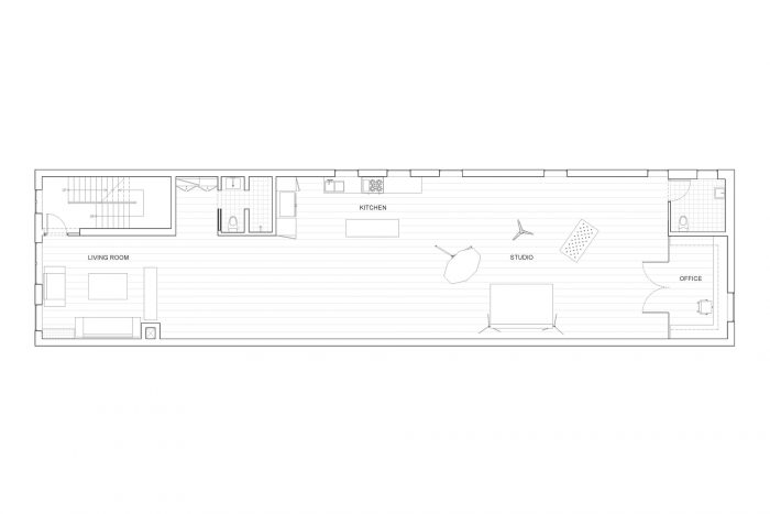
我们将较小的程序化房间提炼成两个10英尺的立方体,并将它们放在空间两端的对角处。为了允许最大的灵活性,我们设计了一个移动的起居室,它可以被重新配置并移动到工作室的任何地方,以适应各种设置。
We distilled the smaller programmed rooms into two 10-foot cubes and placed them in opposing corners at either end of the space. To allow for maximum flexibility we designed a mobile living room, which could be reconfigured and moved into any part of the studio necessary to accommodate the various setups.

为了向布鲁克林的阁楼致敬,我们从当地回收了大量纽约建筑中的木托梁,并将其制作成12英尺长的宽板,每根4英寸厚的梁能够产生3块独立的地板,由我们当地的木地板专家在现场进行榫接,并安装。
In homage to the Brooklyn loft, we sourced locally recycled wooden joists, abundant in the New York building stock, and fashioned them into wide-plank 12-foot-long floorboards, each 4-inch-thick beam was able to yield 3 individual floor boards, which were tongue-and-grooved onsite and installed by our local wood flooring specialists.


作为一个实践,我们专注于在当地采购一切可能的东西,尽可能地回收材料,并庆祝当地的建筑遗产。我们也致力于材料的实验,例如,在这个例子中,我们知道我们想用水泥作为浴室的饰面,因为我们觉得它与现有的原材料调色板相得益彰,但我们想看看同样的材料如何能有相反的表面质量。因此,我们在天花板上试验了粗糙的喷涂砂浆水泥,在地板和墙壁上试验了光滑的手工铸造水泥砖,水槽是在现场用玻璃纤维浸渍的水泥和各种粘合剂在定制的模具中按尺寸铸造的,所有这三种材料的变化都被染成相同的颜色以突出它们的不同。
As a practice, we are focused on sourcing whatever we can locally, upcycling materials where possible, and celebrating the local architectural heritage. We are also committed to material experimentation, in this instance for example we knew we wanted cement as the finish for the bathrooms since we felt like it complimented the existing raw material palette, but we wanted to see how the same material could have opposing surface qualities, so we experimented with rough sprayed-on mortar cement for the ceiling and smooth hand-cast cement tiles on the floors and walls, the sinks were cast on-site in custom made molds built-to-size using a cement impregnated with fiberglass fibers and various bonding agents, all 3 material variations were pigmented the same color to accentuate their difference.














Architects: CKMS Design
Area : 2500 m²
Year : 2022
Photographs :Sean Davidson
City : Brooklyn
Country : United States