功能性和材料的简单性是规划这个位于特拉维夫北部社区的别墅的出发点。这座房子被规划为一个基本的几何结构--由两个未加工的混凝土盒子组合在一起。每个盒子都有看似随机的开口,以及一个可以旋转和打开的电子外部遮阳系统,这样,动态的外墙就会随着居民的需求、一天中的时间和天气而改变。
Functionality and simplicity of materials were the starting points for planning this villa in a northern neighborhood of Tel Aviv. The house was planned as a basic geometric structure– a combination of two raw-concrete boxes on top of each other. Each box has seemingly random openings, and an external shading system that rotates and opens electronically, so that the dynamic façade change with residents’ needs, the time of day, and the weather.



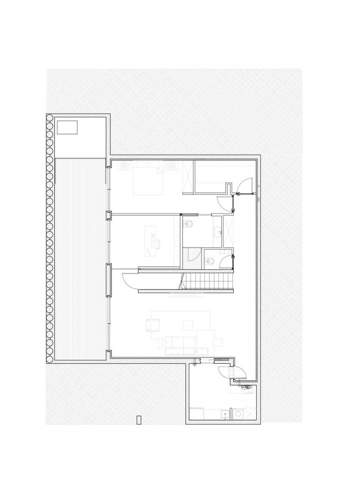
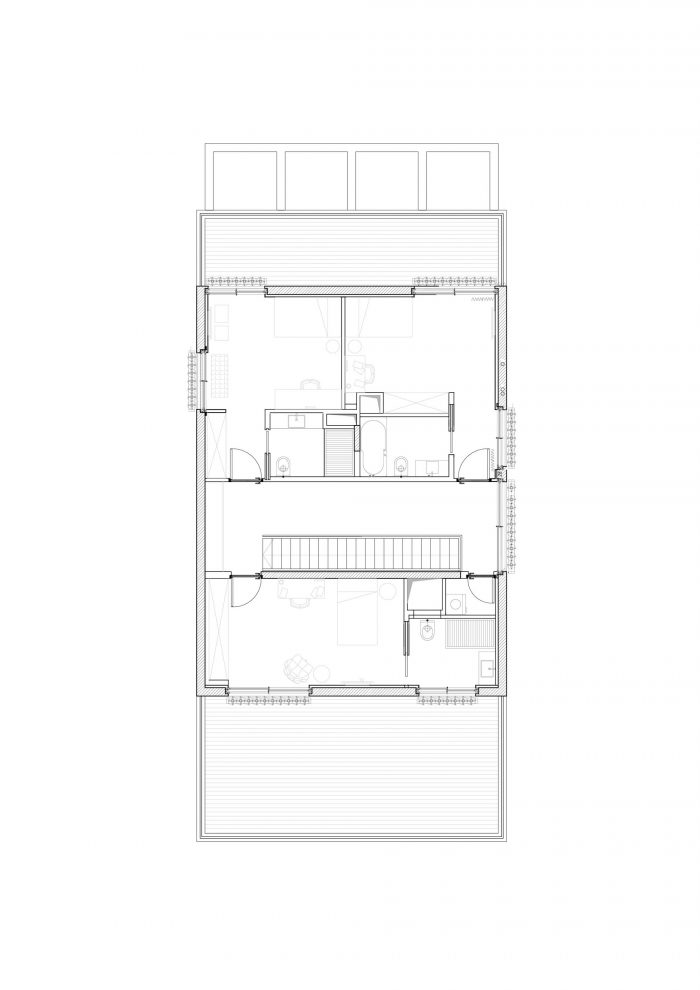
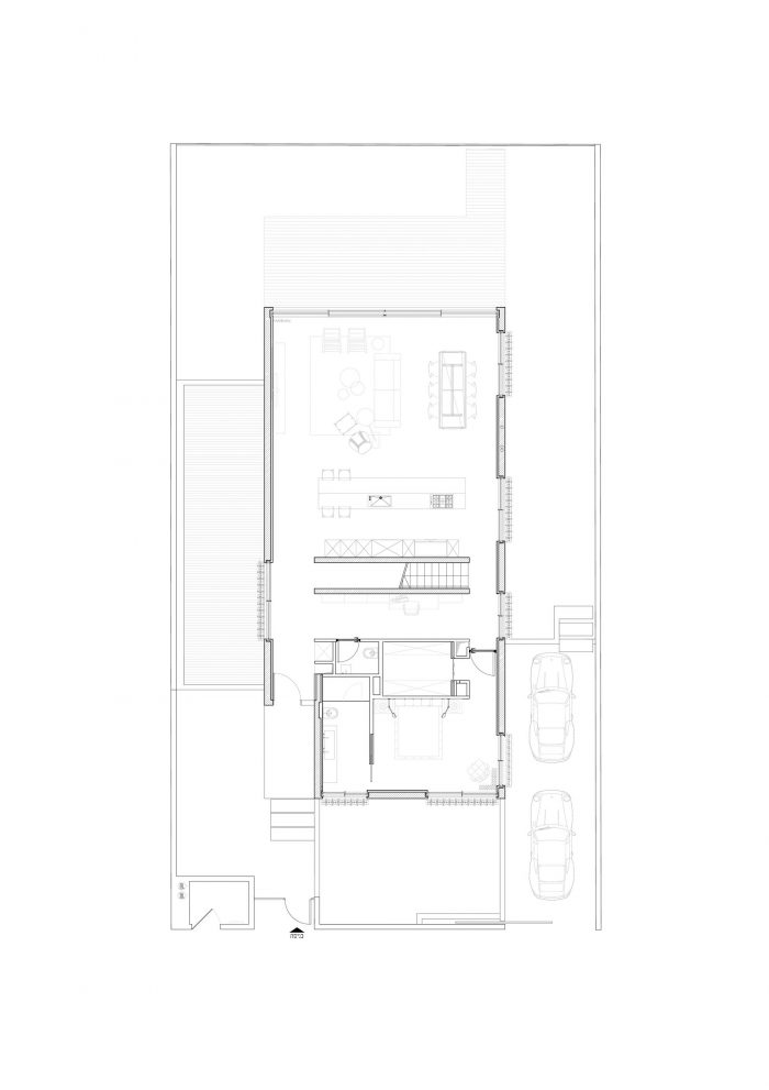
室内设计带来了同样的简单性和气候效率原则,建筑现在移到了室内。室内规划是基于围绕两面原始混凝土支撑墙的清晰和简单的运动,这与外部相呼应。通往地下室和一楼的楼梯位于这两面墙之间。所有的家庭功能都从这个焦点处自由散发出来。一边是宽敞的厨房,配有橡木橱柜和不锈钢烹饪岛,以及邻近的客厅和餐厅。另一侧是一个带有黑色五金工作区的图书馆,以及一个面向前花园的父母套房。一楼是一个服务室和三个儿童房,每个房间都有自己的浴室和通过移动上面的箱子而形成的屋顶露台。在两翼之间有一个明亮、实用的走廊,容纳了平行楼梯。
The interior design brings in the same principles of simplicity and climatic efficiency, with the architecture now moving indoors. The interior planning is based on clear and simple movement around two raw concrete supporting walls, which echo the exterior. The staircase to the basement and first floor is located between these two walls. All household functioned emanate freely from this focal point. A spacious kitchen with oak cabinets and a stainless-steel cooking island, with an adjacent living room and dining room are on one side. The other side holds a library with a black-hardware workspace, and a parents’ suite facing the front garden. Up on the first floor are a service room and three children’s rooms, each with its own bathroom and roof terrace created by moving the upper box. A bright, functional hallway is placed between the two wings, hosting the parallel staircase.



房子里最主要的设计元素--就像它的外墙一样--是外部铝制的、经科腾处理的遮阳系统。每扇窗户都被设置为内部功能,并作为遮阳系统的内部框架,其定位是为了适应阳光和每个内部空间的气候需求。这个系统允许不同程度的光线过滤,创造了一个额外的层,丰富了空间,并将有形的户外体验带入室内。这一层随着太阳的方向和遮阳系统的开放程度而不断变化。在某些时候,房间里充斥着深浅不一的红色,在室内创造出独特的构图,在室外则有不同的曝光。内部,像外部一样,不是静态的。这座房子每时每刻都有生命和运动。
The dominant design element in the house – as it is on its facades – is the exterior aluminum, Corten-finished shading system. Each window is set for an interior function, and acts as an interior frame from the shading system that has been positioned to accommodate sunlight and the climactic needs of each interior space. This system allows various degrees of light filtering, creating an additional layer that enriches the space and brings the tangible outdoors experience into the house. This layer changes continuously with the direction of the sun, the amount of opening of the shading system. At time, the rooms are flooded with shades of red, creating unique compositions inside and varying exposure outside. The interior, like the exterior, is not static. This house has life and movement every hour of the day.


























Architects: Bar Orian Architects
Area : 350 m²
Year : 2016
Photographs :Amit Geron
Manufacturers : Bulthaup, Rimadesio, d+b
City:TEL AVIV-YAFO
Country:Israel