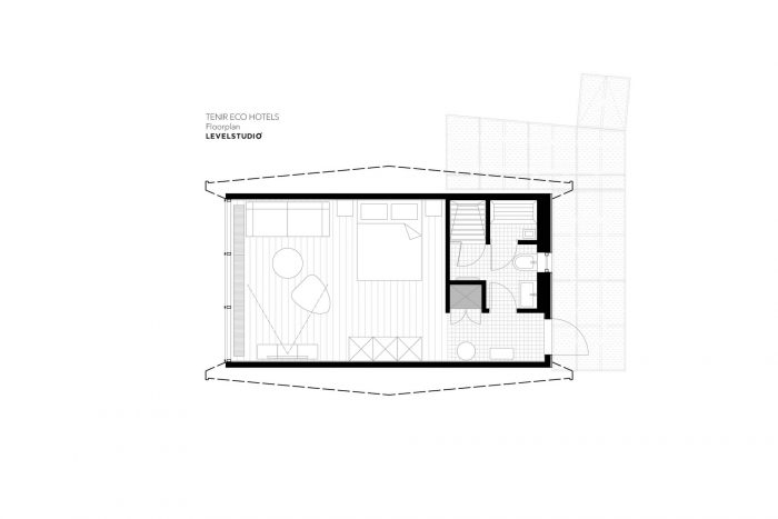
Tenir生态酒店是位于海拔3200米(10'500英尺)以上的模块化露营,这也使其成为世界上海拔最高的酒店之一。该项目由Levelstudio设计并在不到5个月的时间内交付,采用了模块化预制建筑技术。每栋30平方米的房屋由三个4.5x2.7x3.15米大小的模块组装而成,这些模块由斯巴尼克拖车公司在阿拉木图的工厂预制而成。这些模块由钢架和铝夹芯板制成,并采用可持续的石棉保温材料,使其既具有刚性又具有良好的隔热性能,以应对城市的地震多发区和恶劣的山区气候。为了将模块运送到如此偏远的地点,我们制造了定制的大型雪橇,用推土机将模块从12度到45度的上坡拉到雪橇上。该项目于2020年7月投入使用,同年12月滑雪季开始前完工并移交。
Tenir Eco Hotels is a modular glamping located 3200 meters (10’500 ft) above sea level, which makes it one of the highest altitude hotels in the world. The project was designed and delivered by Levelstudio in under 5 months, with the use of modular prefab construction techniques. Each 30 m² house is assembled from three 4.5x2.7x3.15 m sized modules, which were prefabricated by Sputnik Trailers at the company's factory in Almaty. The modules are made of a steel frame and aluminum sandwich panels with sustainable stone wool insulation, which makes them both rigid and well-insulated, responding to the earthquake-prone zone of the city and the harsh mountain climate. To deliver the modules to such a remote site, custom large sledges were manufactured, on which the modules were pulled from 12 to 45° degrees uphill by a bulldozer. Commissioned in July 2020, the project was finished and handed over by the start of the ski season in December of the same year.





酒店位于国家公园内,在设计时仔细考虑了生态环境。因此,模块被安装在钢柱上,而不是沉重的混凝土地基上,这也是为了防止房屋下面的积雪。大部分的施工工作都是在工厂里使用精益施工方法,从而最大限度地减少了现场施工时间和浪费。此外,这些模块有能力被拆卸并转移到一个新的地点,而不需要任何拆除工程。
Located in a national park, the hotel was designed with careful ecological considerations. As such, the modules were installed on steel posts instead of heavy concrete foundations, which were also designed to keep the snow away from underneath the houses. The majority of the construction work was made in the factory using lean construction methods, which minimized on-site construction time and waste. Furthermore, the modules have the capacity to be dismounted and transferred to a new site without any demolition works.




外部的几何形状给建筑的建筑带来了独特的外观,同时也有助于管理作用于建筑的风雪负荷。外墙采用天然木瓦和涂漆铝板完成。Shymbulak山滑雪场的游客现在可以在宁静的独特位置享受夜晚,通过落地窗可以看到哈萨克山脉的全景。内部每个房间都配备了桑拿房,以及客人舒适住宿所需的所有设施。
The exterior geometry gives a unique look to the architecture of the glamping, as well as helps manage the wind and snow load acting upon the buildings. The facades are finished with natural wood shingles and painted aluminum sheet panels. Visitors of Shymbulak Mountain Ski Resort can now enjoy nights in a peaceful unique location with panoramic views of the Kazakh mountains through the floor-to-ceiling windows. The interior is equipped with a sauna in each room and all the facilities needed for a comfortable stay of the guests.
















建筑师:Levelstudio
面积:434平方米
年份:2020年
照片:Miras Ibraimov, Damir Otegen
制造商:AutoDesk, Ikea, Acoustic Group, IN HOME, Sputnik Trailers, Tekled, Trimble Navigation
首席建筑师:Bekzat Amanjol
项目经理:Bekzat Amanjol
建筑师:Yerlan Boskin, Yerzhan Toigambayev
三维可视化:Zinur Tazetdinov
项目管理:Zhangeldy Kaupynbayev, Guldana Tleubayeva, Diana Ashirbekova
城市:Almaty
国家:哈萨克斯坦
Architects: Levelstudio
Area: 434 m²
Year: 2020
Photographs: Miras Ibraimov, Damir Otegen
Manufacturers: AutoDesk, Ikea, Acoustic Group, IN HOME, Sputnik Trailers, Tekled, Trimble Navigation
Lead Architect:Bekzat Amanjol
Project Manager:Bekzat Amanjol
Architect:Yerlan Boskin, Yerzhan Toigambayev
3 D Visualization:Zinur Tazetdinov
Project Management:Zhangeldy Kaupynbayev, Guldana Tleubayeva, Diana Ashirbekova
City:Almaty
Country:Kazakhstan