在鹿特丹附近由堤坝和小岛组成的开放式围垦区景观中,Terphouse作为一个坚固的结构位于景观中的小丘上。用于使房屋可持续发展并为更极端的气候条件做好准备的手段成为设计的主要元素,最明显的是具有特色的天棚和带有突出的天井的地下楼层。
In the open polder landscape of dikes and small islands near Rotterdam, the Terphouse is situated as a sturdy structure on a mound in the landscape. The means used to make the house sustainable and ready for more extreme climate conditions became the main elements of the design, most apparent in the characteristic canopy and underground level with the protruding patios.




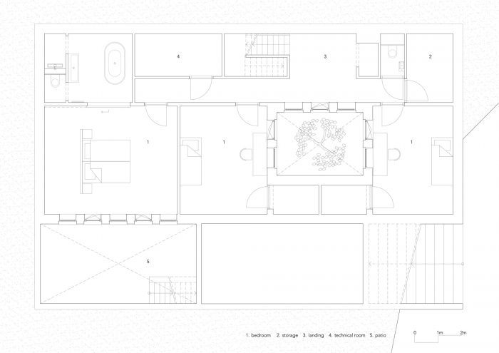
房子被挖在岛上的人工土丘上,生活空间位于第一层,卧室和次要房间位于地下。这使得从生活空间可以感受到堤坝上的开放景观。通过折叠房屋周围的景观,与花园的联系成为可能,房屋被视为景观中的一个适度的实体。
The house is dug in the artificial mound on the island, situating the living spaces on the first level and the bedrooms and secondary rooms underground. This makes that from the living spaces the open landscape is perceived over the dikes. By folding the landscape around the house, a connection with the garden is made possible and the house is perceived as a modest solid in the landscape.


最低层的气候被周围的土壤所调节,而突出的天井提供了充足的日光和亲密的气氛。在顶层,天井构造了空间的序列,并提供了房间之间的视觉关系。
The climate in the lowest level is moderated by the surrounding soil, while the protruding patios provide for sufficient daylight and an intimate atmosphere. On the top level, the patio structures the sequence of spaces and provides visual relationships between the rooms.

明显的木梁结构从室内连续到室外,并在南面形成一个天幕。因此,起居室、阳台、室外房间和天井之间的界限变得模糊不清,景观流入房屋。
The pronounced wooden beam structure is continuous from the interior to the exterior and forms a canopy on the south facade. As a result, the boundary between the living room, veranda, outdoor rooms, and patio becomes indistinct and the landscape flows into the house.













Architects: Studio AAAN
Area: 280 m²
Year: 2022
Photographs:Sebastian van Damme
Manufacturers: JUNG, Heko Spanten, Schuco, Van der Sanden
Lead Architects: Studio AAAN
Contractor: de Hek b.v.
Structural Engineering: Pieters Bouwtechniek
City: Rotterdam
Country: The Netherlands