Terrace 之家,澳大利亚,DREAMER

DREAMER · 1973 次点击 · 4年前

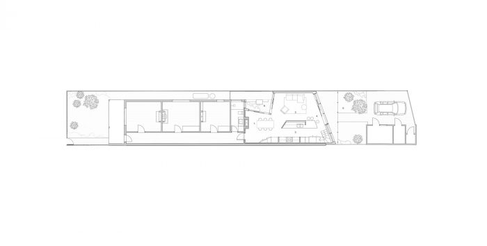
排屋1是对现有排屋的两层后部加建,目的是为了与家庭和户外联系,并为经常需要上夜班的一线医务工作者创造一个休闲场所。

Terrace House 1 is a two-story rear addition to an existing terrace house driven by the desire for connectedness to family, the outdoors, and the creation of a retreat for a frontline medical worker, often required to work nights.

从街道和车道上看,该项目是一个简约的、不显眼的社区补充;一个微妙的物体,旨在与当地现有建筑相协调。加建的形式是由紧凑的场地、规划法规和对所有房间外观的渴望所驱动。

From the streets and lane, the project is a pared-back unobtrusive addition to the neighbourhood; a subtle object that aims to harmonise with existing local buildings. The form of the addition is driven by the compact site, planning regulations, and the desire for outlook from all rooms.

在一楼有一个完全原生的绿色屋顶,为业主提供了视野,一个私人露台,以及一个在工作之前或之后喝咖啡或啤酒的好地方。排屋1号是排屋改造的第一个可复制的模式的迭代。

A fully native green roof at the first-floor level provides an outlook, a private terrace for the owner, and a great place for a coffee or beer, before or after work. Terrace House 1 is the first iteration of a replicable model for terrace house renovation.

Architects: DREAMER
Area: 170 m²
Year: 2020
Photographs: Rory Gardiner
Manufacturers: Alspec, CDK stone, Johnson Tiles, Lysaght, Plyco, Signorino, Urban Salvage, Adbri Designer Masonry, Arova, Bunnings, Emmet's Ropes, Rapid Perforating
Landscape Designer: Grant Radbourne and Erik Van Zuilekom
Structural Design: Co-Struct Engineering
Builder: Neverstop Group
Project Lead:Ben Shields
Project Team:Ben Shields, Malisa Benjamins, Mitchell Sack, Anwyn Hocking
Lead Carpenter:Charlie Booth
Building Surveyor:Lorenzini Group Building Surveyors & Development Consultants
City:Ascot Vale
Country:Australia

加入收藏
1973 次点击
0 条评论
哇 !发现无限创意
现在注册
已注册用户请 登录
项目信息
显示更多信息
Landscape Designer: Grant Radbourne and Erik Van Zuilekom
Structural Design: Co-Struct Engineering
Builder: Neverstop Group
Project Lead: Ben Shields
Project Team: Ben Shields, Malisa Benjamins, Mitchell Sack, Anwyn Hocking
Lead Carpenter: Charlie Booth
Building Surveyor: Lorenzini Group Building Surveyors & Development Consultants
City: Ascot Vale