赤土屋就像一片温暖的绿洲,与它的邻居--Gupta住宅对话。这座房子体现了中性的灰色混凝土和土质赤陶之间的关系。赤陶砖包裹着外墙,使室内的生活变得神秘,并在室外用走道和郁郁葱葱的绿色植物创造了一个和谐的世界。这座居所的住户是一家五口,横跨三代。
The terracotta house stands like a warm oasis in conversation with its neighbor- Gupta residence. The house exemplifies a relationship between neutral grey concrete and earthy terracotta. Terracotta tiles wrap the façade to mystify the lives within, and create a harmonious world outside with a walkway and lush greens. The residents of this abode are a family of five across three generations.





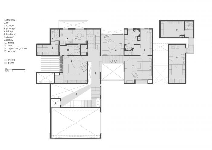
屋内家庭的亲和礼仪激发了房子的温润态度。 以白色和泥土色为基调的色调,以宽敞的双高入口大厅和顶部的桥来迎接访客,定义了整个房子的旅程体验。一件Peter Lik的作品装饰着入口处,由Mukul Goyal构思的一群悬挂的独特的不锈钢鸟将好奇的访客带入屋内,每只鸟都在进行着不同的活动。这座房子的使用者和他们的愿望有不同的楼层,在视觉和功能上都是相连的。地面和一楼为老年人服务,用双层高度的玛瑙墙,统一定义了两个楼层。此外,一楼的非正式生活延伸到一楼--这是一种固定楼层的姿态,一个艺术品形成了一个家庭树。同样的非正式生活从一端可以进入秋千,从另一端可以进入花园,形成了一个彻底的联系。
The balmy attitude of house is inspired by the congenial etiquette of the family inside. A color palette carrying white and earthy tones, welcomes a visitor with a voluminous double height entrance lobby and a bridge on the top that defines the experience of the journey throughout the house. A Peter Lik piece adorns the entry and a suspended flock of unique stainless steel birds conceptualized by Mukul Goyal ushers a curious visitor inside with each bird performing a distinct activity. The house, with users and their aspirations has distinct floors that are connected, both visually and functionally. The Ground and first floor serve the seniors with a double height onyx wall, defining the two floors in unison. Furthermore, the informal living on the ground floor extends to the first - a gesture to fasten the floors, with an artwork formulating a family tree. The same informal living has access to a swing from one end, and a garden from another, framing a thorough connection.

底层也有一个双高的正式生活区--挑战传统的尺度和比例。一面水泥墙上的五幅画作描绘了城市的天际线--从泰姬陵开始,到住宅本身结束。在大空间中选择低矮的家具,改变了人们对这个地方的看法。空白被进一步强调,石墙与餐桌上的石头延续,为这个正式客厅的非传统美学赋予了标志性的意义。画作在白天通过水平穿刺对自然光进行了彻底的改造,辅以Davide Groppi胶带灯模拟日光,并在晚上均匀地突出作品。简约而醒目,角落和餐桌的灯光装置,以它们的姿态抢尽风头。
The ground floor also features a double height formal living area- challenging the traditional scale and proportions. A series of five paintings on a concrete wall depict the city’s skyline - starting from Taj mahal, concluding at the residence itself. The choice of low height furniture in a large space alters the perception of the place. The blankness is further accentuated with a stone wall in continuation with the stone on dining table, lending iconicity to this unconventional aesthetic of this formal living room. The paintings have an overhaul of natural light through a horizontal puncture during the day, complemented by a Davide Groppi tape light to mimic daylight and uniformly highlight the pieces in the evening. Minimal yet striking, the corner and dinning table light installations, steal the show with their poise.

一楼还设有一间主卧室和一间老人房,与一座完全由石头雕刻而成的双层高庙相连。主卧室是一个无缝的空间,功能分明,没有视觉障碍。黑色的悬臂式电视单元隐藏着屏幕,其背面可作为书房。衣柜一直延伸到天花板,与房间融为一体。卧室虽然简陋,但并不空旷。主卧室内部还延伸到一个双高的外屋,从地下室升起。 厕所的反射式天花板与房子的颜色一致。它很舒适,也很紧凑,地下室有一个家庭影院,浮动的木质原木楼梯通往夹层的可转换台球桌。厕所外面还藏着一个圆形的化妆间,玻璃和混凝土的对话。
The ground floor further houses a master bedroom and a room for the elderly, connected to a double height temple completely carved out of stone. The master bedroom is a seamless space with distinguished functions without visual barriers. A black cantilevered TV unit conceals the screen, the back of which doubles up as a study. Wardrobes extending till ceiling blend with the room coherently. The bedrooms are minimal, but not bare. The master bedroom also extends internally to a double height outhouse, rising from the basement. The outhouse, with its reflective ceiling follows the same color palette as the house. It is cozy, and compact with a home theater in the basement and floating wooden log staircase leading to a convertible pool table on the mezzanine floor. A circular powder room is also tucked right outside the outhouse with glass and concrete in dialogue.


坐在花园里的土丘上,可以从外屋和非正式的生活中,一次品尝到地板上的水雾功能。科技配备的视听控制,几乎房子里的每一个功能都是智能的,自动化的,便于使用。现代简约的厨房带有天窗,提供自然照明,为这个功能区赋予了永恒的吸引力。上面两层属于家庭的两个儿子。这两层楼有节奏地发挥着相互连接的空间功能--无论是在水平上还是在垂直上,无论是在字面上还是在隐喻上。综合和隔离的楼层满足了两位单身汉的个人、职业和未来需求。两层楼分别设有个人生活区、书房和卧室,并有一座混凝土桥连接两者。桥上的竹子花盆仿佛是一片丛林,达到了干预和隐私的平衡。混凝土长椅位于同一座桥上,便于欣赏美景。
A floor water-mist feature can be savored sitting on mound in the garden, from the outhouse and the informal living- all at once. Technology equipped with audiovisual control, almost every function in the house is smart, automated for ease of use. A modern, minimal kitchen with a skylight delivers natural illumination, lending a timeless appeal to this functional area. The upper two floors belong to the two sons of the family. The two floors rhythmically function as interconnected spaces- both horizontally and vertically, literally and metaphorically. The integrated and segregated floors cater to personal, professional and future needs of the two bachelors. The two floors house a personal living area, a study and bedroom fit-out for each with a concrete bridge connecting the two. The bridge has bamboo planters personifying a jungle, attaining the desired balance of intervention and privacy. A concrete bench sits on the same bridge facilitating an enjoyable view.

个人起居室可以从各个楼层进入,也可以通过一个小楼梯在内部相互连接。共同的儿童区,墙上的拼字游戏、地上的水泥棋、鲁道地毯都注入了一种别出心裁的玩味。阳台上有一个厨房花园和一个可伸缩屋顶的私人泳池,点缀其中。赤土屋的建筑风格,分享了一个当代印度家庭的故事。三代人的生活方式、活动和日常生活的变化和差异,被他们生活的空间设计完美地融合在一起。独立与团结如何共存,就像我们所处的社会一样。设计试图创造一个具有普遍性的空间呈现,随着人们的体验,层层展开。
The personal living rooms are accessible from individual floors, as well as interconnected internally via a small staircase. A common kids’ area with a wall scrabble, floor concrete chess, ludo carpet all inject an out-of-the-box playful flavor. The terrace is punctuated with a kitchen garden and a private pool with a retractable roof. The architecture of terracotta house shares the story of a contemporary Indian household. The flux and difference in lifestyles, activities and daily routines across three generations, brought together seamlessly by the design of the space they live in. How independence and togetherness can co-exist, much like the society we live in. The design attempts to create a space that is universal in its presentation, with layers unfolding as one experiences it.













建筑师: Studio Archohm
面积:2154平方英尺
年份:2020年
摄影作品:Studio Naughts and Crosses
设计团队:Sourabh Gupta, Varun Sood,Tarak Murari, Amit Das, Vineet Rao, Maulik Yagnik, Sanjana Suri, Ashish Varshney, Naveen Rawat, Aman Jangid, Sebanti Sarkar, Aditi Varshnei
暖通空调:Abid Hussain
客户:Abhay和Ajay Gupta
机械:Archohm Consults
电器:Archohm Consults
景观:Masjid Nursery
水管工程:Techno Engineering Consultants
PMC:Ten on Ten
结构:Paresh and Associates
民事:Ten on Ten
外立面:Archohm Consults
工程:Archohm Consults
城市:阿格拉
国家:印度
Architects: Studio Archohm
Area: 2154 ft²
Year: 2020
Photographs: Studio Naughts and Crosses
Design Team:Sourabh Gupta, Varun Sood,Tarak Murari, Amit Das, Vineet Rao, Maulik Yagnik, Sanjana Suri, Ashish Varshney, Naveen Rawat, Aman Jangid, Sebanti Sarkar, Aditi Varshnei
HVAC:Abid Hussain
Client:Abhay and Ajay Gupta
Mechanical:Archohm Consults
Electrical:Archohm Consults
Landscape:Masjid Nursery
Plumbing:Techno Engineering Consultants
PMC:Ten on Ten
Structural:Paresh and Associates
Civil:Ten on Ten
Façade:Archohm Consults
Engineering:Archohm Consults
City:Agra
Country:India