该建筑位于慕尼黑北侧的工业区,是纺织印花和刺绣公司 "Textilmacher "的生产和办公场所。它的标志性特征是几何折叠的外立面,通过动态的光影游戏使简单的立方体变形。
无烟煤颜料混凝土的亚光表面对环境做出了反应。根据季节、时间、天气和光照的不同,外立面会不断地改变其特征。
Situated in an industrial zone on Munich’s north side, the building hosts production and office spaces for “Textilmacher”, a company for textile print and embroidery. Its iconic feature is the geometrically folded facade, which deforms the simple cubature by an animated play of light and shadow.
The matt bright surface of the anthracite pigmented concrete responds to its environment. Depending on the season, time of day, weather, and light incidence, the facade continuously changes its character.



预制、短工期和经济效益使我们选择了带有核心保温层的混凝土外墙。总共只建造了四个不同的模板。生产这些板块的挑战在于无缝的、棱角分明的混凝土围护结构和无孔隙的表面。
尺寸达6.6 x 3.9 m的模块,包括外壳、保温层和结构外壳,在工厂内建造,并逐一运送到施工现场。安装顺序经过精心规划,使各元素像拼图一样一个接一个地安装。
Prefabrication, a short construction period, and financial benefits led to the selection of a concrete facade with core insulation. All together only four different formworks were built. The challenges in producing the panels were the seamless, sharp-edged concrete envelope and the free of pores surface.
Measuring up to 6.6 x 3.9 m, the modules, with outer shell, insulation, and structure shell, were built in the factory and delivered one by one to the construction site. The mounting sequences were carefully planned, allowing the elements to be fitted one in another like a puzzle.

与富有表现力的外立面相比,内部设计为展厅内的生产过程和产品留下了更多的空间。对少数但高档材料的限制是室内的主要概念。
抛光混凝土地板、落叶松木窗型材和白色涂层钢是主要的材料。无柱的房间提供了高度的灵活性,并不断适应不断变化的工作流程。
In contrast to the expressive facade, the interior design leaves more space for the production process and the products in the showroom. The limitation on few, but high-class materials, is the main concept in the interior.
Polished concrete flooring, window profiles in larch wood, and white-coated steel are the dominating materials. The column-free rooms provide a high grade of flexibility and a constant adaption to changing processes in work.

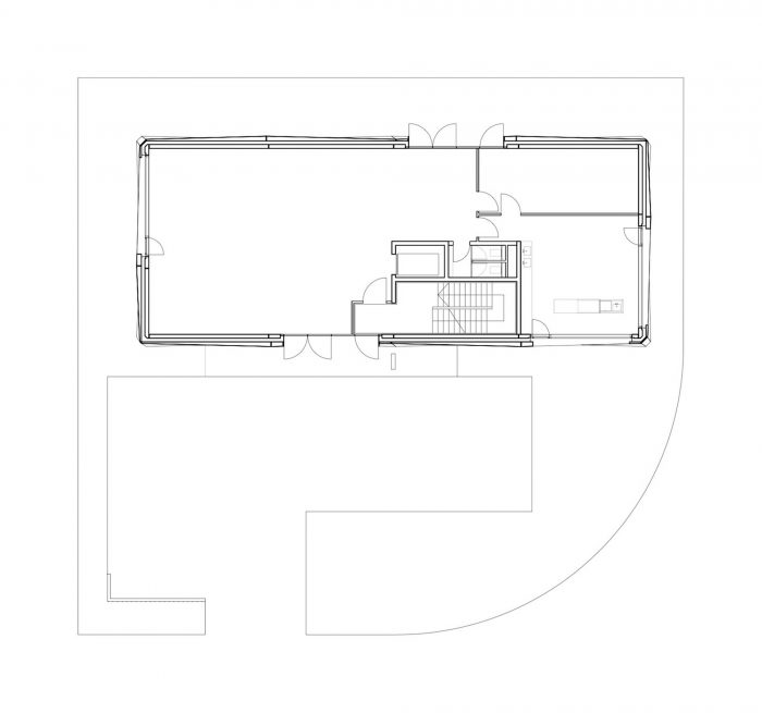
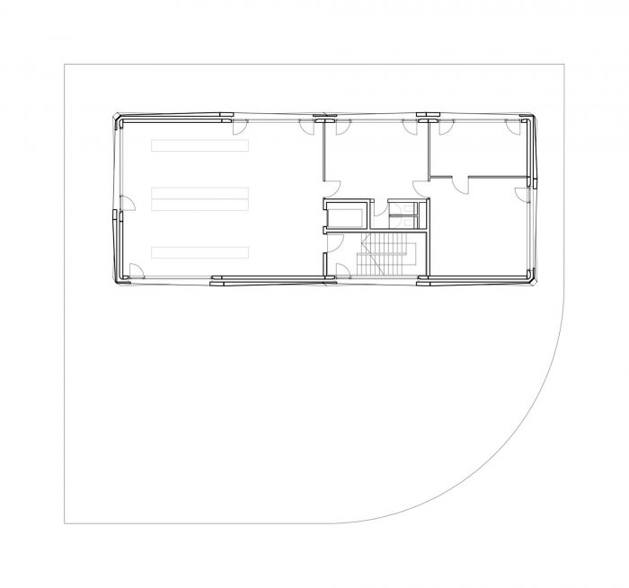
生产车间位于一楼和一楼,办公室和展厅位于二楼。储藏室和机房位于地下室。
为了尽可能地减少碳足迹,机组的废热通过热交换器回收,并通过熨斗加热再利用到建筑中。
The production is located on the ground and first floor, while the offices and the showroom occupy the second level. Storage and plant rooms are found in the basement.
To leave as little carbon footprint as possible, the waste heat of the units is being reclaimed by heat exchangers and reused in the building by the screed heating.










建筑师: tillicharchitektur
面积:1135平方米
年份:2013年
照片: Michael Compensis
结构工程师:Hemmerlein Ingenieurbau GmbH
暖气、通风、管道 :IB Schön.
能源顾问 :Heinze Enegieberatung
电气工程师:Elektro Emmer GmbH
消防顾问 :H+L Brandschutz
客户:Die Textilmacher GmbH, www.textilmacher.com
工地面积:840平方米
负责建筑师:Kurt Tillich
城市:慕尼黑
国家:德国
Architects: tillicharchitektur
Area: 1135 m²
Year: 2013
photographs: Michael Compensis
Structural Engineer:Hemmerlein Ingenieurbau GmbH
Heating, Ventilating, Plumbing :IB Schön
Energy Consultant :Heinze Enegieberatung
Electrical Engineer :Elektro Emmer GmbH
Fire Protection Consultant :H+L Brandschutz
Client:Die Textilmacher GmbH, www.textilmacher.com
Site Area:840 sqm
Architect In Charge:Kurt Tillich
City:Munich
Country:Germany