Alexis Dornier Makings 很自豪地宣布 “自由鸟项目 ”完工,这是位于巴厘岛贝拉瓦的私人住宅,将当代日本设计与热带现代主义完美融合。这座创新住宅体现了建筑师亚历克西斯-多尼尔(Alexis Dornier)将建筑环境与自然融为一体的承诺。
Alexis Dornier Makings is proud to announce the completion of 'The Free Bird Project,' a private residence in Berawa, Bali, that seamlessly blends contemporary Japanese design with tropical modernism. This innovative home reflects architect Alexis Dornier’s commitment to integrating built environments with nature.




自由鸟项目 “的核心是位于游泳池上方的起居室,起居室连接着房屋的两翼,从上往下看形成一个 ”H "形布局。该区域采用可伸缩玻璃墙,将其改造成一个室外空间,玻璃地板可以让人看到下方的泳池,让人联想到斯坦利-库布里克(Stanley Kubrick)的《2001:太空漫游》(2001: A Space Odyssey)。
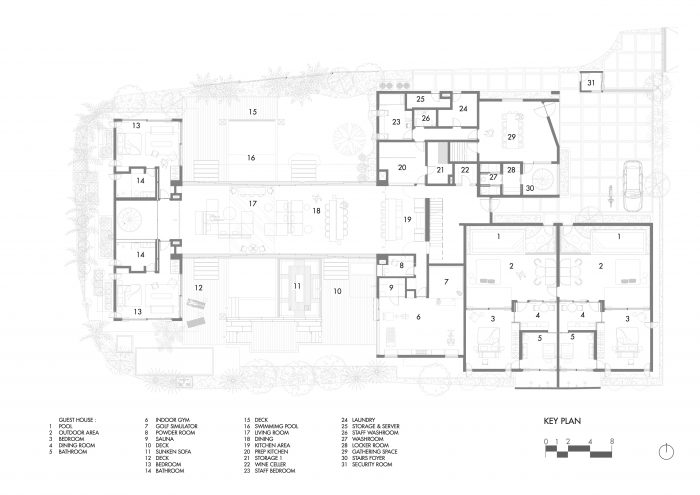
The centerpiece of 'The Free Bird Project' is a living room positioned above the swimming pool, connecting two wings of the house and forming an 'H'-shaped layout from above. This area features retractable glass walls that transform it into an outdoor space, with a glass floor offering views of the pool below, reminiscent of Stanley Kubrick’s "2001: A Space Odyssey."


可持续发展是该住宅的核心组成部分,我们的可持续发展管理合作伙伴 Eco Mantra 在其中发挥了关键作用。他们的专业知识大大降低了住宅的能耗和碳足迹,彰显了我们对环保设计的承诺。
Sustainability is a core component of the residence, with our sustainability management partners, Eco Mantra, playing a pivotal role. Their expertise has significantly reduced the home's energy consumption and carbon footprint, underscoring our commitment to environmentally responsible design.




由巴厘岛景观公司设计的热带花园是住宅设计不可或缺的一部分,它营造了一个郁郁葱葱的背景,增强了室内外的生活体验。一楼设有一个健身房和两个客房,所有房间的设计都最大限度地利用了花园的景观和通道。瑜伽区的设计灵感来自隈研吾的 Rumah Kaca,大量使用玻璃,以保持与周围自然环境的联系。
The tropical garden, designed by Bali Landscape Company, is integral to the home's design, creating a lush backdrop that enhances the indoor-outdoor living experience. The ground floor houses a gym and two guest rooms, all designed to maximize views and access to the garden. The yoga area, inspired by Rumah Kaca Kengo Kuma, features extensive use of glass to maintain a connection with the natural surroundings.





整个住宅的材料都展示了当地的手工艺,墙壁和木质天花板上都有凹槽图案,搭配各种纺织品和织物,为简洁的建筑线条增添了深度和温暖。靠近入口处的一个特色装置是一个巨大的酒柜,它既是一个实用的隔热解决方案,也是一个引人注目的雕塑元素。
Materials throughout the residence showcase local craftsmanship, featuring paras kerobokan stone walls and wooden ceilings with fluted patterns, paired with a variety of textiles and fabrics that add depth and warmth to the clean architectural lines.
A distinctive feature near the entrance is an expansive wine fridge, serving as both a practical insulation solution and a striking sculptural element.





Kosame 的室内设计在很大程度上影响了每个房间的氛围,他们选择的家具将功能性与雕塑美学相结合,为居住空间增色不少。
Interior design by Kosame has greatly influenced the ambiance of each room, with their selection of furniture that combines functionality with sculptural aesthetics to enhance the living spaces.
























Architects: Alexis Dornier
Area: 770 m²
Year: 2023
Photographs:KIE
Lead Architect: Alexis Dornier
Environmental engineering Consultant: Eco Mantra
Landscape Designers: Bali Landscape Company
Interior Designers: Kosame
Builders: Adi Jaya Utama
City: Kecamatan Kuta Utara
Country: Indonesia