位于小意大利中心的格兰德街和桑树街的交汇处,马氏设计的格兰德桑树大厦从整个街区的历史性意大利式住宅的丰富遗产中获得了灵感。覆盖在当代公寓建筑上的定制花纹砖,为这一遗产创造了一个幽灵般的参照。
Located at the intersection of Grand and Mulberry Streets in the heart of Little Italy, MA’s design of The Grand Mulberry draws inspiration from the rich heritage of historic Italianate tenements found throughout the neighborhood. The custom-profiled brick that clads the contemporary condominium building creates a spectral reference to this heritage.



虽然MA经常从附近的建筑中获取灵感,但公司的设计很少复制特定的结构。Grand Mulberry是一个例外,它的外墙是对字面上的复制的一种抽象。受古典主义的启发,不规则的 "幽灵窗 "组合与建筑的真实窗户的规则节奏产生了张力,作为一种并列的方式来表达过去和现在。
While MA frequently takes inspiration from nearby buildings, the firm’s designs rarely replicate specific structures. The Grand Mulberry is somewhat of an exception—the facade is an abstraction of a literal copy. The classically inspired, irregular grouping of “ghost windows” creates tension with the regular cadence of the building’s real windows as a way to juxtapose past and present.




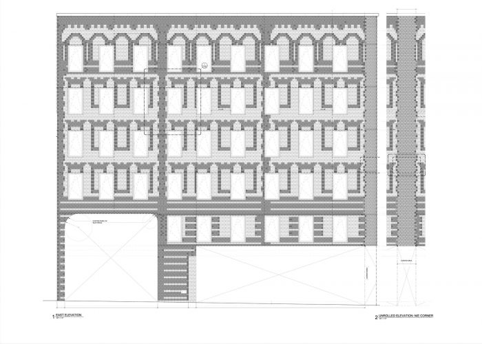
传统上,意大利式住宅楼的外墙是由底层、中层和顶层组成,每一部分都有不同的细节和砖块。模仿这一传统,Grand Mulberry的立面图案由1-2层的建筑底部的带状结构组成,3-5层的中间是花窗,6层的顶部是拱形的窗户和檐口。
Traditionally, Italianate tenement buildings featured a tripartite façade that consisted of a base, middle, and top with differing details and brickwork used for each portion. Emulating this tradition, The Grand Mulberry’s façade pattern consists of banding at the building’s base on floors 1-2, pediment windows in the middle on floors 3-5, and arched windows and a cornice at the top portion on floor 6.

衬托的细节定义了海湾。考虑到项目的环境,从一开始,我们的目标就是要设计一个既符合环境又能明确体现现代性的建筑。虽然立面图案是传统的,但手工成型的圆顶砖的应用是非常现代的--每块砖都被小心翼翼地放在双堆叠式的流水线上,以呈现出传统意大利式立面的错觉。
Quoining details define the bays. Given the project’s setting, the objective from the onset was to design a building that was contextual yet unmistakably contemporary. While the facade pattern is traditional, the application of the hand-molded domed bricks is very modern—each brick was carefully positioned within the double-stacked running bond coursing to present the illusion of a traditional Italianate façade.

定制的砖有大约30种不同的形状来执行该图案,包括带双圆顶的双砖(最普遍的)、带单圆顶的双砖、弧形砖、唇形砖和没有圆顶的简单形状。所有的砖都有统一的橘红色粘土颜色,进一步向附近的红砖建筑表示敬意。
The custom bricks come in roughly thirty different shapes to execute the pattern, including double bricks with double domes (the most prevalent), double bricks with a single dome, curved bricks, lipped bricks, and simple shapes without domes. All have a uniform red-orange clay color that pays further homage to the red brick buildings found in the neighborhood.

在建筑的后部,第7层向后退去,为顶层单元创造了一个舒适的露台,面向格兰街和桑树街。阁楼和建筑的隔板被中灰色的立缝金属板包裹着,形成了材料和颜色的微妙对比。这使得这些元素能够独立存在,但又不影响下面的砖墙立面。
At the rear of the building, the 7th floor steps back to create a gracious terrace for the penthouse unit that faces both Grand and Mulberry Streets. The penthouse and the building’s bulkhead are wrapped in medium gray standing seam metal panels that create a subtle contrast of material and color. This allows these elements to stand alone but not detract from the brick façade below.





Architects: Morris Adjmi Architects
Area: 36000 ft²
Year: 2022
Photographs:Selvon Ramsawak, Glen-Gery
Manufacturers: Glen-Gery, WindLoch
Contractor: Empire State Contractors
Structural: RCM/BGA Engineering
MEP: ABS Engineers
Civil: Sullivan Group Design LLC
Expeditor: JM Zoning
Design Principal: Morris Adjmi
Project Management: Brittany Macomber
Interior Design Lead: Melissa Shalloway
Managing Director: Michael Zweck-Bronner
Project Architect: Paul Tierman
Senior Designer: Thomas Wensing
City: Brooklyn
Country: United States