可用的土地是一个大的平坦的工业地块上的绿色区域,周围有一个工业建筑,一个员工的停车场,一个卡车场,和一个可以进入围墙的小办公楼。
The available land is a green area on a large flat industrial plot surrounded by an industrial building, a parking lot for employees, a truck yard, and a small office building that gives access to the enclosure.



准确地说,在这最后一栋楼的旁边,有一片小树林,我们决定保留它,并把它作为新楼的一个物理前厅,但首先是作为项目的一个心理发生器。在这样一个充满敌意的环境中,我们希望办公室工作能够成为一个净化的避难所,远离单纯的办公楼的环境。
Precisely next to this last one, there is a small forest of trees which we decided to maintain and use as a physical antechamber of the new building but above all as a psychological generator of the project. In such a hostile environment we wanted office work to be a purifying refuge from the environment beyond the mere office building.


新建筑将现有的绿色区域分成三个部分,北面、南面和东面的外墙都向这三个部分看去,但特别是建筑的边界被厚厚的墙体延伸到了这三个部分。这些创造了外部围墙,作为办公室和工业工作之间的缓冲,产生了建筑之外一切都是绿色的感觉,忘记了我们周围的环境。后者通过使用非典型的工业外墙材料如砖来加强。
The new building splits the existing green area into three parts, to which the northern, southern, and eastern façades are looking, but especially towards which the boundaries of the building are extended by thick walls. These create exterior enclosures that act as a buffer between office and industrial work, generating the feeling that beyond the building everything is green, forgetting the environment around us. The latter is enhanced by the use of a nontypical industrial facade material such as brick.


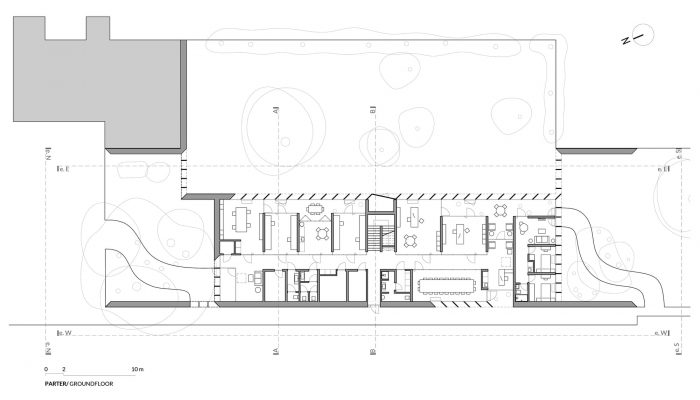
西面的立面与工业区相邻,因此容纳了服务或较少占用的用途,几乎没有任何空隙。其他三个立面是使用室、办公室和员工公寓,有大窗户来捕捉光线,并有金属百叶来控制太阳入射,在夏天避免入射,在冬天捕捉入射。
The western façade is adjacent to the industrial zone and therefore houses the services or less occupied uses closing it with hardly any gaps. The other three façades house uses rooms, offices, and staff apartments and has large windows to capture light and metal louvers that control the solar incidence avoiding it in summer and capturing it in winter.



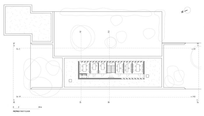
项目的一小部分分布在二楼,以减少对现有绿色区域的占用。通过这种方式,出现了一个办公室的体量,由于整个周边的退缩,从恶劣的环境中抽象出来。
A smaller part of the program is distributed on the second floor to occupy less of the existing green area. In this way, a volume of offices emerges, abstracted from the hostile environment thanks to the retreat of the entire perimeter.

在一楼,有两个带有双层玻璃的 "热缓冲 "空间,由于有太阳能控制的百叶窗,在冬天可以加热,在夏天可以冷却。正是通过它们,清洁的室外空气在进入室内之前被预先气候化,以减少能源消耗。这是一个被动的替代通风的热回收机器,或者同样的 "热缓冲 “空间成为这样的机器,也可以被用户作为温室或露台来使用和享受,在其中休息、吃饭、聊天等。
On the ground floor, there are two “thermal buffer” spaces with double-glazed facades which thanks to solar control of the louvers are heated in winter and cooled in summer. It is through them that the clean outdoor air is pre climatized before entering the interior for less energy consumption. It is a passive alternative to heat recovery machines for ventilation, or what is the same “thermal buffer” spaces become such machines that can also be used and enjoyed by users as greenhouses or terraces in which to rest, eat, chat, etc.



















Architects: James & Mau
Area : 660 m²
Year : 2022
Photographs :Jakub Certowicz
Manufacturers : Wienerberger, Alucobond, Aluprof
Lead Architects : Jaime Gaztelu, Diego Llorente
Structural Engineering : Biuro Konstrukcyjne Karol Kaczmarek
Interior Design : Patrycja Pokrzywa, Jolanta Szczurek
City : Niepołomice
Country : Poland