在Inhotim的艺术指导和策展团队的组织下,"世界是人的剧院 "展览继续进行博物馆在2021年发起的关于剧作家和活动家Abdias Nascimento的作品的研究。
Organized by Inhotim’s artistic direction and curatorial team, the exhibition “The World is Man’s Theater” continues research initiated by the museum in 2021 on the work of playwright and activist Abdias Nascimento.



世界...... "展出了两部未发表的视频,一部由Jonathas de Andrade拍摄,另一部由Barbara Wagner和Benjamin de Burca拍摄。展览围绕戏剧实践、艺术培训和社会活动之间的关系展开。出发点是Abdias Nascimento的黑人实验剧场(TEN)的遗产,以及它对剧作家Augusto Boal的被压迫者剧场的影响。一些档案材料说明了Abdias、Boal之间的交流,以及他在 "被压迫者剧院 "中巩固的实践和概念。另一方面,两部视频作品与Boal的主题有着密切的联系。
The World… features two unpublished videos, one by Jonathas de Andrade and the other by Barbara Wagner and Benjamin de Burca. The exhibition develops around the relationship between theatrical practice, artistic training, and social activism. The starting point is the legacy of the Negro’s Experimental Theater (TEN) by Abdias Nascimento and its influence on the Theater of the Oppressed, by the also playwright Augusto Boal. Several archival materials contextualize the exchanges between Abdias, Boal, and the practices and concepts that he consolidated in the Theater of the Oppressed. The two video works, on the other hand, have a strong connection with Boal's theme.


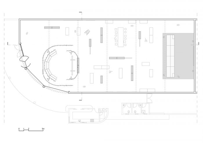
这个展览图画项目试图翻译这些不同作者之间的关系,并使用剧院建筑作为参考。该提案的标志是材质截然不同、但同样平凡的窗帘和屏幕。用于窗帘的是不透明的和模糊的,而用于屏幕的是半透明的和无光泽的。窗帘是用赭石色的防水布做的,而屏幕则是用白色的正面平面做的(就像民用建筑的外墙用的屏幕)。窗帘围住了黑暗的视频放映室,而屏幕则在连续和照明的环境中划分了Abdias和Boal的档案。
The expo-graphic project seeks to translate the relationships between these different authors and uses theater architecture as a reference. The proposal is marked by curtains and screens of very different materialities, but equally mundane. The one for the curtains is opaque and blurred, while the one for the screens is translucent and diaphanous. The curtains were made with tarpaulin in ocher, while the screens are made of white front planes (like the screens used on the facades of civil construction). The curtains enclose the dark video projection rooms, while the screens demarcate Abdias and Boal's archives in contiguous and illuminated environments.


幕布和屏幕的支撑让人联想到剧院的布景箱的结构,因此使用布景杆作为支撑元素。
The support for the curtains and screens is reminiscent of the architecture of a theater's scenic box, hence the use of scenic poles as a support element.

有关剧作家的文件在垂直和水平的支撑中呈现。主要的照片是在自我支持的垂直板上,而著作和报纸文章则在桌子上。策展人的核心,"奥古斯托-波尔、TEN和被压迫者剧院 "和 "作为工人自我意识工具的戏剧",符合或多或少安排的两个环境。与展览文献相辅相成的是一张长桌,用于查阅有关这两位剧作家的书籍。
The documents about the playwrights are presented in vertical and horizontal supports. The main photos are on the self-supporting vertical panels, while the writings and newspaper articles are on the tables. The curatorship nuclei, “Augusto Boal, TEN and the Theater of the Oppressed” and “Theatre as an Instrument for the Worker's Self-Awareness”, conform to two environments arranged in more or less fluid arrangements. Complementing the exhibition's documentation is a long table for consulting books on the two playwrights.

第一个投影室的幕布是波浪形的,里面放着作品《Fala da Terra》。展览继续进行,许多立面屏幕起到了组织两个策展核心的作用。它们在半透明的层次中重叠,当参观者接近路线的终点时,第二个也是最后一个投影室逐渐显现出来。这个结束是由第二个房间的普通窗帘标志的。这是一个弯曲的表面,为投影 "Olho da Rua "定义了一个 "U "形的葫芦,这是Jonathas de Andrade的作品,是展览的闭幕作品。
The curtain in the first projection room is wavy and houses the work “Fala da Terra”. The show continues with the many façade screens that serve to organize the two curatorial nuclei. They overlap in translucent layers, and the second and last projection room is gradually revealed as the visitor approaches the end of the route. This ending is marked by the plain curtain in the second room. It is a curved surface that defines a “U” shaped gourd for the projection of “Olho da Rua”, a work by Jonathas de Andrade that closes the exhibition.





Architects: Vazio S/A
Area: 5521 ft²
Year: 2022
Photographs:Daniel Mansur
Lead Architect: Carlos M. Teixeira
Project Team: Daila Coutinho, Frederico Almeida
Clients: Instituto Inhotim
City: Brumadinho
Country: Brazil