位于阿肯色州费耶特维尔的TheatreSquared新大楼为阿肯色州西北部唯一的全年专业剧院提供了一个永久的家。剧团目前创作了全国知名的剧目,每年有45,000名观众,并有一个重要的教育推广计划,让整个地区的学生有机会接触现场表演和领先的艺术学习工具。
The new TheatreSquared building in Fayetteville, Arkansas provides a permanent home for Northwest Arkansas’s only year-round professional theatre. The theatre company currently creates nationally acclaimed productions that reach 45,000 patrons annually and has a significant educational outreach program that gives students across the region access to live performances and leading arts-based learning tools.




这个新家通过两个亲密的剧院、专门的排练和活动空间、办公室、教育和社区空间、布景、道具和服装工作室、咖啡馆和酒吧以及所有楼层的室外露台,扩展了这些节目和公众宣传。伴随着最先进的表演和支持空间,还有8个短期住所,供来访的演员、作家和导演使用--这显示了TheatreSquared对艺术家社区的承诺。
The new home extends this programming and public outreach with two intimate theatres, dedicated rehearsal and event space, offices, education, and community spaces, scenery, props, and costume workshops, a café and bar, and outdoor terraces on all floors. Accompanying the state-of-the-art performing and support spaces are eight short-term residences for visiting actors, writers, and directors – demonstrating TheatreSquared’s commitment to the artist community.


该设计源于公司的愿景声明。"戏剧--做得好,有激情--可以改变生活和社区",其结果是表演空间被认为是 "建筑的跳动的心脏"。剧院被暴露在一个混凝土外壳中,从外部、公共场所和后院走廊等各个方面明显地表达了自己,让人们找到自己与这座建筑 "心脏 "的关系。
The design derived from the company’s vision statement: “theatre—done well and with passion—can transform lives and communities” and resulted in the performance space thought of as the “beating heart of the building.” The theatre was left exposed with a concrete envelope, visibly expressing itself on all sides – from the exterior, into the commons, and into the back-of-house corridors – letting the people locate themselves in relation to this building’s “heart.”

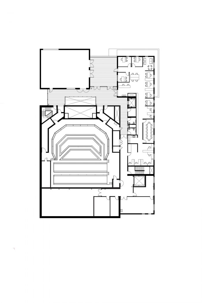
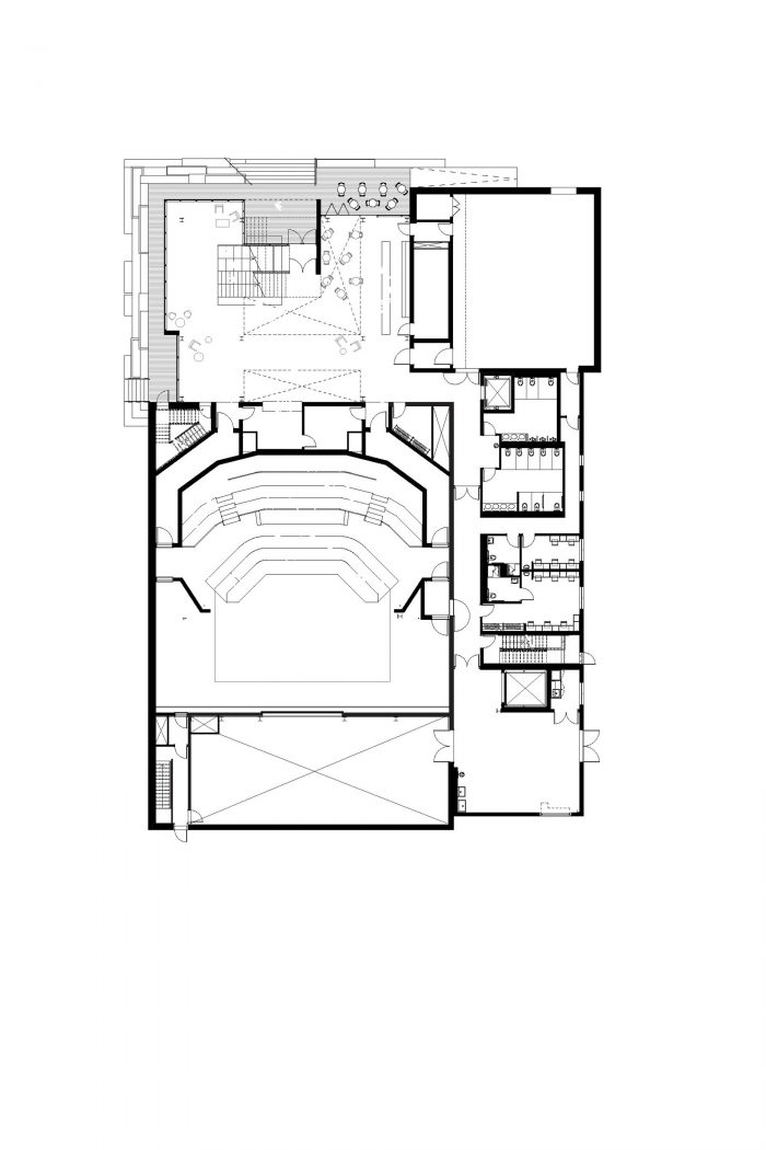
与剧院顾问CharcoalBlue合作,Marvel创造了最先进的主舞台和演播室剧院,能够在隔音罩内上演复杂的、技术上具有挑战性的作品,由于附近有活跃的铁轨,这是一个至关重要的考虑。TheatreSquared以前的超宽舞台形状被复制到新的主剧场中,同时通过增加一个环绕的阳台层来增加观众容量,而管弦乐队层的后排只比原来的空间深一排。 观众从舞台层进入,与演员在同一高度--这是另一个被保留下来的体验性元素--进一步提高了个人的戏剧体验,这已经成为TheatreSquared演出的一个标志。
Working with theater consultants CharcoalBlue, Marvel created state-of-the-art mainstage and studio theatres capable of mounting complex, technically challenging productions situated within acoustically soundproofed envelopes, a crucial consideration due to the nearby active railroad tracks. TheatreSquared’s previous extra-wide stage shape was replicated in the new main theatre while audience capacity was increased by adding a wraparound balcony level while the back row of the orchestra level became only one row deeper than the original space. Audience members enter at the stage level, the same level as the actors – another experiential element that was preserved – further heightening the personal theatre experience that has become a hallmark of TheatreSquared’s performances.

在剧院作为一个讲故事的地方的自然表达中,使用的材料讲述了空间的生计。 该建筑是对阿肯色州西北地区的一种表达。在使用有限的材料调色板时,优先考虑了耐久性、灵活性以及建筑的技术和性能系统。木材和混凝土在建筑的每一个空间都发挥着作用,无论是用从现场砍伐的树木建造的家具,还是用回收的木材进行内部装饰,或者是提供耐用的混凝土,这些材料都是经济上的资源和有效的方式。
In the natural expression of a theater as a place of storytelling, the materials used narrate the livelihood of the space. The building is an expression of the Northwest Arkansas region. A limited material palette was used with priority given to durability, flexibility, and the building’s technical and performance systems. Wood and concrete play a role in every space of the building, whether it’s constructed furniture out of trees felled from the site, recycled wood for interior finishes, or concrete that provides a durable finish, the materials are economically resourceful and efficient way.

TheatreSquared的核心理念是,剧院应该被每个人所享受。公共空间内频繁的公共节目和每天开放的咖啡馆旨在扩大剧院的观众群,并吸引居民和游客把这个空间作为他们的家。表演能力延伸到剧院外,视听和舞台灯光系统被整合到公共空间中,增加了表演的灵活性,也提高了客户吸引公众的能力。
At the core of TheatreSquared’s ethos is the outlook that theatre ought to be enjoyed by everyone. Frequent public programming within the Commons and a café set to be open daily is intended to broaden the theatre-going audience and entice residents and visitors to make the space their home. Performance capabilities extend out of the theatres with audiovisual and stage lighting systems integrated into the public spaces increasing both performance flexibility as well as the client’s ability to draw the public in.









Architects: Marvel
Area: 50000 ft²
Year: 2020
Photographs: Timothy Hurlsey, Greg Maka
Manufacturers: David Weeks Studio, Delta Millworks, Kawneer, St. Cloud Window, Kirwin and Simpson, Pablo Lighting
Structural Engineers: Silman
MEP Engineers: Buro Happold
Architectural Lighting: Jim Conti
Construction Manager: Baldwin & Shell
Design:Jonathan Marvel, Lissa So, Zachary Griffin, Ariel Poliner, Bell Ying Cai, Siyuan Ye, Enrique Ramon, Mabel Plasencia
Code Consultants:Code Consultants Professional Engineers
Cost Estimation:Dharam Consulting
City:Fayetteville
Country:United States