泰罗斯全套房酒店是一个幸福的神秘世界,在这里,童年时对无忧无虑的夏天的回忆被茉莉花的香味、Meltemi中棕榈树的摇曳和芦苇的沙沙声带入了现实。THEROS在古希腊语中意为 "夏天",是慢生活的缩影,是基于古希腊 "Ef-Zin "哲学和希腊人的待客理想的整体幸福体验。它的现代设计是基于传统建筑和当地历史的原则。
Theros All-Suite Hotel is a blissful mystic world where childhood memories of a carefree summer are brought to life by the scents of jasmine, the swaying of palms in the Meltemi, and the rustling of reeds. Meaning SUMMER in ancient greek, THEROS is the epitome of slow living, a holistic experience of well-being, based on the ancient greek philosophy of “Ef-Zin” and the greek ideal for hospitality. Its modern design is based on the principles of traditional architecture and local history.




我们的灵感来自于科斯镇的中世纪城堡、平房以及岛上农村居民点的空间安排。我们再现了当地的石头建筑习惯,以及乡村的自然景观和城镇的异国花园。
Our inspiration was the medieval castle of Kos town, the cottages, and the spatial arrangement of the island’s rural settlements. We reproduced the local stone construction idiom, as well as the natural landscape of the country and the exotic gardens of the town.


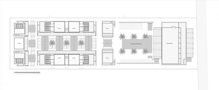
设计的最大挑战是极其狭窄的地块,宽40米,长150米。主体建筑的入口是通过一座水上木桥进入的,其严格的石头结构。摆放着僧侣餐桌的迎宾接待处,紧接着是单一的、简单但具有多种刺激的空间,邀请客人进入带有中央游泳池的西边露台的内部天堂。接待、餐饮和休闲功能自由发展,加强了放松的感觉。两个外墙的大型单体开口模糊了室内和室外空间的界限,功能自由地流向两个露台。视觉逃逸也是自由的,朝向有一排桉树和海滩的东边露台。
The greatest challenge for the design has been the extremely narrow plot, 40m wide by 150 m long. The entrance to the main building with its strict stone structure is through a wooden bridge over water. The welcoming reception with the monastic table is followed by the surprise of the single, simple but with multiple stimuli space, that invites the guests to the inner paradise of the western terrace with the central swimming pool. Reception, dining, and leisure functions develop freely, intensifying the feeling of relaxation. The large single openings on the two facades blur the boundaries between indoor and outdoor space and the functions freely flow towards the two terraces. Visual escapes are also free towards the eastern terrace with a row of eucalyptus trees and the beach.



47个套房被开发在内向的街区,从公共-半公共空间到私人空间的过渡是通过材料、植物和最终的空间质量的区分来标志的。建筑群的外围直道,一边是芦苇,另一边是连续的石墙。盲目的实心石墙保护了房间的隐私,而最小的狭窄开口提供了自然冷却。穿过城堡的门,来到公共庭院,里面有带花盆的陶罐,就能发现隐藏的天堂,里面有私人泳池和科斯镇传统的热带植物。
The 47 suites are developed in introverted neighborhoods where the transition from the public - semi-public to the private space is marked by differentiation of materials, plantings, and finally the quality of the spaces. The peripheral straight paths of the complex are defined by reeds on one side and by continuous stone walls on the other. The blind solid stone walls protect the privacy of the rooms, while minimal narrow openings offer natural cooling. Passing through the castle doors to the communal courtyards with the clay pots with basils, leads to the discovery of the hidden paradise, with the private pools and the tropical vegetation of plants traditionally found in the town of Kos.


所有底层套房都有私人泳池,被棕榈树和橄榄树环绕。上层套房有大阳台吊床和屋顶花园。房间内部的中性色彩和天然材料与外部相融合。
All ground-floor suites have private pools and are surrounded by palm and olive trees. The upper-floor suites have large verandas hammocks and roof gardens. The neutral colors and natural materials in the interior of the rooms integrate with the exterior.



在现代建筑技术和中央电子房间控制(KNX)方面的投资加强了生物气候建筑,旨在实现可持续性和环境道德。花园的一个关键因素是使用本地地中海物种(橄榄树、棕榈树、柏树、柠檬树、希波克拉底治疗传统的芳香药草),这些物种对水的需求最小。一个从农场到餐桌的地方提供有机种植的樱桃番茄,供厨房使用。
The bioclimatic architecture is enhanced by the investment in modern building technologies and the central electronic room control (KNX), aiming at sustainability and environmental ethics. A key element of the gardens is the use of native Mediterranean species (olive trees, palms, cypresses, lemon trees, aromatic-medicinal herbs of the Hippocratic healing tradition), that have minimal water requirements. A farm-to-table spot provides organically grown cherry tomatoes, for the kitchen.





























Architects: Mastrominas ARChitecture
Area : 3100 m²
Year : 2022
Photographs :George Papapostolou, Brechenmacher & Baumann Photography
Manufacturers : Sika, Sto, Alumil, B&B Italia, Caneplex, Ethimo, Fantini, Kronos, Living Divani, Poliform, Titan, VESTAL
Lead Architects : Ilias Mastrominas
Master Plan : Ilias Mastrominas
Interior Design : Ilias Mastrominas, Dimitrios Evangelou
Landscape Design : Katerina Syrrakou
Structural Engineers : Dimitrios Theodosiou, Panagiotis Valis, Stemeka Ike
Mep Design : Petros Chatzipetros
City : Cos
Country : Greece