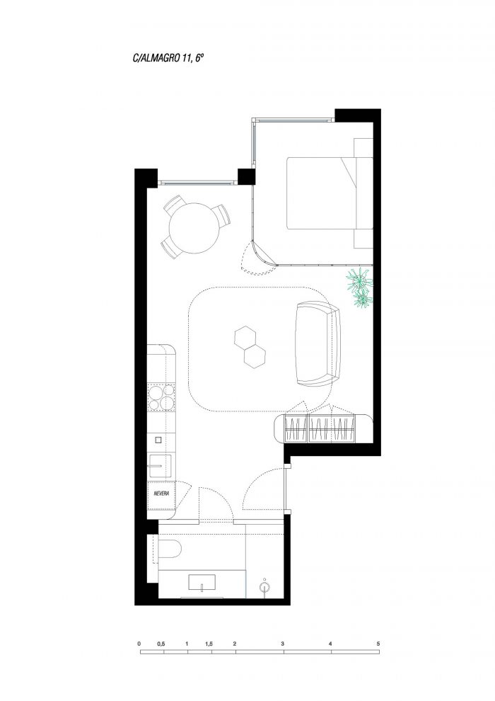
该项目是关于将一套大型旧公寓分成三套豪华公寓,作为皇家马德里的一项投资性国有业务。这通常意味着创造力不在游戏中。他们说,“创意越多,在市场上成功的机会就越小”。
The project is about dividing a large old flat into three luxury apartments as an investment real state operation in Madrid. This would usually mean that creativity is out of the game. "The more originality, the less chance of success in the market", they say.



该项目是关于将一套大型旧公寓分成三套豪华公寓,作为皇家马德里的一项投资性国有业务。这通常意味着创造力不在游戏中。他们说,“创意越多,在市场上成功的机会就越小”。
The clichés that are succeeding in real state business are modified applying some short of Technique intelligence procedures on them. We want to prove that this so-called Aesthetics of Capitalism is not a problem itself for the committed architect. It is all about working the finishing, assembling and, last but not least, the design.





















建筑师:FAST AND FURIOUS OFFICE
年份:2017年
摄影作品: IMAGENSUBLIMINAL (MIGUEL DE GUZMÁN + ROCÍO ROMERO)
城市: 马德里
国家:西班牙
Architects: FAST AND FURIOUS OFFICE
Year:2017
Photographs: IMAGENSUBLIMINAL (MIGUEL DE GUZMÁN + ROCÍO ROMERO)
City: MADRID
Country: Spain