客户的要求是建立一个内向型的空间,躲避外面的喧嚣和繁忙的街道,但仍然保持与自然的接近。一个独立的生活空间,有绿色的花园,有小家庭成员可以观察的水族箱,与自然直接接触,这是一个城市生活空间所必须的特点。现有的土地只有几棵成熟的 "树",这些树需要保留,这是我们研究过程中的一项重要任务。
The client's brief was to build an inward-looking space, hiding away from the hustle and busy street outside but still keep close to nature. A separate living space, with green gardens, aquariums where small family members can observe, direct contact with nature, a feature that is necessary for an urban living space. The existing land has only a few mature "Trees" and these need to be kept, this is an important task in our research process.




一个多层次空间的想法逐渐形成,从外部蔓延到内部,从内部蔓延到外部。空间的分类和排列是场地从外到内的水平层,其中第一层是辅助空间,如车库、厕所、楼梯和小花园,车库现在作为一个大的前廊,用于主空间的后退,第二层是主要的生活空间,包括大厅、厨房的客人,第三层是一个扩展的门廊,最后一层是一个花园,有许多树木和一个小水族馆。
An idea of a multi-layered space, spreading from the outside to the inside and from the inside to the outside is gradually formed. The spaces are classified and arranged into horizontal layers of the site from outside to inside, including the first layer are auxiliary spaces such as a garage, toilet, stairs and small gardens, the garage now acts as a large front porch for the main space to recede, the second layer is the main living space includes the lobby, kitchen guests, the third layer is an extended porch, the last layer is a garden with many trees and a small aquarium.


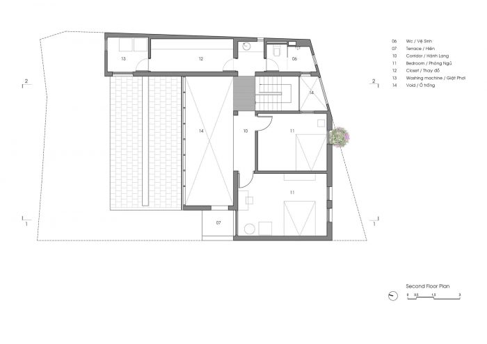
通过这样的层层空间安排,可以为房子创造一个深度的空间,共同的生活空间区块是中心,通过长长的游廊,最大限度地实现自然通风。但间接进入空间的自然光线也是适度的,更适合生活空间。2楼设计为简约的睡眠区块和辅助空间区块,优化了使用面积。这两个功能区块由铁质楼梯系统连接,木桥通风、采光、有趣。
With such an arrangement of space in layers that will create a depth of space for the house, the common living space block is the centre that opens up to maximize natural ventilation through long verandas. but indirect natural light entering the space is also moderate, more suitable for living space. The 2nd floor is designed to be minimalist with sleeping blocks and auxiliary space blocks, optimizing the use area. These two functional blocks are connected by a system of iron stairs, and the wooden bridge is airy, light and interesting.

当极端天气造成的洪水每年越来越多时,房屋的立面设计是经过仔细研究和计算的,但它仍然必须遵循城市的总体规划。前面的花园车库空间被抬高,不要太高,刚好可以方便进出,然后主要的房屋空间被抬高,并由几级楼梯过渡,这个解决方案有助于整个主要空间在雨季是安全的,但仍然协调了房屋的内部和外部。此外,从里面到外面,从外面到里面的景色也更加有趣。
The design of the elevation for the house is carefully studied and calculated when the extreme weather causes flooding every year more and more, but it must still be following the general planning of the city. The front garden garage space is raised not too high, just enough for easy access, then the main house space is raised higher and is transitioned by stairs with few steps, this solution helps The whole main space is safe in the rainy season but still harmonizes the inside and the outside of the house. In addition, the views from inside to outside and from outside to inside are also more interesting.

业主是一位摄影师,对原材料和手工艺情有独钟,所以裸砖、磨石、天然木材、裸露的混凝土是这个项目建设的主要材料。这座房子代表了居住在其中的人的生活方式,同时也是对建造和完成这所房子最完整和合适的旅程的关注。
The owner is a photographer, who has a fondness for raw materials and crafts, so bare bricks, grindstones, natural wood, bare concrete are the main materials used for this project construction. The house is representative of the lifestyle of the people living in it, along with the concern for the journey to build and complete the house most completely and suitably.









































Architects: Dom Architect Studio
Area: 130 m²
Year: 2020
Photographs:Hoang Le
Manufacturers: Jotun Paint Vietnam, Panasonic, Thai Lan SCG, Thanh Wood, Xingfa
Design Team: Nguyen Anh Duc, Truong Anh Duc
City: Hà Tĩnh
Country: Vietnam