基本概念。由于大弗莱堡地区的土地储备少,以及相关的土地价格急剧上升,我们的客户获得了一个商业地产,比所需的多户型地产便宜了近85%。作为对这种矛盾心理的回应,这在全国范围内并不罕见,我们提出了设计一栋办公楼的想法,如果将来土地使用计划被调整,只需在扩建层面进行一些干预,就可以将其转化为数量不定的公寓。
Basic concept. Due to low land reserves and the associated sharp rise in land prices in the greater Freiburg area, our client acquired a commercial property that was almost 85% cheaper than the desired multi-family property. As a response to this ambivalence, which is not unusual nationally, we developed the idea of designing an office building that could be converted into a variable number of apartments if the land use plan were to be adjusted in the future with just a few interventions on the expansion level.


城市主义。根据物业的几何形状和未来新商业区的选择性周边发展,开发了一个独立的三层楼的接龙。为了在长期内实现灵活的办公室和公寓大小,甚至超过实际楼层,从而也为了在以后将目前计划的两个使用单元分离成三个,在东北方向的外部开发,面向通道,被整合。突出的半圆形楼梯平台打破了体量的清晰几何形状,标志着各个单元的入口,并作为周围城市空间的沟通者。通过北侧立面的贯通式电梯,也可以从外面进入无障碍通道。
Urbanism. A free-standing, three-storey solitaire was developed based on the geometry of the property and the future, selective surrounding development of the new commercial area. In order to enable flexible office and apartment sizes in the long term, even beyond the actual floor and thus also a later separation of the currently planned two usage units into three, an external development in the north-east, facing the access road, was integrated. The projecting, semi-circular stair landing breaks up the clear geometry of the volume, marks the entrances to the individual units and serves as a communicator in the surrounding urban space. Barrier-free access is also from the outside via a through-loading elevator on the north facade.


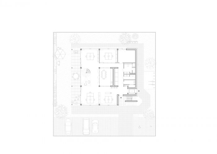
功能概念。通过5×5米的承重网格,建筑从北部的封闭墙板,通过中间的独立墙板,转变为南部的开放支撑结构,并有一个相邻的宽敞的室外区域。尽管地震带的结构要求很高,但这种结构上的转变使得创造一个资源节约型的、持久的支撑结构成为可能,同时也使使用和分区的灵活性达到最大。
Functional concept. With a 5 x 5 meter load-bearing grid, the building is transformed from the closed wall panel in the north, via a free-standing wall panel in the center, to an open support structure in the south with an adjoining, spacious outdoor area. Despite the high structural requirements of the earthquake zone, this structural transformation made it possible to create a resource-efficient, long-lasting supporting structure, which at the same time enables maximum flexibility in use and zoning.


空间概念。与功能概念相一致的是,厕所、储藏室和技术等服务房间被安置在封闭的北墙上。所有的工作区域都围绕着厨房的中心,作为一个交流的场所。南部的室外区域用于放松、非正式交流和作为临时工作场所。
Spatial concept. Coherent with the functional concept, the service rooms such as toilets, storage and technology are housed on the closed north wall. All work areas are oriented around the heart of the kitchen, as a communicative place of exchange. The outdoor areas in the south are used for relaxation, for informal exchange and as a temporary workplace.

表达。改造的概念性指导原则也反映在立面设计中。虽然北面的外墙看起来完全不透明,有一个后通风的梯形金属板外墙,但西面和东面的外墙通过2.5 x 3.0米的大窗户元件向周围开放。朝南的阳台和露台延伸到建筑的整个宽度,形成了结论和与外部空间的第二个物理接口。
Expression. The conceptual guiding principle of the transformation is also reflected in the facade design. While the north facade appears completely opaque with a rear-ventilated trapezoidal sheet metal facade, the west and east facades open up to the surroundings with large window elements measuring 2.5 x 3.0 meters. The south-facing balconies and the terrace, which extend across the entire width of the building, form the conclusion and the second physical interface to the outside space.

建筑区在视觉上被连续的水平立面带连接起来,同时也容纳了纺织品的防晒。受商业环境的启发,该建筑的所有部件都以工业质量进行规划,内部被设计成一个精致的外壳。另一方面,外墙的玻璃比例很高,这对商业区来说是不太典型的。在内部使用的策划下,这应该会创造出交流,并使周围的商业区恢复活力。
由于地震区需要大规模的建筑,以及灵活和无障碍的可用楼层规划,该建筑是一个功能上可持续和面向未来的建筑。由于特别注意到建筑的拆分潜力,即使将来需求发生变化,外墙也可以很容易地升级到目前的状态。
The building zones are visually connected by the continuous horizontal façade bands, which also accommodate the textile sun protection. Inspired by the commercial context, all components of the building are planned in industrial quality and the interior is designed as a refined shell. On the other hand, there is a high proportion of glass in the façade, which is untypical for commercial areas. Curated by the use inside, this should create communication and revitalize the surrounding commercial area.
The building is a functionally sustainable and future-oriented building due to the massive construction required in the earthquake area and the flexible and barrier-free usable floor plan. With special attention to the unbundling potential of the construction, the façade can be easily upgraded to the current status even if requirements change in the future.

















Architects: STUDIO SOZIA
Area : 835 m²
Year : 2022
Photographs :Kim Fohmann
Manufacturers : Jakob, Giro, RAICO
Building Services Engineer : Ingenieurbüro für Gebäudetechnik Uwe Häberle
Structural Design : Mohnke Höss Bauingenieure
Design And Project Leaders : Valerio Calavetta, Lisa Häberle
City : Breisach
Country : Germany