乍一看,"微型庭院 "的房子似乎格格不入。它位于斯图加特附近城市路德维希堡的一个交通岛上,坐落在四组红绿灯之间。在某一天,数以千计的车辆经过,行人匆忙地走过十字路口。微型庭院住宅是处理 "生活在最小空间 "的一种新方法。尽管处于繁忙的十字路口,但它通过巧妙地将生活空间与外部世界分开,提供了高度的隐私。
At first glance, the Micro Courtyard house seems out of place. Perched between four sets of stoplights, it stands upon a traffic island in Ludwigsburg, a city near Stuttgart. On a given day, thousands of vehicles pass by and pedestrians walk hurriedly across the intersection. The Micro Courtyard house is a new approach to dealing with “living in minimal space”. Despite being in the midst of a busy crossroad, it provides high privacy by separating adeptly the living space from the outside world.


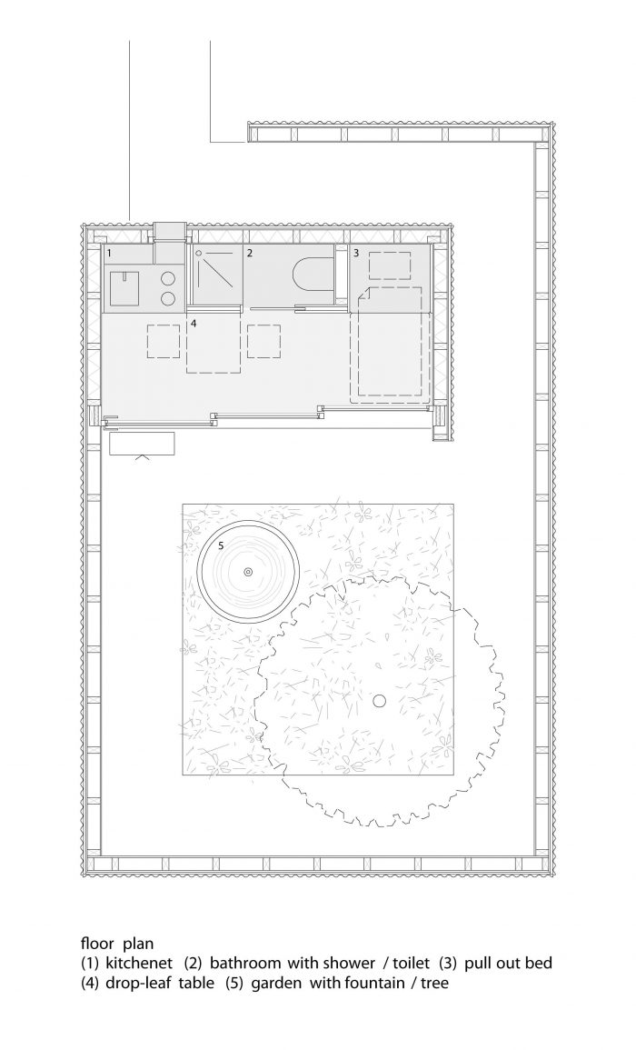
室内与外界隔绝,只有一个螺旋形的入口好奇地通往室内。微型庭院住宅仅有7.3平方米,包含所有需要的设施。浴室、橱柜和厨房的深度为85厘米,沿着主墙布置,主墙还设有一张可折叠的桌子和床。沿着这面墙的一个方形窗户将生活区与外部世界连接起来。在这一面的对面,一扇横跨整个房屋长度的长玻璃门将生活空间与宁静的花园松散地分开。
The interior is secluded from the outside, with only a spiral entrance leading curiously inside. At merely 7.3 square meters, the Micro Courtyard house contains all of the required utilities. The bathroom, cupboards, and kitchen have a depth of 85 cm and are arranged along the main wall, which also features a foldable table and bed. A square window along this wall connects the living area to the outside world. Opposite to this side, a long glass door spanning the entire length of the house loosely separates the living space from the tranquil garden.

在夏天,玻璃门可以被推开,有效地将房子和院子融合在一起。外部设计的灵感来自于中国传统的四合院。一棵树矗立在喷泉旁边,形成一个不对称的安排。喷泉不仅具有美学作用,而且也是一种有效的隔音功能,可以防止噪音。带有木材框架的云杉板躺在离地面20厘米的柱子上,产生了一种轻盈的氛围。
In summer, the glass door can be slid open, effectively merging the house and the courtyard. The exterior design is inspired by traditional Chinese courtyard houses. A single tree stands beside a fountain, creating an asymmetric arrangement. The fountain not only serves aesthetic purposes but also as an effective acoustic feature against noise. Spruce panels with timber frames lay on top of pillars 20 cm above the ground, generating a light ambiance.

内侧木墙的舒适气氛与外墙的深色波纹铁板形成对比。内部和外部、开放和封闭、噪音和安静、隐私和公共之间的并列,丰富了建筑。由此可见,微型庭院住宅是利用最小空间的理想解决方案,即使是最不寻常的空间。尽管坐落在一个狭小而紧张的空间里,人们仍然可以从繁忙的世界中逃脱出来,凝视着开放的天空。
The cozy atmosphere of the inner wooden wall contrasts the dark corrugated iron sheets of the external facade. The juxtaposition between inside and outside, open and closed, noise and quiet, privacy and public, enriches the architecture. It thus becomes clear that the Micro Courtyard house is an ideal solution to utilizing minimal space, even the most unusual ones. Despite being situated in a tight and hectic space, one can still escape from the busy world and gaze into the open skies.




Architects: Atelier Kaiser Shen
Area : 7 m²
Year : 2018
Photographs :Nicolai Rapp
Manufacturers : Elektro Graf, Hem Küchen, Markus Hildenbrand, Rikker Holzbau GmbH, Schmitt Glas- und Metallbau
Lead Architects : Florian Kaiser, Guobin Shen, Hans-Christian Bäcker
City:LUDWIGSBURG
Country:Germany