最近被提名为2022年欧盟密斯奖的Tipografia do Conto酒店项目,是一个连接住宅旅游和文化活动的多功能空间。它包括10个房间和一个宽阔的底层,并设有多功能区。它的建筑融入了对原有建筑的一些回忆,并避免了一般的旅游产品,而这些旅游产品已经在许多欧洲城市(如波尔图)中被绅士化。这个前排版车间被改造成一个家庭规模的结构,以包括新的酒店房间。该项目拒绝任何形式的建筑模仿;相反,它恢复了早期条件下的残余元素,将它们整合到一个现代设计中。
The project of the Hotel Tipografia do Conto, recently nominated for the EU Mies Award 2022, is a multifunctional space that links residential tourism and cultural events. It comprises ten rooms and a wide ground floor with multipurpose areas. Its architecture incorporates several memoirs of a pre-existing building and avoids the generic tourist offer which has been gentrifying many European cities (like Porto). This former Typographic Workshop was transformed into a domestic-scale structure in order to include the new Hotel rooms. The project refuses any kind of architectural pastiche; instead, it recovers remnants of elements of that earlier condition integrating them into a contemporary design.




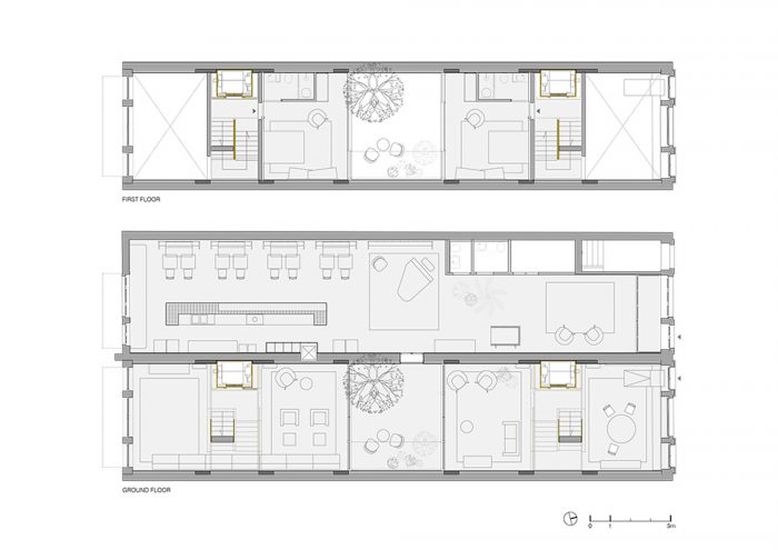
该项目从一个现有的大院出发,该大院建于1916年,用于容纳小型工业活动(一个排版和一个图形工作室),后来关闭了。在过去的几年里,该建筑的结构已经恶化,使得它不可能完全重新用于设想的新功能。从以前车间的使用情况来看,新酒店的设计仍然保留了一些记忆:主要的石头外墙(装饰风格),重新使用中央天井的照明和通风,以及其内部空间的灵活性,特别是在地面上。
The project departs from an existing compound erected in 1916 to house small industrial activities (a Typography and a Graphic Workshop), which has since closed down. Over the last few years, the structure of the building has deteriorated, making it impossible to fully reuse it for the envisaged new functions. From this previous Workshop occupation, some memories remain at the new Hotel design: the main stone façade (in Deco style), the reuse of the central patio for lighting and ventilation, and its internal spatial flexibility, especially at the ground level.

这种唤起被延伸到天井周围的新外墙设计中--里加木质结构中的字体组成(重新使用前车间的横梁)--而且,天花板上的装饰元素,由浮雕文字组成,暗示了印刷和排版的概念。
This evocation is extended to the design of the new façades around the patio – a typographic composition in a Riga wooden structure (reusing the beams of the former Workshop) –; but also, to the decorative elements on the ceilings, formed by bas-relief texts which allude to the idea of printing and typographic publishing.


酒店的房间让人想起老车间的氛围:在天花板的比例中;在玻璃厕所的柜子在空间中的放置方式中;在优雅的木头表面的回声中。所有的房间都有特定的脚本,由十个选定的作者写的,从作家到设计师或建筑师。这些脚本被转换为印刷品,并被插入到混凝土天花板的表面。准时的金色金属剪从天花板的背景中脱颖而出,丰富了对这些脚本的阅读。底层包括一个宽大的文化咖啡馆,仍然是一个长而灵活的空间,可以通向中央天井和后院。它被用作不同文化活动的 "舞台",介于室外和室内之间。
The Hotel rooms recall the old Workshop ambiances: in the proportions of the ceilings; in the way the glassed toilets’ cabinets are placed in the space; in the echoes of the elegant wood surfaces. All rooms are covered by specific scripts, written by ten selected authors, from writers to designers or architects. The scripts are converted into typographic text(ures) and inserted on the surface of the concrete ceilings. Punctual golden metal shears stand out from the ceiling backdrops, enriching the reading of those scripts. The ground floor, which includes a wide Cultural Café, remains a long and flexible space, giving access to the central patio and backyard. It is used as a “stage” for different cultural events intermediating between outdoor and indoor.





一般来说,混凝土(液体石材)是这个项目的基本元素。混凝土被塑造成或完成了三种质地。天花板和人行道是 "光滑 "的;内墙是 "条纹 "的;背面是 "粗糙 "的。在内部,混凝土伴随着金色金属元素的点缀--在天花板、楼梯扶手和电梯柱的装饰中--在粗糙和精致之间创造了一种理想的对比。在中央庭院中,新的木质外墙与侧壁上的白色瓷砖的抽象地毯之间建立了另一种关系,这让人想起了那里存在的排版,反射出光线。所有的公共区域都延长了裸露的混凝土和镀金的金属表面之间、新的细节和回收的家具物品之间的对比关系。
In general terms, concrete (liquid stone) is the basic element of this project. Concrete is moulded or finished in three kinds of textures: “smooth” for ceilings and pavements; “striped” for the interior walls; and “rough” for the back facade. Inside, the concrete is accompanied by punctual elements in golden metal – in the decoration of ceilings, stair handrails and elevator columns – creating a desired contrast between roughness and refinement. In the central courtyard, another relationship is established between the new wooden facades, evoking the typographic plates that existed there, and an abstract carpeting of white tiles on the sidewalls, which reflects the light. All common areas prolong that contrasting relationship between the exposed concrete and the gilded metal surfaces, between new details and recycled furniture objects.






























Architects: Pedra Líquida
Area: 514 m²
Year: 2019
Photographs: Fernando Guerra | FG+SG, Alberto Plácido
Manufacturers: AutoDesk, Duravit, Fluxograma, GRUPNOR
Lead Architect: Nuno Grande
Acoustics: Amplitude Acoustics
Landscape Design: Platanus
Structure: AB PROJECTOS
Thermal engineer: GET Gestão de Energia Térmica
Design Team:Alexandra Coutinho, Guiomar Rosa, Nuno Grande, Jorge Gomes, Rita Basto
Supervision:Ana Sousa
Landscape:Nuno Sousa
Clients:Casa do Conto
Visual Identity:R2 Design
City:Porto
Country:Portugal