该项目产生于我们办公室制定的市政城市发展计划(PMDU),其中以参与的方式商定,新命名的魔幻小镇的第一个项目必须成为地方经济和Tlaxco艺术的触发点。这有一个分散的管理模式,其中每个商业场所都是为来自该市不同城镇的工匠服务的。
The project arises from the Municipal Urban Development Plan (PMDU) developed by our office, in which it was agreed in a participatory manner that the first project of the newly named Magic Town would have to be a trigger for local economies and the art of Tlaxco. This has a decentralized management model, in which each of the commercial premises is for artisans from different towns of the municipality.



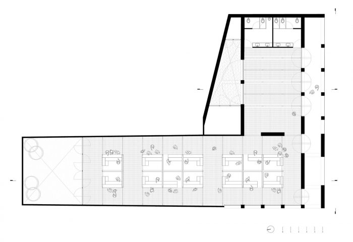
市场收回了一座废弃建筑的侧墙和地基,由两个中殿和一个前廊组成。上层的中殿容纳了14个场所,较小的中殿有一个给游客和学生举办研讨会的空间,每个空间都与一个天井相连,以备有必要将活动扩展到国外。走道由一系列的拱门和一个矩形框架组成,作为现代和乡土语言之间的对话,该空间作为一个会议点。
The market recovered the side walls and foundations of a disused building, and consists of two naves and a front corridor. The upper nave houses fourteen venues, the smaller nave has a space to give workshops to tourists and students, and each space is linked to a patio in case it is necessary to extend activities abroad. The walker consists of a series of arches and a rectangular frame as a dialogue between a contemporary and vernacular language, the space serves as a meeting point.



建筑系统由承重墙和基于层压松木的明梁组成。同时,在大殿的长方向有两个穹顶,这些穹顶允许自然光的照射,然后在木质框架的对角线上的阳伞中反弹,这个想法是为了在整个市场中有一个自然和清晰的照明,除了呈现一个标志性的元素,产生对居民的占有和自豪。
The construction system consists of load-bearing walls and open-beams based on laminated pine wood. At the same time there are two domes in the long direction of the naves, these allow natural light, and this is later bounced in a parasols recharged in the diagonals of wooden frames, the idea is to have a natural and clear lighting throughout the entire market, besides presenting an iconic element that generated appropriation and pride to the inhabitants.























Architects: Vrtical
Area: 500 m²
Year: 2017
Photographs: Rafael Gamo, Enrique Márquez Abella
Manufacturers: Metal y Madera
Auhors:Luis Beltrán del Río, Andrew Sosa
Equipo De Diseño:Arelly Blas
Collaborators:Alejandro Solano, Dolores Galicia, Hector Rojas, Ana Lourdes Esquer, Ximena Rebollo , Arelly Blas
Construction:César Rivera
Cost:$241,250 usd
City:Tlaxco
Country:Mexico