今天,比利时城市面临的一个典型的挑战是使其19世纪和20世纪初的城市结构更加宜居和可持续,同时不驱赶所有的经济或制造业活动。这些地区的大部分特点是工业和住房混合,土地占用率高,开放空间硬化,土壤污染。今天,大多数工业已经搬离了这些地区,随着时间的推移,基础设施已经被分割给小规模的私人业主。"洼地 "是许多城市为这些地区制定的城市政策中包括的策略之一,试图避免讳莫如深。tmSN的房子以一种激进的方式这样做。
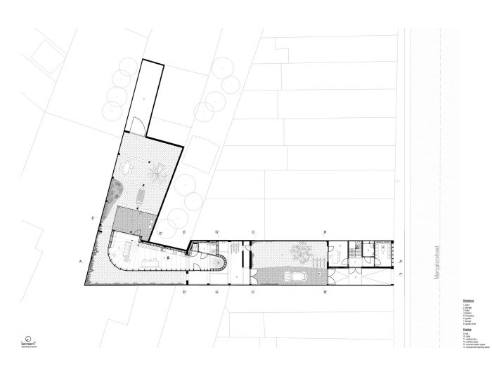
A typical challenge for Belgian cities today is to make their 19th and early 20th-century urban fabric more liveable and sustainable, without driving away all economic or manufacturing activities. Most of these areas are characterized by a mix of industry and housing, high land occupation, hardening of open space, and soil pollution. Today most of the industry has moved away from these areas and the infrastructure over time has been parcelled out to small-scale private owners. “Pitting” is one of the strategies that many cities include in their urban policies for these areas, trying to avoid tabula rasa. The tmSN house does so in a radical way.



BLAF长期以来一直致力于将casco作为一种可持续的建筑形式的想法。在这种情况下,城堡是必然的。L形地块几乎100%被占用。面向街道的建筑是一栋房子,后面的所有其他建筑都是生产空间。
BLAF has since long been working on the idea of the casco as a sustainable format for architecture. In this case, the casco was a given. The L-shaped plot was almost 100% occupied. The building facing the street was a house, and all the other buildings behind it were manufacturing spaces.

以外科手术的精度,最没有价值的部分被切掉,以在地块上产生光线和开放空间。最有价值的部分被整合起来,使之成为空旷的、可容纳的。这种 "坑 "的操作创造了一个小的 "Hinterhof",一个家庭住宅的理想环境。面向街道的房子被翻新为工作空间(精神病学的小组实践)。
With surgical precision, the least valuable parts were cut away to generate light and open space on the plot. The most valuable parts were consolidated and made empty and amenable. This “pitting” operation created a small “Hinterhof”, an ideal environment for a family home. The house facing the street was refurbished as a workspace (group practice for psychiatry).

就像蜗牛在它的壳里一样,一个新的木制框架结构被安装在这些casco里,为家庭创造了一个内部空间。阁楼和木结构住宅之间的中间空间产生了新的内外关系,有助于组织地块上的程序,并使阁楼的原砖从内部可见。
Like a snail in its shell, a new timber frame construction was fitted into these casco’s, making an interior space for a home. The intermediate spaces between the casco and the timber frame home generate new relations between inside and outside, help to organize the program on the plot and make the raw brick of the casco visible from the interior.


创建的开放空间被用于水管理和绿化。它们有助于对抗城市热应力和增加生物多样性。
The open spaces that were created are used for water management and greenery. They help in fighting urban heat stress and increase biodiversity.













Architects: BLAF Architecten
Year : 2017
Photographs :Stijn Bollaert
Stability : Tecclem
City : Sint-Niklaas
Country : Belgium