Triptyque Architecture被Philippe Starck选中,在他的艺术指导下,开发TOG圣保罗全球旗舰店(Rua Iguatemi, 236)的建筑项目,这是TOG第一个直接的单一品牌零售项目,其目标是激起销售设计的概念。
Triptyque Architecture was chosen by Philippe Starck to develop, under his art direction, the architectural project of TOG's São Paulo Global Flagship Store (Rua Iguatemi, 236), the first direct monobrand retail project from TOG, with the ambition of stirring up the concept of selling design.



TOG是一个史无前例的民主设计品牌,其目标是--通过高质量的设计和易于定制的家具--创造一个良性的合作体系,让设计师、客户、工匠、艺术家和制造商拥有相同的价值观和目标。
TOG is an unprecedented, democratic design brand which goal is – through high quality designed furniture that can be easily customized - to create a virtuous collaborative system where designers, clients, artisans, artist and manufacturers share the same values and goals.

该旗舰店被设计成一个混合使用的社交场所,在这里你可以买、吃、喝、跳舞、阅读、创作、消磨时间;一个二十一世纪的安迪-沃霍尔工厂。作为TOG的家具,该空间是完全可定制的。作为一个多用途的生活空间,旗舰店也将作为一个主要的聚会和社交中心。
The Flagship was designed as a mixed use place of sociability where you can buy, eat, drink, dance, read, create, spend time; a XXIst century version of the Andy Warhol Factory. As TOG furniture, the space is fully customizable. Conceived as a multi-purpose, living space, the Flagship Store will also function as a major conviviality and sociable hub.

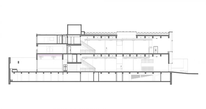
为了预测这些和其他潜在的用途,Triptyque机构将这个80年代的老游戏俱乐部中性化,将所有地方都涂成白色。现有墙壁的粗糙度和全新的地面之间形成了对比。灯光被悬挂在天花板上可见的混凝土梁上。
To anticipate these and others potential uses, the Triptyque agency neutralized this old games club from the 80s in painting in white all the place. There is a contrast between the existing walls roughness and the totally new ground. The lights are suspended from the concrete beams visible on the ceiling.

这个项目的构想是允许有机空间随着时间的推移而改变:在不同的环境之间没有墙壁,一个电力系统充斥着整个区域,玻璃等材料的应用促进了空间的多种用途。
The project was conceived to allow the organic spaces to change over time: no walls between ambiances, an electric system that pervades the entire area and the application of materials like glass foster the multiple use desired for the space.

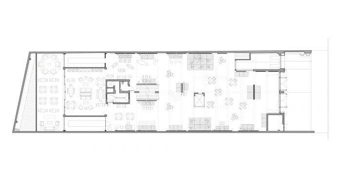
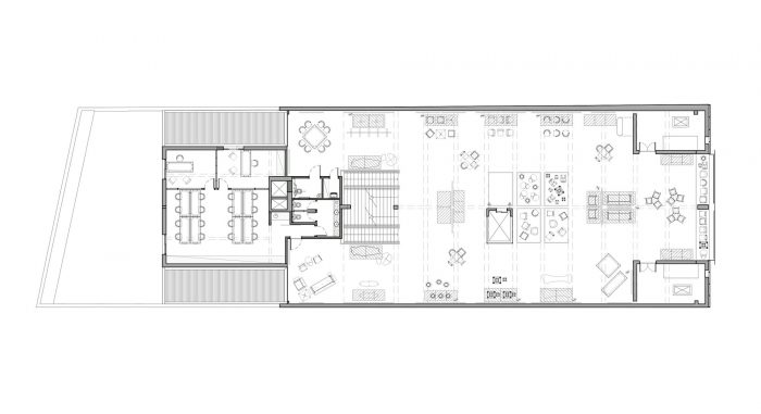
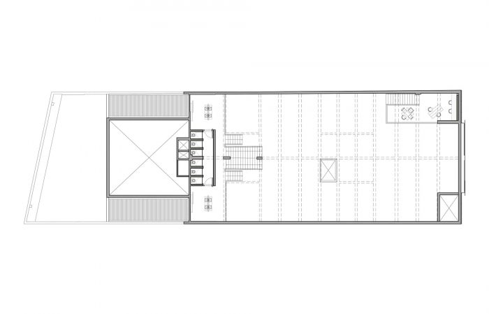
TOG旗舰店占地2100平方米,分布在地下室、地面、一楼和二楼,将容纳仓库、展厅、办公室、花园和一个新的餐厅--Marakuthai for TOG--由厨师Renata Vanzetto领导。
With 2.100 square meters distributed in basement, ground, first and second floor TOG Flagship will host warehouse, showroom, offices, garden and also a new restaurant – Marakuthai for TOG - headed by Chef Renata Vanzetto.












Architects: Philippe Starck, Triptyque
Year : 2015
Photographs :Ricardo Bassetti
Construction : Brandao e Marmo
Structures : Brandão e Marmo
Air Conditioner : Tottal Tec
Construction Contributors : Anderson Toledo, Tiago Santos
Landscaping : Camila Vicari
Hydraulics : L2C Engenharia
Electricity : L2C Engenharia
PPCI : Engepoint
Ground Floor : 823,56m²
Under Ground : 748m²
1rst Floor : 600m²
1rst Floor Mezzanine : 107,05m²
2nd Floor : 499,35m²
2nd Floor Mezzanine : 154,00m²
Total Area : 2.108,40 m²
Triptyque, Associates : Greg Bousquet, Carolina Bueno, Guillaume Sibaud e Olivier Raffaelli
Triptyque, General Coordinator : Luiz Trindade
Triptyque, Project Manager : Alfredo Luvison
Triptyque, Contributors : Guilherme Ramalho, Ulysse Baudet, Joana Telles, Bruno Cruz
Air Conditioning : Tottal Tec
City : São Paulo
Country : Brazil