这座历史悠久的建筑大约建于1900年,在20世纪40年代进行了扩建,过去曾作为杂货店、脱衣舞俱乐部、律师事务所和发廊等业务经营。
Built in approximately 1900 with a 1940s extension, the historic structure has operated as a grocery store, strip club, attorney’s office, and hair salon, among other businesses, in its past.




Davidson Rafailidis收到了一个委托,为当地企业家Buckminster's Cat Café将该空间改造成猫咪咖啡馆。猫咪咖啡馆提供了一个独特的类型,因为卫生法规要求在动物和食物准备之间进行密闭分离,在这种情况下,猫咪和咖啡。这一要求使得Davidson Rafailidis能够扩展工作室在设计隔断空间方面的兴趣,这些空间既支持项目的灵活性,又意味着和鼓励团结和社区。该项目被工作室称为 "Together Apart",是总体地段持续建设计划的第一阶段,它响应了新的城市分区,鼓励高密度建设,并进一步推动了Davidson Rafailidis设计异质、混合使用空间的努力,为广泛的用户提供服务。
Davidson Rafailidis received a brief to transform the space into a cat café for a local entrepreneur, Buckminster’s Cat Café. Cat cafés offer a unique typology, given health regulations that demand an air-tight separation between animals and food preparation—in this case, cats and coffee. This requirement allowed Davidson Rafailidis to expand on the studio’s interest in designing partitioned spaces that support programmatic flexibility but still imply and encourage togetherness and community. The project, which the studio has called Together Apart, is the first phase of a continual construction scheme on the overarching lot, which responds to new city zoning that encourages high-density construction and furthers Davidson Rafailidis’ efforts to design heterogeneous, mixed-use spaces that service a wide range of users.

虽然Davidson Rafailidis的设计目前解决了猫咪咖啡馆的问题,但它可以很容易地适应其他需要划分但不绝对的二元化场景,比如笔记本电脑/非笔记本电脑使用空间、音乐/安静空间、吸烟/不吸烟空间,以及COVID抗体携带者和非抗体携带者的及时情况。"我们有兴趣将原本有问题的活动连接在一起,"Davidson Rafailidis的联合校长Stephanie Davidson说。
While Davidson Rafailidis’ design currently resolves as a cat café, it could easily accommodate other dualistic scenarios where division is necessary but not absolute, such as spaces for laptop/non-laptop use, music/quiet, smoking/non-smoking, and the timely situation of COVID antibody carriers and non-antibody carriers. “We are interested in connecting activities that are otherwise problematic to come together,” says Stephanie Davidson, co-principal of Davidson Rafailidis.


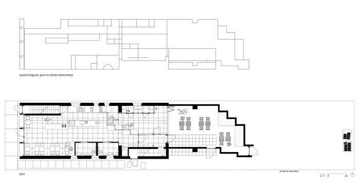
Davidson Rafailidis强调了 "Together Apart "的精神,其布局和设计方案的特点是分离、切片和重叠的结合。"虽然有一个满足卫生规范的物理分隔,但它只是空间中众多切片、错位、错位和镜像元素中的一个。"Davidson说。该建筑可以从两端进入,使两个半部分的功能独立,同时在物理上和视觉上仍有联系。面向街道的入口,通过砖砌的外墙,直接通向咖啡馆和厨房,在那里供应和准备咖啡和糕点。从猫咪庭院(被亲切地称为 "catio")进入的后门,则是猫咪生活的后方环境,与客人和潜在的领养者互动。
Davidson Rafailidis emphasized the ethos of Together Apart with a layout and design scheme characterized by a combination of separations, slices, and overlaps. “While there is a physical separation satisfying the health code, it is just one of many sliced, mismatched, misaligned, and mirrored elements in the space,” says Davidson. The building can be accessed from either end, allowing an independent functioning of both halves while still being physically and visually connected. The street-facing entrance, through the brick facade, leads directly to the café and kitchen, where coffee and pastries are served and prepared. The back entrance, which is accessible from the cat patio (affectionately dubbed the “catio”), opens into the rear environment where the cats live and interact with guests and potential adopters.


这些异质的区域在一系列透明、曲折的隔断中相遇。厨房的台面被玻璃墙切开,让猫咪从咖啡馆中意外的视觉相遇。同样,长长的水磨石长椅和连续的灯带被隔离墙分叉,但却延伸到两个区域,形成进一步的视觉连续性和联系。窗户同样一半伸入盥洗室,一半伸入座位区,阶梯式的卫生间与阶梯式的猫厕所相映成趣。
These heterogeneous zones meet in the middle at a series of transparent, zig-zagged partitions. The kitchen counter is sliced by a glass wall allowing for unexpected visual encounters of cats from the café. Similarly, long terrazzo benches and a continuous light strip are bifurcated by the separation wall but extend into both zones, creating further visual continuity and connection. Windows likewise stick halfway into the washroom and halfway into the seating area, and the stepped bathroom is mirrored by the stepped cat-litter-room.


在建筑的后部,猫咪区域被一个折叠式滑动的铝制外墙分割成两半,通向一个碎石天井。一面砖墙将天井围了起来。一边是阶梯,一边与相邻的玻璃隔断的曲折形式相呼应,并在后部被一扇大玻璃窗穿透。窗户的框架安装在外部,从天井内部看不到,并创造了一个没有遮挡的开口的错觉--仿佛猫咪随时可能跳出来。同样,它也模糊了室内和室外的分隔,建立了一条连接项目各个区域的连续视线。
At the building’s rear, the cat area is halved by a folding-sliding aluminum façade, which opens onto a gravel patio. A brick wall hems the patio. Stepped on one side, it echoes the zig-zagging form of the adjacent glass partition and is perforated by a large glass window at the rear. Surface-mounted onto the exterior, the window’s frame is invisible from the patio’s interior and creates the illusion of an uncovered opening—as if the cats could jump out at any moment. Likewise, it blurs the separation between inside and outside, establishing a continuous sightline connecting the project’s various zones.

在整个装修中,材料和颜色的搭配都是干净、中性和有凝聚力的,通过隔断墙进一步强调了视线。黑色的水磨石瓷砖铺设在室内地面上,从前面的咖啡馆到后面的猫咪环境,而与之相匹配的水磨石柜台和长椅延伸到两个区域,形成镜面体量。内部墙壁和窗框被涂成白色、浅灰色,或者用轻木(白橡木胶合板、白杨木)包覆,硬件是不锈钢和天然阳极氧化铝。"我们的想法是使用像水磨石这样有弹性的材料,这样内部可以像外面的砖壳一样经得起时间的考验,"戴维森说。"而沉稳的调色板是为了突出任何特定的、程式化的元素最终被植入空间。"
Across the renovation, the material and color palettes are clean, neutral, and cohesive, further emphasizing sightlines through dividing walls. Black terrazzo tiles line the interior floor, from the front café to the back cat environment, while matching terrazzo counters and benches extend into both zones creating mirrored volumes. Interior walls and window frames are either painted white, light gray, or clad in light wood (white oak plywood, poplar), and hardware is stainless steel and natural anodized aluminum. “The idea was to use resilient materials like terrazzo, so that the inside could withstand time as well as the outside brick shell has,” says Davidson. “And the subdued palette is meant to highlight whatever specific, programmatic elements end up being planted in the space.”

Together Apart的空间适应性体现在Davidson Rafailidis对总体地段的长期愿景中,该地段宽27英尺,长132英尺。在与业主的合作中,工作室将这次改造视为一系列新的多功能结构的第一项,随着时间的推移,这些结构将填充整个地段,这个过程被称为 "持续建设"。这些可以随着资金的到位而建造,并迎合业主和周围社区的特定需求。"迄今为止实现的形式是未来整体的一部分,"戴维森说。"我们问道。一个项目--一栋建筑--能否被认为是一个持续的建设,而不是一次性产生的单一费用?"
The spatial adaptability of Together Apart is reflected in Davidson Rafailidis’ long-term vision for the overarching lot, which measures 27 feet wide by 132 feet long. In collaboration with the owner, the studio sees this renovation as the first in a series of new, mixed-use structures that will fill the entire lot over time, a process referred to as “continual construction.” These can be built as funds are available and catered to the specific needs of the owner and surrounding community. “The so-far realized form is a part of a future whole,” says Davidson. “We asked: Could a project—a building—be thought of as a continual construction instead of a single expense incurred all at once?”

在目前的设计中,未来阶段的元素已经可以看到。后面新建筑的砖块可以用来建造未来的生活/工作空间、鸡舍、小动物诊所、按摩师、反射疗法/按摩或日托,这些砖块已经交付,从天井宽大的观景窗可以看到。此外,9英尺高的砖石 "天井 "墙已被设计成能够支持未来二楼的负荷,如果需要的话。其他结构设想的财产的后方包括一个车棚,可以完成,并随着时间的推移,与一个住宅工作室单位放置在上面封闭。在这个加法模型中,负空间的口袋将是紧密的,但也是有意的--一棵树可以被种植为共享的阴凉,回收/垃圾箱可以被藏在远离视线的地方。最后,在场地的最后面规划了一座塔楼,可以俯瞰整个微观世界。
In its current iteration, elements of future phases are already visible. Blocks for new construction at the rear—which could be used to build a future live/workspace, chicken coop, small animal clinic, chiropractor, reflexology/massage, or daycare—have been delivered and are visible from the patio’s generous lookout window. Additionally, the 9-foot-tall masonry “catio” wall has been engineered to be able to support the load of a future second floor, if desired. Other structures envisioned for the property’s rear include a carport that could be finished and enclosed over time, with a residential studio unit placed above. Pockets of negative space in this additive model would be tight but deliberate—a tree could be planted for shared shade, recycling/garbage bins could be tucked away from view. Finally, a tower planned for the very back of the site would provide a view over the entire microcosm.

针对相对较新的城市分区,鼓励90%的地段密度,Davidson Rafailidis的目标是实现最大密度和形式上的异质性。我们的想法是,这种形式上的异质性将转化为多样化的用户混合物。"形式上不同姿态的群落的总前提是:可利用的空间条件越多,就会有更多的用途和用户被空间所吸引。"戴维森说。"空间如何共享的丰富性,以及不同的项目如何与大量的密度和可见性共存,这真的让我们感到兴奋。"
In response to relatively new city zoning that encourages 90% lot density, Davidson Rafailidis’ goal is to achieve both maximum density and formal heterogeneity. The thought is that this formal heterogeneity would translate to a diverse mixture of users. “The general premise of the cluster of formally different gestures is that: the wider the array of spatial conditions available, the wider array of uses and users will be attracted to the spaces,” says Davidson. “The richness in how spaces might be shared, and how different programs could co-exist with a lot of density and visibility, is really exciting to us.”




























建筑师:Davidson Rafailidis
年份:2020年
摄影:Florian Holzherr
设计团队:Stephanie Davidson, Georg Rafailidis, Alyssa Seguin.
工程师记录:John Banaszak
总承包商:CFR建筑及修复公司
定制制造:Spielman Fabrication
城市:水牛城
国家:美国
Architects: Davidson Rafailidis
Year: 2020
Photographs: Florian Holzherr
Design Team:Stephanie Davidson, Georg Rafailidis, Alyssa Seguin
Engineer Of Record:John Banaszak
General Contractor :CFR Construction & Restoration
Custom Fabrication:Spielman Fabrication
City:Buffalo
Country:United States