位于东京工业大学的入口处,我们设计了一个 "平台 "来容纳学生活动。为了保持校园内突出的地标--钟楼的清晰视野,该建筑的大部分位于地下。在地面上,建筑呈现出郁郁葱葱的小丘状,与周围的景观完美融合。
Located at the entrance of the Tokyo Institute of Technology, we designed a “platform” to house student activity. To maintain a clear vista of the clocktower, a prominent landmark for the campus, most of the building sits underground. Above ground, the building takes on a lush mound-like form, seamlessly integrating with the surrounding landscape.







由阶梯式绿化和看台组成的 "屋顶",与相邻图书馆的绿色斜墙产生共鸣,共同创造了一个绿色山谷。绿谷作为一个新的绿色空间,吸引着学生的生活和活动。
The “roof” which is composed of stepped greenery and bleachers, resonates with the green slanted wall of the adjacent library, collectively creating a green valley. The green valley serves as a new green space to invite life and activity for the students.

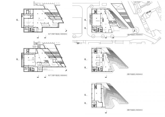
内部空间和外部景观之间的界限通过将阶梯式景观延续到建筑内而变得模糊。这使得共同学习和联合研讨会等活动可以在不同层面同时进行。空间的流动是模糊的,没有明确的空间划分,在视觉上和身体上都刺激了用户的感官。
The line between the interior space and exterior landscape is blurred by continuing the stepped landscape into the building. This allows activities such as co-learning and joint workshops to be held simultaneously on different levels. The space flows ambiguously without clear spatial divisions, stimulating the senses of the users both visually and physically.



为了考虑许多复杂的场地条件,我们首先确定了屋顶的整体断面轮廓,然后是看台扇形的条状台阶。这就形成了一个屋顶轮廓,类似于溢出校园的河流三角洲的景观。通过暴露出支撑屋顶的扭曲结构,内部空间产生了某种流动性。两个建筑景观被创造出来,外部和内部景观,在一个共鸣的和谐中相互关联。
In order to consider many complex site conditions, we first determined the overall sectional profile of the roof, followed by the strip-like steps of the bleachers fanning out. This resulted in a roof silhouette that resembles the landscape of a river delta that spills into the campus. By exposing the twisted structure that supports the roof, the interior space yields a certain fluidity. Two architectural landscapes were created, the exterior and interior landscapes, relating to each other in a resonating harmony.











Architects: Kengo Kuma & Associates
Area: 4879 m²
Year: 2020
Photographs: Kawasumi Kobayashi Kenji Photograph Office
Structure Design: Kanebako Structural Engineers
Facility Design: P.T.Morimura & Associates
MEP Design: P.T.Morimura & Associates
Construction: Kajima Corporation, Hibiya Engineering, Daiei Denki
Project Team:Toshiki Meijo, Keita Watanabe, Kosuke Tanaka, ,Shiho Yoo, Fumiya Kaneko
Architects:Kengo Kuma & Associates
City:Tokyo
Country:Japan