Tolsá 61是对 "Vecindad"(邻里关系)的重新诠释,它位于墨西哥城历史中心西南角的Ciudadela社区,是市中心的一种城市生活。
Tolsá 61 is a reinterpretation of “Vecindad” (neighbourship) an urban life in downtown area, located in the Ciudadela neighbourhood, which is in the southwest corner of the historic center of Mexico City.



该社区保留了许多18世纪和19世纪初的传统建筑,如改造后的墨西哥何塞-瓦斯康塞洛斯图书馆。
The neighborhood mantains much of its traditional architecture of the 18th and early 19th century buildings such as the remodeled Library of Mexico José Vasconcelos.

该项目受到波菲利亚 "Vecindad "模式的启发,有一个纵向的天井到分组公寓的中心,该项目是为寻找一种基于社区、灵活性和居民之间的基本归属感的新生活方式的居民设计的。Tolsa 61试图通过促进有意义的关系的物理空间来挑战传统公寓的生活。
Inspired by the Porfirian “Vecindad” model, with a longitudinal patio to the center of grouped apartments, the project is designed for the inhabitant looking for a new way of living based on community, fexibility, and a fundamental belief of belonging among its inhabitants. Tolsa 61 seeks to challenge the life of traditional apartments through physical spaces that foster meaningful relationships.

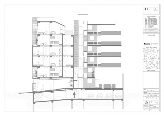
该设计利用环境的优势,通过在建筑体中 "挖掘 "出的受控开口,产生将住房与周围环境联系起来的机制。这些整体性的体量将有助于拥有更好的环境性能,但也是对能够经受时间考验的设计的一种探索。
The design takes advantage of the context to generate the mechanisms needed to link the housing with their immediate sorroundings through controlled openings “excavated” in the building mass. These monolithic volumen will help to have a better environmental performance but also a search for design capable of withstanding the test of time.

外墙的材料是白色的陶瓷砖,有助于减少未来的维护成本,因为它的釉面珐琅层使它不容易被灰尘和天气侵蚀。
The materiality of the facade is white vitrified brick, helping to reduce the cost of maintenance in the future as its glazed enamel layer makes it repellent to the degradation by dirt and weather.

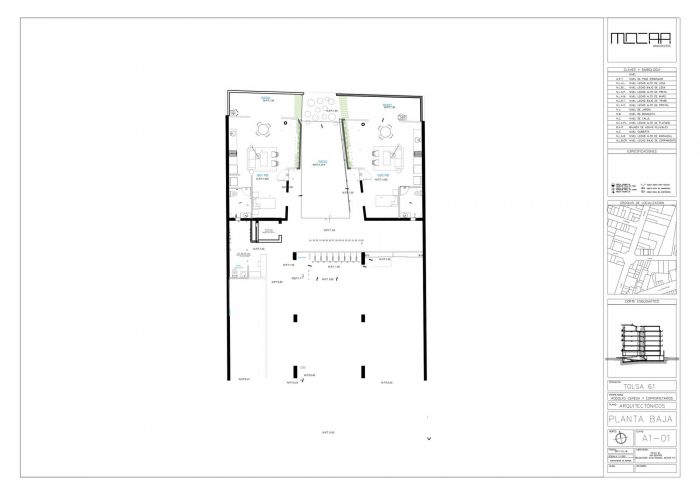
其结果是一个6层楼高的混凝土结构的四边形外墙,其开口呈现为室内的露台环境,其中的树木有助于在气流到达室内之前进行冷却,同时允许自然光穿过建筑。为低收入家庭设计,包含25套公寓,面积在45至60平方米之间。包括一个和两个卧室的混合物。尽管它的面积小,内部结构简单,但每个工作室都有自己的阳台或露台,可以俯瞰中央院落。
The result is a 6-story concrete structure with a tetris facade, where the openings are presented as a terrace setting indoors where trees are located to help cool the airflow before it reaches the interior, as allows natural light to filter through the building. Designed for low-income families, containing 25 apartments, ranging between 45 and 60 sqm. Including a mixture of one and two bedrooms. Despite its small áreas and simple interiors, each studio has its own balcony or terrace overlooking to the central courtyard complex.

流动性是基于社区住房的想法。我们的意图是要做一个无限丰富的地方,是拥挤和无序的。
The fluidity is based on the idea of community housing.Our intention was to make an infinetly rich place that is crowded and disorderly.










Architects: MOCAA ARQUITECTOS
Area: 2500 m²
Year: 2017
Photographs: Jaime Navarro Soto
Manufacturers: Ansa, Tabiques Santa Julia, Tecnolite, Tolteca
Structural Engineering:Humberto Girón
Installations:instalaciones Garrido, Héctor Muñoz
Lightning:L+F Luz y Forma
Landscaping:Cornelis Johannes Maria Van Rooji, Cecilia Diaz Kunkel
Architects In Charge:Juan Pablo Cepeda, Raul Morales, Luis Enrique Angeles, Patricia Juarez Samperio
City:Ejido del Centro
Country:Mexico