葡萄酒中心博物馆将位于胡安-德-雷耶斯的地方,在格拉纳达省这个传统和文化有更大延伸的城市之一。Torvizcón。坐落在Sierra de la Contraviesa的中心,在Costa Tropical内。
The Wine Center Museum will be located in Juan de Reyes’s place, in one of the municipalities with greater extension of this tradition and culture of the province of Granada: Torvizcón. Nestled in the heart of the Sierra de la Contraviesa, within the Costa Tropical.



该项目产生于与环境的整合和互动的需要,作为实施其正式配置的起始前提。
从根本上说,它是对周边环境的尊重和理解。因此,你试图使一个建筑更符合该地区的主要类型,并提供使用的角度和其中包含的活动。
The project arose from the need for integration and interaction with the environment as a starting premise for implementation both to its formal configuration.
It is fundamentally respect and understand the immediate environment. So you try to make a building more in keeping with the predominant types in the area provided with the use of the perspective and activity contained therein.

因此,该建筑并不试图与周围的环境竞争,而是埋在地下,适应现有的地形,只显示在需要的地方,减轻它的视觉效果,因为对于一个仓库空间是需要相当的高度来工作的。
Therefore the building does not try to compete with the immediate environment, but is buried and adapts to the existing topography showing only in areas where it is needed, alleviating the visual effect of it, because for a warehouse spaces are needed considerable height to work.

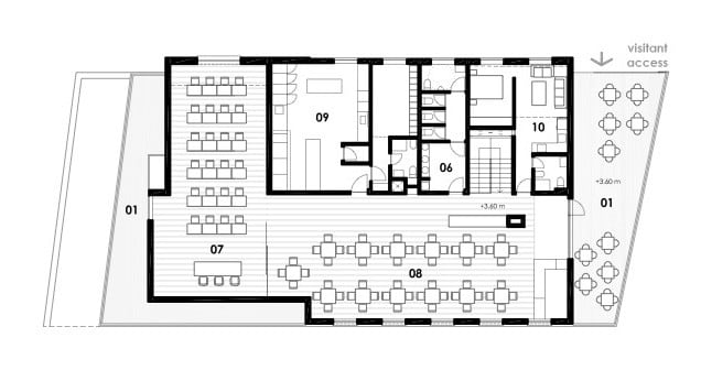
这个项目的目的是鼓励游客直接接触和参与种植、收获葡萄和酿造葡萄酒的过程。解释他们如何在这个领域技术葡萄种植,收获和随后的酿酒与现代技术和创新演变。除了向游客传授这些知识外,他们将有机会参与这些过程中的每一个环节,与他们的成就进行互动。作为一个附加值,也是同样重要的,将有一些课程,演讲者和参与者可以参加。最后,参观者还将有机会品尝到该地区典型的阿尔普哈雷尼亚(alpujarreña)美食,并享受这些设施和该地区其他地方生产的丰富的葡萄酒。
This project was created with the intent to encourage direct contact and participation, by the visitor, with the process of growing, harvesting grapes and making wine. Explain how they have evolved in this area techniques grape growing, harvesting and subsequent winemaking with modern techniques and innovative. In addition to transmitting this knowledge to visitors, they will have the opportunity to participate in each and every one of these processes interacting in their achievement. As an added value and not less important, there will be courses where speakers and participants may participate. Finally, visitors will also have the chance to meet the fabulous cuisine alpujarreña, typical of this area, and enjoy the rich variety of wines produced in both these facilities and the rest of the region.

最后,也是最重要的一点,作为这个项目理念的一部分,它的实现和维护,打算采用最新的技术来促进对环境的尊重。在这个意义上,建设性的理念是基于生物气候建筑,作为利用大自然提供给我们的能量的工具。除了促进和实践回收大部分产生的废物(水、垃圾等),所有的最终目标是以最小的环境影响进入大自然。
Finally and not least as part of the philosophy of this project, its achievement and maintenance, intends to incorporate the latest technologies to foster respect for the environment. In this sense, constructive philosophy is based on bioclimatic architecture as a tool for harnessing the energy that nature provides us. Besides promoting and practicing recycling most of the waste produced (water, garbage, etc..), All with the ultimate goal of entering nature with minimal environmental impact.






















Architects: DTR Studio
Area : 1240 m²
Year : 2011
Photographs :Javier Callejas
Mechanical Engineering : Sb Engineers
Architect In Charge : Jose María Olmedo, José Miguel Vázquez
Collaborators : Claudia Gutierrez, Alba Márquez
Developer : Bodegas Turidianum S.L.
Architectural Technician : Jorge Sánchez
Project Management : Juan Parrilla
City : Torvizcón
Country : Spain