当涉及到改造一个空间时,翻新是传达一个新故事的理想方法。在一个商业区的一排现代店面中,这种转变是显而易见的,它具有独特的外观。这次改造将一个普通的店面转变为万隆的精致家具展厅TOTO Kitchen。
When it comes to transforming a space, renovation is the ideal approach to convey a new story. This transformation is apparent among a row of modern shophouses in a business sector area with a distinctive appearance. This renovation transformed an ordinary shophouse into TOTO Kitchen, an exquisite furniture showroom in Bandung.





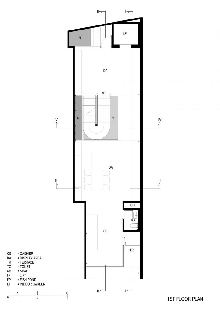
这座建筑原本是一个店面,在其他销售建筑材料的商店中空间有限。这个店面的内部以前是黑暗的,整天都是灯火通明。阿瓦那工作室被信任为用不同的方法来应对这一挑战。关键问题是确定如何保持现有建筑的一部分,以及应用于建筑外部和内部的特征。因为现有建筑的状态相当混乱,所以进行了翻新,以保存和消除一些元素。
This building was originally a shophouse with a space limitation among other shops selling construction materials. The inside of this shophouse was previously dark and the lights were on all day long. Studio Avana is trusted to respond to this challenge with a different approach. The key problem is determining how to maintain part of the existing building as well as the features applied to the outside and inside of the building. Because the state of the existing buildings was rather chaotic, renovations were carried out to save and eliminate some elements.



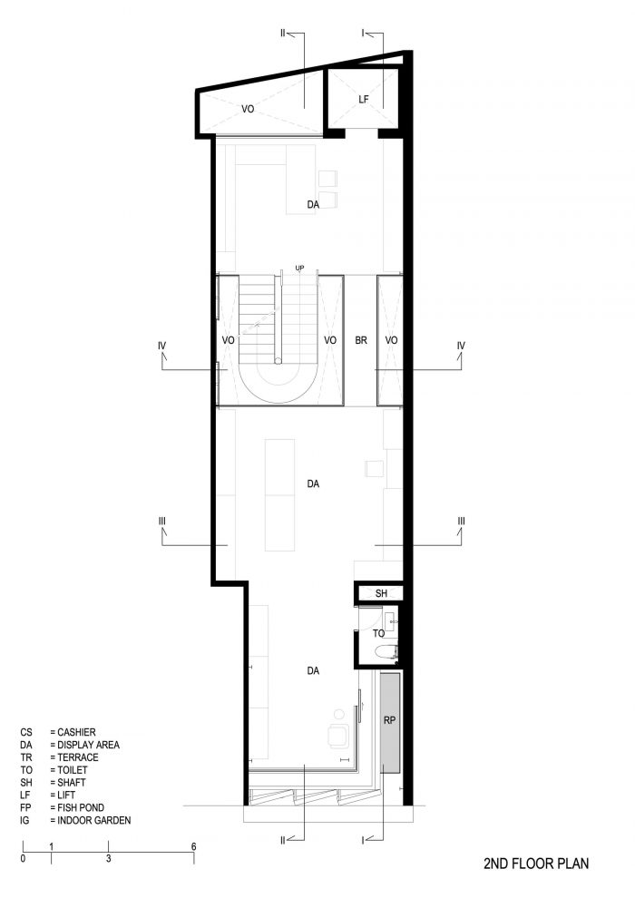
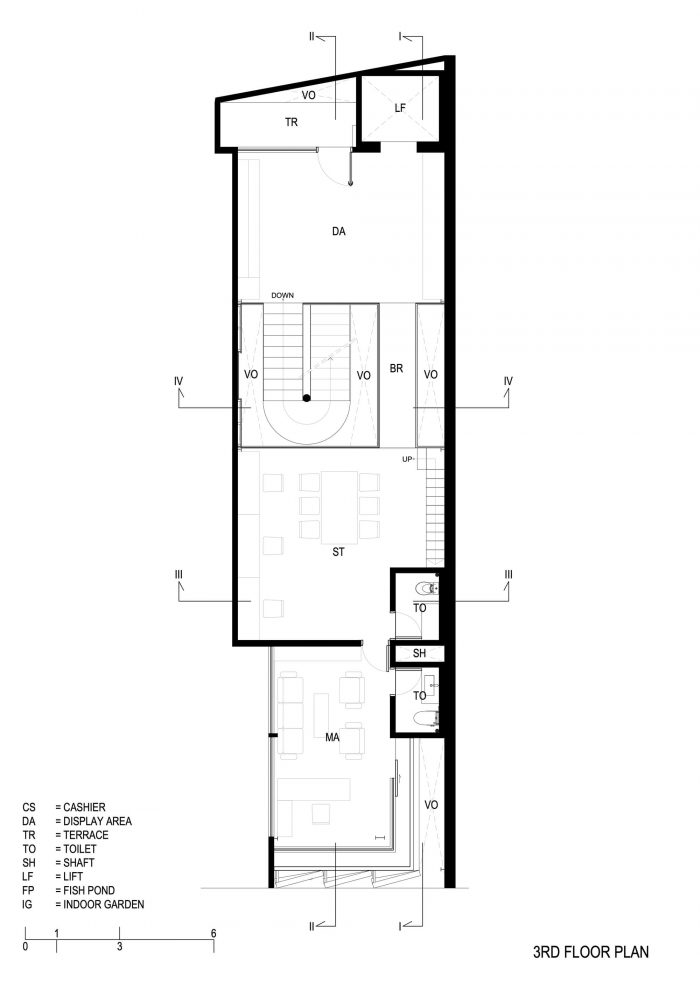
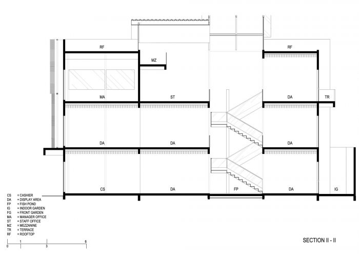
我们的想法是解锁建筑,增加楼层,并利用众多的开口来处理店堂内部的混乱。没有隔断的每一层都是开放的,这样的构成取代了这个店屋改造的以往面貌。每一层都通过将其分为玻璃、木材、茶水间和家具等几个区域来容纳陈列室的必需品。屋顶中央的开口的双重功能是该建筑值得注意的地方之一。它不仅提供了自然采光,节约了能源,而且还起到了 "隔断 "和空间过渡的作用,根据展厅区域类别将前后部分分开。
The idea is to unlock buildings, add levels, and utilize numerous openings to deal with the disarray inside the shophouse. The composition of each floor that is open without partitions has replaced the previous face of this shophouse renovation. Each level accommodates showroom necessities by categorizing them into several zones such as glass, wood, pantry, and furniture. The double function of the opening in the center of the roof is one of the building's noteworthy aspects. It not only provides natural lighting and saves energy, but it also serves as a "partition" and a space transition that separates the front-back section based on the showroom zone category.


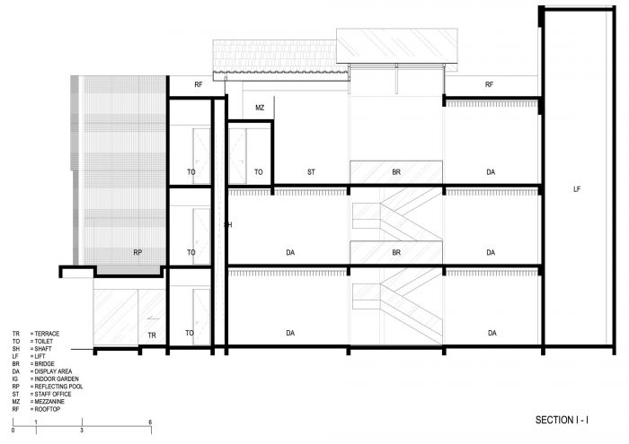
带有连续扶手的楼梯的存在,将沐浴在自然光下的过渡区变成了建筑使用者的这样一个流通区域。梯子栏杆是由穿孔金属制造的,不会阻碍光线。此外,一个连接桥的作用是连接二楼和三楼的前后部分,与垂直墙面花园平行。因此,该建筑中的绿色空间占到了建筑整体面积的20-30%。这个过渡区也意味着现代热带以及工业风格的融合。另一个亮点是三楼的夹层,它通过一个开口与屋顶和烧烤区相连。这个建筑的开口允许交叉通风。楼梯下面和主入口正上方的反射池也改善了建筑的空气流通。
The presence of stairs with continuous handrails transforms the transition zone, which is showered in natural light, into such a circulation area for building users. The ladder rail is manufactured of perforated metal, which does not impede the light. In addition, a connecting bridge serves to connect the front-back section of the second and third floors parallel to the vertical wall garden. As a result, the green space in this building counts for 20-30% of the building's overall area. This transition zone also implies a fusion of modern tropical as well as industrial style. Another highlight is the third-floor mezzanine, which is connected to the rooftop and BBQ area via an opening. This building's openings allow for cross-ventilation. The building's airflow is also improved by a reflecting pool beneath the stairs and directly above the main entrance.

这座建筑的外部朝北,由于使用了玻璃,显得很开阔,随后又应用了坚固的轻质铁架形式的第二层皮肤。二级表皮有多种用途,包括直接阻挡光线和建筑安全系统。这一设计的实施代表了TOTO厨房,它的程序是为游客持续不断地提供服务,使用优秀的材料选择来支持当今动态的生活方式。
The exterior of this building faces north and appears open due to the use of glass, which is followed by the application of secondary skin in the form of a robust lightweight iron trellis. Secondary skins serve multiple purposes, including direct light barriers and building security systems. The implementation of this design represents TOTO Kitchen, which is programmed to serve visitors continually and constantly on the move, using excellent materials selection to support today's dynamic lifestyle.








Architects: Studio Avana
Area : 350 m²
Year : 2020
Photographs :KIE
Manufacturers : Lumion, SketchUp, Adobe Creative Cloud, AutoCAD, Kanmuri Roofing, Niro granite, Stopsol, Toto, Toto Kitchen, Venus Tiles
Design Team : Nadia Rahmalia Putri
Client : Sebastian Yoel
City : Bandung
Country : Indonesia