2019年,一对刚生完第三个孩子的夫妇与我们联系,他们希望通过在奥斯陆的半独立式住宅中增加一个扩建部分来增加他们的生活空间。现有的房子位于一个斜坡的顶部,穿过一个盛产松树的区域,而且这个地方有很好的南向视野。我们很早就意识到,将扩建部分安置在现有房屋的东南端,可以利用景观,在现有和新的之间建立明确的联系,并实现合理的内部物流。但有一个很大的挑战;市政府对每个地块的可用室外空间的数量有具体的要求,而我们的场地并不符合这些要求。
In 2019 we were contacted by a couple who had just given birth to their third child, and who wanted to increase their living space by adding an extension to their half of a semi-detached house in Oslo. The existing house was located on top of a slope running through an area rich in pine trees, and the site had great views towards the south. We realized early on that locating the extension on the southeast end of the existing house would allow for utilization of the view, a clear connection between existing and new, and rational internal logistics. There was one big challenge though; the municipality had specific requirements for the amount of usable outdoor space on each plot, and our site did not meet these demands.






因此,为了获得建筑许可,我们必须找到一种方法,使扩建工程本身增加户外空间的数量--这是一个自相矛盾的挑战;你如何在现有的户外区域上建立一个更大的户外区域......解决方案是将扩建工程置于斜坡上。这样,我们就可以用一个符合标准的区域取代一个过于陡峭而不能被定义为户外生活空间的区域;在扩建部分的顶部建立一个屋顶露台。
So; in order to get a building permit we would have to find a way to make the extension itself increase the amount of outdoor space - a challenge that was something of a paradox; how do you establish a larger outdoor area simultaneously as building on existing outdoor areas… The solution was to place the extension on the slope. This way we could replace an area that was too steep to be defined as outdoor living space with one that met the criteria; a roof terrace on top of the extension.

扩建部分在斜坡上的定位也使我们有可能实现家庭的其他几个愿望:将现有的房子与斜坡底部的一个较低的花园连接起来(这个区域一直没有被使用,因为它被认为是无法进入的),并在新结构下整合一个车棚。我们希望窄坡的范围能在视觉上定义扩展的宽度,我们希望结构有一个独特的垂直外观--这意味着我们必须加强 "高和窄 "的感觉--同时不影响功能方面。
The positioning of the extension on the slope also made it possible to fulfill a couple of other wishes from the family; connecting the existing house to a lower garden on the bottom of the slope (an area that had not been used because it was perceived as inaccessible), and integrating a carport under the new structure. We wanted the extent of the narrow slope to visually define the width of the extension, and we wanted the structure to have a distinct vertical appearance - meaning we had to enhance the perception of «high and narrow» - without compromising on functional aspects.


这是通过几个不同的措施来实现的;二楼 "桥 "的外墙被拉回并打开,以使垂直的 "塔 "脱颖而出,底层(在车棚下延伸)只在塔的底部可见,而屋顶露台的栏杆在构成塔顶的地方变得很密集。这种逻辑适用于扩建部分的两端,而东南方向的外墙有大窗户,可以捕捉到附近的松树和后面的地平线,并向内转移,这样可以使末端外墙的宽度保持在最低水平。主入口被移到新结构的第一层,利用了塔楼的中间部分和扩建部分的最窄部分。
This was achieved through a couple of different measures; the facade of the second floor «bridge» is pulled back and opened up to allow for the vertical «tower» to stand out, the ground floor (which extends under the carport) is made visible only at the base of the tower, and the railing on the roof terrace is made dense where it makes up the top of the tower. This logic applies to both ends of the extension, while the south-east facing facade has large windows that capture the nearby pine trees and the horizon behind them, and shifts inwards so that the width of the end facades can be kept at a minimum. The main entrance was moved to the first floor of the new structure, utilizing the mid-part of the tower and the narrowest part of the extension.

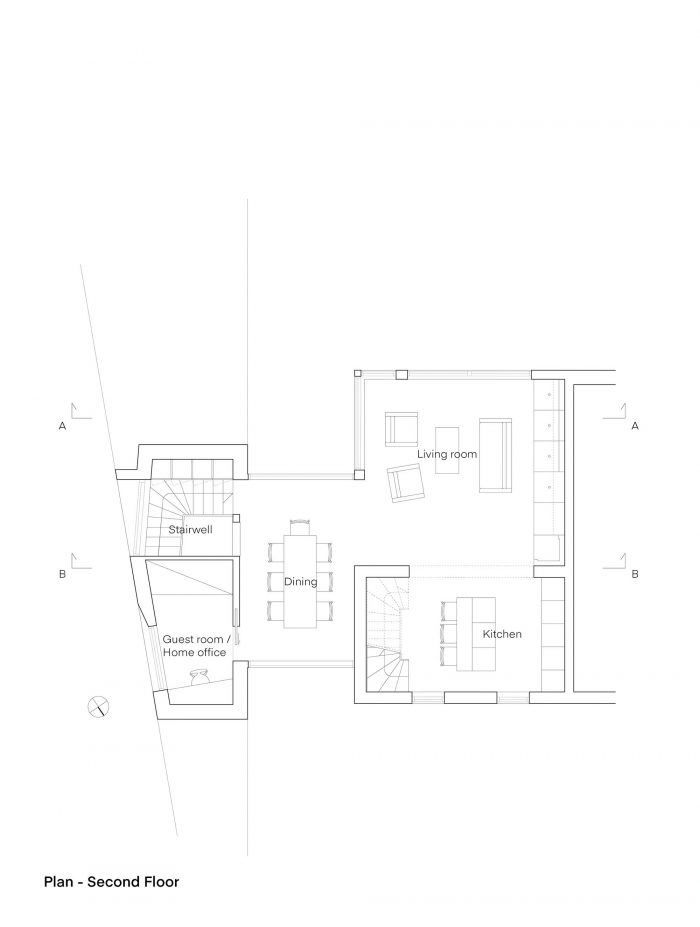
从入口大厅,一个楼梯通向邻近下面花园的工作室公寓和上面的主要生活空间。在这里,一个新的餐厅占据了桥梁,而现有房屋墙壁上的一个大开口连接了新旧两处。主要的生活空间横跨这一层,从地板到天花板的窗户开口提供了不同的视野,包括附近地区和更远处的奥斯陆峡湾。
From the entrance hall, a staircase leads to a studio apartment adjacent to the lower garden below and to the main living space above. Here a new dining room occupies the bridge, while a large opening in the wall of the existing house connects old and new. The main living spaces span across this storey, where window openings from floor to ceiling provide varied views that include both the nearby area and the Oslo Fjord further away in the distance.

现有房屋内的第二个楼梯提供了通往该建筑上层和扩建部分顶部的屋顶平台的通道。我们希望有一种外墙材料能够同时增强塔楼的形状和东面窗户周围的细节。我们选择了胶水安装的纤维水泥板,因为它们能够精确、不反光、低调地表达--我们认为这些品质可以补充现有房屋上稍显粗糙的砂浆墙。扩建部分的内部设计与外部形成了温暖的对比,并由短程挪威木材组成,其形式包括云杉的承重结构、墙壁和桦木胶合板的楼梯扶手、杨木的天花板,以及松木的地板/楼梯/门/窗。
A second staircase inside the existing house provides access to the upper level of this building and to the roof terrace on top of the extension. We wanted a facade material that was able to enhance both the shape of the tower and the details around the windows on the east facade. Glue-mounted fibre cement panels were chosen for their ability to be precise, non-reflective, and subdued in their expression - qualities we felt would complement the slightly rougher mortar wall on the existing house. The interior of the extension was designed to represent a warm contrast to the exterior, and consist of short-traveled Norwegian wood in the form of load-bearing structures in spruce, walls, and stair railings in birch plywood panels, ceiling-slats in aspen, and floors/stairsteps/doors/windows in pine.














Architects: Resell+Nicca
Area: 66 m²
Year: 2021
Photographs: Olav Resell
Manufacturers: Kingspan Insulated Panels, Swisspearl, Moelven, Oslo Finerfabrikk, RAD
General Contractor: A&M AS
Contractor: A&M AS
Structural Engineer: Concisu AS
Entire Project:Olav Resell, Nicca Gade Christensen
Sanitary Installations:Vannverket AS
City:Oslo
Country:Norway