该项目地点的条件是宽20米,长80米,这在城市的独立屋设计中被认为是一个具有挑战性的土地类型。设计标准之一是来自业主的要求,他喜欢写作和阅读,并经常锻炼以保持良好的健康。我们想象这个房子有一个非常私人的、宁静的、大量的绿化空间,并与运动单元(健身房、室外游泳池和跑道)相结合。
With the condition of the project’s site location having 20 meters wide and 80 meters long which is considered a challenging land type in the design of single detached houses in the city. One of the design criteria comes from the owner’s request, he loves to write and read books and always exercises to keep himself to be in a good health. We have imagined this house which has a very private, serene, and a lot of greenery space and integrating with exercising units (gym, outdoor swimming pool, and running track).





我们的设计不仅从如何在保持分离感的同时连接整个生活单元的问题开始布置概念和设计过程,而且还从如何创造一种连接前面和后面的连续感的问题开始。我们想出了 "墙 "的概念。墙成为视觉元素,帮助我们创造一个隔间的感觉,同时将房子的其他部分联系在一起。我们还利用墙来创造一个与内部花园(庭院)的封闭空间,这使得每个生活单元可以改变开口,空气、光线和气氛的流动。
Our design begins to lay out the concept and design process not only from the question of how to connect the whole living units while keeping the sense of separation but also from the question of how to create a sense of continuity linking the front to the far back. We come up with the idea of “the Wall”. The wall becomes the visual element that helps us create the sense of a compartment at same time linking other parts of the house come together. We also use the wall to create an enclosed space with the inner garden (courtyard), which allows each living unit to alter the opening, the flow of air, light, and atmosphere.

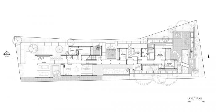
TP之家是一栋一层的房子,底层面积为500平方米(包括屋顶在内为800平方米),由两个主要隔间组成。前面的隔间是餐厅、客厅、客室的位置,包括通往屋顶设施的60米长的轨道。后面的隔间是一个私人单元,包括一个主卧室、更衣室、主浴室和一个私人图书馆,围绕着一个大鱼池和一个绿色的花园。
TP House is a one-story house with an area of 500 sq.m. on the ground floor (800 sq.m. including the rooftop), consisting of two main compartments. The front compartment is a location of the dining room, living room, a guest chamber, including the way up to the rooftop facility like 60 m. long-running track. A back compartment is a private unit consisting of a master bedroom, dressing room, main bathroom, and a private library surrounding a large fishpond and a greenery garden.



游泳馆和健身房将位于这两个隔间的中心位置。墙壁是主要的建筑特征,相当大,它们是由火山石填充的。一旦火山墙由显示木制模板痕迹的混凝土浇注天花板和显示表面光滑和粗糙混合的混凝土浇注圆柱组成,它们就会在热带生活方式的结合中创造出与现代生活方式的联系的感觉。这就是我们想要实现的目标。
The swimming and gym will be located at the center of these two compartments. The walls, the main architectural feature, are quite large and they are cladded with volcanic stone. Once the volcanic walls are composed of a cast concrete ceiling showing the trace of the wooden formwork and a cast concrete cylinder pillar showing the mixture of smoothness and roughness on the surface, they create a feeling of connection to the modern lifestyle in a combination of tropical ways of living. That is the goal we want to achieve.



从地面出发,走过楼梯的小巷,我们想为屋顶区域创造一种转变的感觉。屋顶的长度为60米,可以用来慢跑和锻炼身体。对于屋顶的其他部分,我们准备安装太阳能板。这个区域是独特和特殊的,因为每天早上和日落前,它都会给你一个如画的场景,并能看到Doi Suthep山的全景,这是当地人崇拜和尊重的清迈圣山。
Moving from the ground and walking through the alley of the staircase, we would like to create a sense of transformation for the rooftop area. The rooftop is 60 meters in length and can be used for jogging and exercising. For other parts of the roof, we prepare for solar panel installation. This area is unique and special because every morning and before sunset, it gives you a picturesque scene, and a panoramic view of Doi Suthep Mountain, the holy mountain of Chiang Mai which the local people worship and respect.











Architects: 2929 Design Lab
Area : 800 m²
Year : 2022
Photographs :Light Addict Photography
Manufacturers : Rock finishing By Tarapat (Local brand), SK Kaken
Lead Architect : Sant Suwatcharapinun
Interior Design : Atelier Builder Co.,Ltd.
Landscape Architect : H2O Design Co.,Ltd
Contractors : Proud Built Co.,Ltd.
Interior Contractors : Vorrawut Furniture & Décor
Architect : Nonnapat Nonthaman
City : Tambon Chang Phueak
Country : Thailand