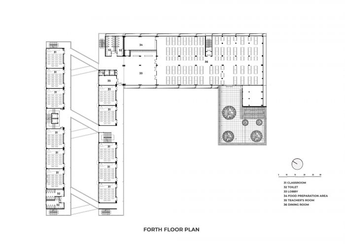
Tran Duy Hung街(河内Cau Giay区)被认为是快速发展的新城区之一,人口密集,有许多住房项目、高层公寓楼、现代建筑的服务工程。设计任务是建造一所新的公立中学,规模为一个地下室,5层楼,44个教室,充满了学科教室,一个多功能区,游泳池,这些都完全满足国家二级标准。总体规划的思路是以街区组合为基础,主立面面向西南方向的道路。建筑物包括教室、功能教室和体育馆,它们通过一个桥梁系统连接在一起,覆盖在中央庭院。
Tran Duy Hung Street (Cau Giay district, Hanoi) is considered one of the new urban areas with rapid development, densely populated with many housing projects, high-rise apartment buildings, service works with modern architecture. The design task was to build a new public secondary school with a scale of one basement, 5 floors, 44 classrooms full of subject classrooms, a multi-purpose zone, swimming pool which all fully meet the national criteria level 2. The idea of planning the master plan is based on a block combination, the main façade is facing the southwest road. The building includes classrooms, functional classrooms, and a gymnasium that is altogether connected through a bridge system, covering the central courtyard.




目标是在东北-西南轴线上优先安排教室,以实现最佳的通风和自然采光,并确保舒适和防噪音。学校被规划在土地的背面,远离主干道。具有多种功能的体育馆可以为社区服务,如游泳池,多功能区安排在主干道旁--方便进出,起到了防止主干道的噪音影响教室的作用。
The goal is to prioritize the arrangement of classrooms at the Northeast - Southwest axis to achieve optimal ventilation and natural lighting and to ensure comfort and noise protection. The school is planned at the back of the land, far from the main road. The gymnasium with many functions can serve the community such as a swimming pool, and multi-purpose area arranged adjacent to the main road - convenient in access and plays the role of preventing noise of the main road from affecting the classrooms.


特别是,屋顶的设计目的是为学生创造一个绿色空间和植物园。虽然内城学校的自然体验空间越来越被遗忘,但保持屋顶上的绿色空间可以培养学生对自然界的理解和体验。由于该项目采用了4.0技术的自动农业的应用,学生可以见证并参与到农业生产过程中。由于建筑密度低,学校的建筑旨在将绿色空间带到高楼层:6000平方米的蔬菜和绿色花园被规划成多种类型--适合每个季节的高低树木,如蔬菜区、花卉区、户外图书馆区等。从公寓的角度看,整个学校就像在拥挤的城市中心的一个绿色公园。建筑的设计采用了极简主义风格,利用建筑本身来发挥建筑美学价值,与该地区的整体景观融为一体。色彩简单而灵活,富有吸引力。
In particular, the roof is designed with the purpose of creating a green space and botanical garden for students. While natural experiential spaces in inner-city schools are increasingly forgotten, maintaining the green spaces on the roof allows for developing students' understanding and experience of the natural world. As the project uses the application of automatic agriculture with 4.0 technology, students can witness and participate in the agricultural production process. With a low construction density, the architecture of the school aims to bring green space to a high floor: 6000 sqm vegetable and green garden is planned into many types - tall and low trees suitable for each season such as vegetable area, a flower area, outdoor library area, etc. From the view of the apartment, the whole school looks like a green park in the heart of a crowded urban area. The architecture of the building is designed in a minimalist style, using the building itself to bring out architectural aesthetic value, integrating with the overall landscape of the area. The colors are simple but flexible and attractive.


为了达到节能和耐用的标准,建筑结构和材料采用了现有的材料技术,但也寻求新的建筑解决方案,这些解决方案具有突出的效果,如钢筋混凝土结构解决方案与不需要抹灰的薄膜涂层百叶窗系统;柱式阳台系统创造了通风以及最小化可视性,非测量地板系统,具有自我清洁技术的釉面陶瓷墙砖。该设计根据新的教育标准,如:"以学生为中心","以学生为中心","以学生为中心","以学生为中心": “以学生为中心","适合生理和心理年龄","玩中学-学中玩","在学校的每一天都是快乐的一天"。
To reach the energy saving and durability criteria, building structures and materials applied existing material technologies, yet seek for new construction solutions which had outstanding results as reinforced concrete structures solution with a film-coated shutter system that does not require plastering; Column balcony system creates ventilation as well as minimizes visibility, non-measurable floor system, glazed ceramic wall tiles with self-cleaning technology. The design pulled off simultaneous, convenient use in teaching and learning, approaching modern school models in the region and the world according to new educational standards such as: "Students as the center", "Suitable for physiological and psychological age", "Play to learn - learn to play”, “Every day at school is a happy day".























Architects: Sunjin Vietnam Joint Venture Company
Area: 21586 m²
Year: 2022
Photographs:Chimnon Studio
Manufacturers: Austrong, Autodesk Autocad, Autodesk Revit, Conwood, Lixil-Inax, Mitshubishi, Rạng Đông, Việt Nhật (Vietnam - Japan), Việt Pháp (Vietnam - France)
Lead Architects: Tran Nguyen Quang, Le Van Hao
Idea Design: Dinh Van Thanh
Architecture And Interior Design: Nguyen Quang Hai
Landscape Design: Dinh Van Thanh
Detail Design: Nguyen Hoang Hiep
Architecture Illustration: Nguyen Ngoc Duc, TRAN Huyen Trang
Structural Engineer: Tran Thanh Tung
Hvac Design: Nguyen Tu Ha
Water Supply And Drainage Design: Nguyen Manh Hung
Fire Prevention: Thien Long Fire Protection Co., Ltd
Country: Vietnam