一个位于悉尼北部海滩的年轻家庭购买了一栋位于陡峭街区后面的高大树木中的现有房屋。现有的房子受到高层通道的限制,户外空间不尽人意。我们被邀请来审查各种可能性和选择。
A young family based on the northern beaches of Sydney bought an existing house located high in the trees at the back of a steep block. The existing house was constrained by high-level access and an unsatisfactory outdoor space. We were enlisted to review the possibilities and options.



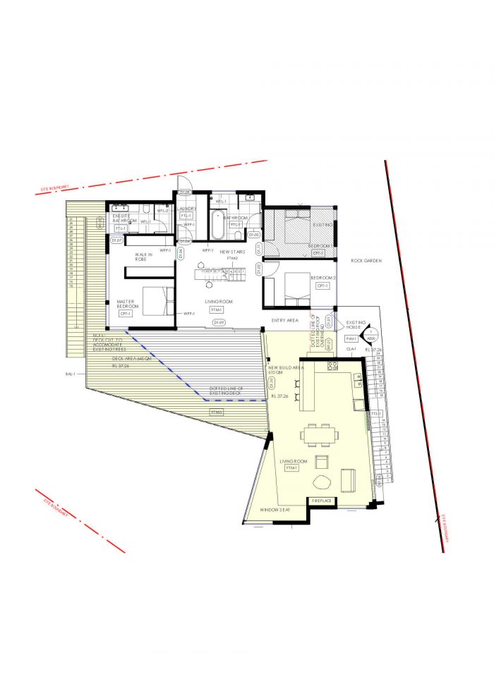
新增加的60平方米的空间整合了一个入口区,一个延伸到甲板区,生活和厨房区。旨在集中入口空间,额外的工作给整个内部空间带来凝聚力,就像一个空间之间的支点。开放式的楼层规划允许灵活性和功能性,重点是自然光和与户外的联系。
The new 60sqm addition integrates an entry area, an extension to the deck area, living and kitchen zone. Intended to centralize the entry space, the additional works to give cohesion to the overall internal space acting like a pivot between the spaces. The open floor plan allows for flexibility and functionality with a focus on natural light and connection to the outdoors.


覆盖在黑色的定制球体上,类似树屋的附加物盘旋在木材包覆的存储区上,形成了入口区的一个庇护面。我们有意将对当地环境的破坏降到最低,并将现有的树木整合到整个露台的加建中。大窗框向树冠望去,而推拉门完全缩进,使厨房和现有的生活空间直接流向甲板区。
Clad in a black custom orb, the treehouse-like addition hovers over the timber-clad storage zone, forming a sheltered aspect of the entry area. We were intent on minimizing the disruption to the local environment and have integrated the existing trees within the overall deck addition. Large window boxes look out onto the tree canopy while sliding doors retract fully to allow the kitchen and existing living space to flow directly to the deck area.


North by North成立于2014年,专注于可持续发展、室内建筑和接待服务。
North by North was established in 2014 with a focus on sustainability, interior architecture, and hospitality.









Architects: North by north
Area: 60 m²
Year: 2021
Photographs:Simon Whitbread
Builder: MJK Building
Director Of Architecture: Ruth Mckenzie
Architect: Jamie Yoo
City: Freshwater
Country: Australia