我们的目标是建造一座可以看到大海的树屋。一座木头做的房子。然而,在我们参观现场时发现,现有的树木不够大,无法建造理想的房子:有一个开放式的客厅和厨房空间,一个浴室和一个睡觉的空间。
The objective was to build a tree house that affords a view of the sea. A house made of wood. However, it became clear on our visit to the site that the existing trees were not large enough to build the house as desired: with an open plan living and kitchen space, a bathroom and a space for sleeping.





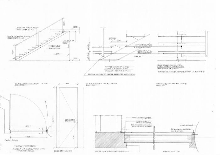
于是,树屋就成了一座定位在树梢旁的房子。海景是一个绝对的条件。一场暴风雨让我们意识到,结构必须足够坚固,以抵御来自海上的强风。混合结构--混凝土、钢和木头--的坚固性是结晶的原则。最主要的元素是木材。
The tree house thus became a house positioned next to the treetops. The view of the sea was an absolute condition. A storm made us aware that the structure had to be solid enough to resist the strong winds coming from the sea. The solidity of a mixed structure – concrete, steel and wood – is the principle that crystallised. The dominant element is the wood.



结构木料是经过高压灭菌处理的松木。外包层是由海洋胶合板制成。木地板是由松木制成的。内部覆层是桦木胶合板。门和储物空间门由木纤维制成。窗框由银杉制成;外面的甲板由处理过的松木制成。墙体用凝结软木保温。内:强调嗅觉、触觉和舒适度。室外:近到几乎可以触摸到的树木,远处的风和海。
The structural wood is autoclave-treated pine. The exterior cladding is made of maritime plywood. The wooden floor is made of pine. The interior cladding is birch plywood. The doors and storage space doors are made of wood fibres. The window frames are made of silver fir; the outside deck of treated pine. The walls are insulated with agglomerated cork. Inside: an emphasis on smell, touch and comfort. Outside: trees so close that one can almost touch them, the wind and the sea in the distance.





















建筑师:RA+TR arquitectos
面积:947平方英尺
年份:2015年
摄影:José Manuel Rodrigues
厂商:AutoDesk, Investwood, Viroc, Damásio & Leal, Sanitana
首席建筑师:Rui Reis Alves和Teresa Rodeia
结构:Francisco Salpico
客户:Particular
城市:波尔图科沃
国家:葡萄牙
Architects: RA+TR arquitectos
Area: 947 ft²
Year: 2015
Photographs: José Manuel Rodrigues
Manufacturers: AutoDesk, Investwood, Viroc, Damásio & Leal, Sanitana
Lead Architects:Rui Reis Alves e Teresa Rodeia
Structure:Francisco Salpico
Client:Particular
City:Porto Covo
Country:Portugal