在伊灵,这个两居室的住宅被坚定地缝进了街道的风景中。以后花园为界的前车库场地造成了一系列的限制,但当与整条街道一起阅读时,又产生了一系列衔接的体积。
In Ealing, this two-bedroom home is stitched assertively into the street scenography. The former garage site bounded by rear gardens created a series of constraints yet consequently generated an articulated series of volumes when read with the whole street.



主要使用三种外部材料:灰砖、黑色木材和管状金属制品,调色板很简单,粗糙的面砖和齐平的石灰砂浆接缝与更尖锐、更暗的细节形成对比。砖墙、水曲柳、水磨石砖和精致的金属栏杆构成了一个全面的视觉效果,这种简单和粗犷的装饰风格贯穿于内部空间。
Using primarily three exterior materials: grey brick, black timber, and tubular metalwork, the palette is simple where the rough facing brick and flush lime mortar joints contrast the sharper and darker detailing. The simplicity and rawness of finishing are carried through to the internal spaces were brick walls, ash joinery, terrazzo tiles, and delicate metal balustrades contribute to a comprehensive vision.



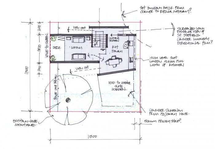
沿着隐蔽的西部边界进入住宅后,入口大厅通向一个丰富的分层布置的房间,形成一个垂直的循环脊柱。生活空间从场地前部流向后部,厨房和客厅位于最上层,充分利用了自然光。
Upon entering the home along the secluded western boundary, the entrance lobby leads to a rich split-level arrangement of rooms in a vertical spine of circulation. Living spaces flow from the front to the rear of the site with the kitchen and living room on the uppermost stories making the most of natural daylight.

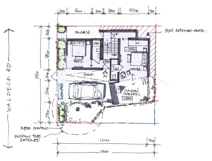
两间卧室和相关的浴室被淹没在半下沉的楼层中。一个下沉式的种植庭院通过阶梯式的砖块种植槽和黑色鹅卵石砌成的桨状楼梯进入。
Two bedrooms and associated bathrooms are submerged within the semi-sunken floors. A sunken planted courtyard is accessed via stepped brick planters and a paddle stair constructed of black cobble setts.






























Architects: Fletcher Crane Architects
Manufacturers : GIRA
General Contractor : Project 1 Design + Build
Structural Engineering : MDA Structures
Inspector : MLM
Sap Consultant : Surrey Energy Management
Joinery : Creative Edge Furniture
Metalwork : METALWORK
City : Ealing
Country : United Kingdom