在混凝土丛林中的一个盛开的花园,在那里休息,与朋友和家人一起享受,促进你的健康和心灵。在设计这个空间时,创造一个滋润和清爽的空间是主要任务。使用温暖的材料,如木材和灰泥,再加上到处都是郁郁葱葱的绿色植物,创造了一个热带和几乎有生命的环境。
A blooming garden in the concrete jungle where to rest, enjoy with friends and family and foster your health and mind. Creating a nourishing and refreshing space was the main task when designing the space. The use of warm materials such as wood and stucco, combined with the lush greeneries everywhere, creates a tropical and almost alive environment.





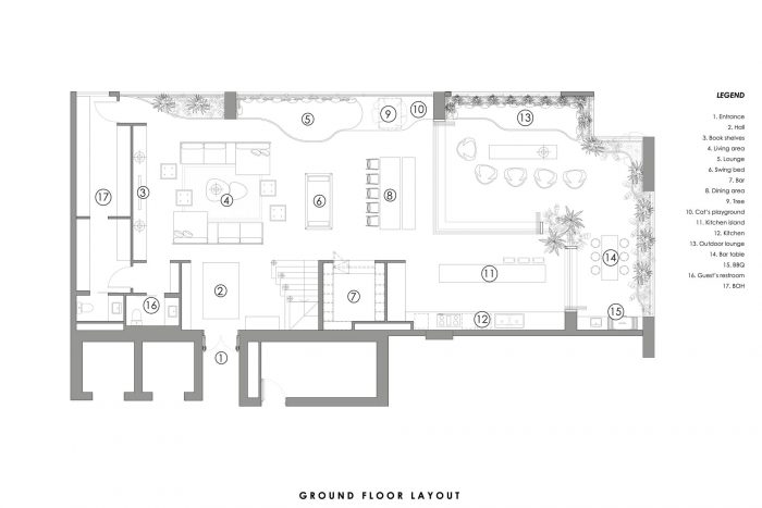
硬木柚木地板和现场浇铸的混凝土为延伸到整个空间的家具和长椅提供了形状。客厅的亮点是一个定制的模块化沙发,可以安排在家里看电影的夜晚,或者创造一个谈话的休息室。
Hardwood teak floors and cast on-site concrete give shape to the furniture and benches that stretch throughout the space. The living room is highlighted with a custom-made modular sofa that can be arranged for a stay-at-home cinema night or create a conversation lounge.


主要的空间发生器是长凳,它从房子的一角延伸到另一角,创造了房子的不同社交空间,并作为茂盛的绿色植物的一个花盆箱。室外阳台的顶部是一个绿色的天花板形式,浮动的花盆盒悬挂在板块上。这个巨大的阳台是房子的主要特征,因为它的海滩俱乐部般的氛围在西贡是独一无二的。
The main space generator is the long bench that stretches from corner to corner of the house, creating the different social spaces of the house and acting as a planter box for the lush greeneries. The outdoor terrace is topped with a green ceiling form with floating planter boxes hanging down the slab. This huge balcony is the main feature of the house as its beach club-like vibes are one of a kind in Saigon.



上层比底层更内敛,充满了各种设施,如温泉、健身房、办公室和4个房间。装饰范围从业主的精致画作到定制的藤制灯具和一辆本田67,一种越南的标志性摩托车,作为办公空间和楼梯到达的背景而悬挂。
The upper floor is more introverted than the ground floor and full of facilities such as Spa, Gym, Office, and 4 rooms. Decoration ranges from exquisite paintings from the owners to custom-made rattan lamps and a Honda 67, an iconic motorbike in Vietnam, hanging as a backdrop for the office space and the staircase arrival.









Architects: StudioDuo Architecture | Interior
Area : 470 m²
Year : 2020
Photographs :Do Sy
Manufacturers : SketchUp, AVC, AutoCAD, Bamboo Décor, Light Art, Photoshop, Toto
Lead Architects : Arturo Moreno, Sarah Jacquemond
Landscape : StudioDuo Architecture I Interior
Design Team : Tracy Nguyen
Clients : David & Martina Klein
City : Ho Chi Minh City (Saigon)
Country : Vietnam