莫雷亚克的新文化中心位于镇中心附近的景观环境中,包含了该镇的主要设施(体育场馆、学校团体、文化馆)。这个慷慨的场地,以地形为标志,为新的庆典大厅综合体提供了一个特殊的环境。
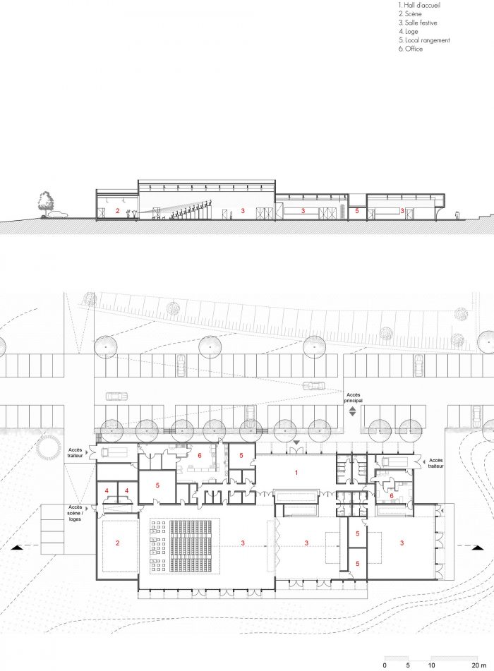
The new Cultural Center of Moréac is located near the town center in a landscaped environment containing the main facilities of the town (sports hall, school group, cultural hall). This generous site, marked by a topography, offers an exceptional setting for the new complex of festive halls.




该项目得到了市政府的支持,满足了莫雷亚克市强劲增长的新需求。该项目包括3个大型多功能宴会厅,可同时容纳750人就座,还有一个专业厨房,可提供600份膳食。空间的多功能性使得它可以提出各种必要的活动,以满足市政府的需求:音乐会、剧院、舞蹈、婚礼、活动......
The project, supported by the municipality, meets the new needs of the city of Moréac in strong growth. The project includes 3 large multipurpose ballrooms that can accommodate up to 750 people seated simultaneously and a professional kitchen serving up to 600 meals. The versatility of the spaces makes it possible to propose various activities necessary to the needs of the municipality: concert, theater, dance, wedding, events ...

设备面向北方的健身房,这两个项目之间的停车区允许两个项目的距离,并提供了一个慷慨的广场,通往综合体的入口。与建筑的矿物材料性相比,周围的植物特性得到了强调;粉色混凝土的外墙,在质量上有一定的色调,通过对比支持项目在景观中的存在。该建筑的总体体积由两个主要实体组成。这两个几何性质标志着内部空间的组织及其功能。
The equipment faces the gym in the North, the parking area between these two programs allows for the distance of the two programs and offers a generous square that leads to the entrance of the complex. The surrounding vegetal character is emphasized as opposed to the mineral materiality of the building; the facades of pink concrete, tinted in the mass, support the presence of the project in the landscape by contrast. The general volumetry of the building consists of two main entities. These two geometric natures signal the interior organization of spaces and their functions.

第一个低矮的体量位于体育馆对面,标志着建筑群的入口,它的低高度集合了背景中的房间的几何形状。在背景中,第二个特征很突出:一排三个体量从东向西爬升。这些体量象征着慷慨和雄伟的主要空间,是向景观开放的房间。
A first low volume located opposite the sports hall signals the entrance to the complex, its low altimetry assembles the geometry of the rooms in the background. In the background, a second identity stands out: three volumes in a row climb from East to West. These volumes symbolize the generous and majestic main spaces that are the rooms that open onto the landscape.



为了确认该项目在景观中的存在,建筑的材料在所有外墙上都是同质的和连续的。该项目采用了粉红色的混凝土色调,通过氧化铁赤铁矿的着色获得,表明了自己在景观中的存在。
To affirm the presence of the project in the landscape, the materiality of the building is homogeneous and continuous on all facades. The project with shades of pink concrete, obtained by the pigmentation of iron oxide hematite, asserts itself and reveals its presence in the landscape.


新的多功能厅是这样的:一个雕刻的体量,设置在其植物环境中。所创造的体量然后被塑造出来,在其内部被掏空。雕刻的半拱门强调并点缀了玻璃幕墙。然后,大厅和入口的水平带被勾勒出来,为景观提供了宽阔的开口,并通过高大的建筑体量保护其不受阳光直射。
The new multi-purpose room is as follows: a carved volume, set in its vegetal environment. The massiveness of the created volume is then shaped, hollowed out in its bowels. Carved half arch arches accentuate and punctuate the glazed curtain walls. The horizontal bands of the halls and the entrance are then outlined, offering wide openings on the landscape, protected from direct sunlight by the high masses of the construction.


















Architects: TRACKS
Area : 1950 m²
Year : 2021
Photographs :Guillaume Amat
Lead Architect : Moïse Boucherie
Design Team : Jérémy Griffon, Mathieu Lamour, Sixtine Danielou
Filmmaker : Matthieu Boivineau
City : Moréac
Country : France