ULA咖啡馆位于科林伍德的前约克郡啤酒厂大厦,体现了新旧的融合。该设计展示了历史、现在和未来的共存,同时保留了遗产建筑的意义和啤酒厂文化。
ULA café is located in the former Yorkshire Brewery Tower in Collingwood and embodies a blend of old and new. The design showcases the coexistence of history, present and future while preserving the heritage building's significance and brewery culture.




客户的愿景是将一个遗产空间改造成一个邻里咖啡馆,利用原有建筑元素所带来的独特机会。我们的设计方法旨在创造新的姿态来回应现有的特征,并永恒地共存。新建的形式反映了独立的窗户和门,在内部和外部之间建立了联系。
The client's vision is to transform a heritage space into a neighborhood café, leveraging the unique opportunities presented by the original building elements. Our design approach aimed to create new gestures in response to existing features and coexist timelessly. The newly built forms reflect individual windows and doors, bridging connections between the inside and outside.


对细节的关注是至关重要的,以确保新的元素与遗产墙及其意义完美融合。柜台的颜色和断裂线的细节延续了遗产墙,同时又因不同的用途而不同。水泥渲染的表面带来了坚固性,并创造了一种永恒的感觉,而类似于蓝石的瓷片和板上的凸起地板则延续了外部的地板装饰和遗产塔基。这种设计还在下面创造了一个缓冲空间,最大限度地减少了对旧建筑结构的湿气和潮湿的影响。
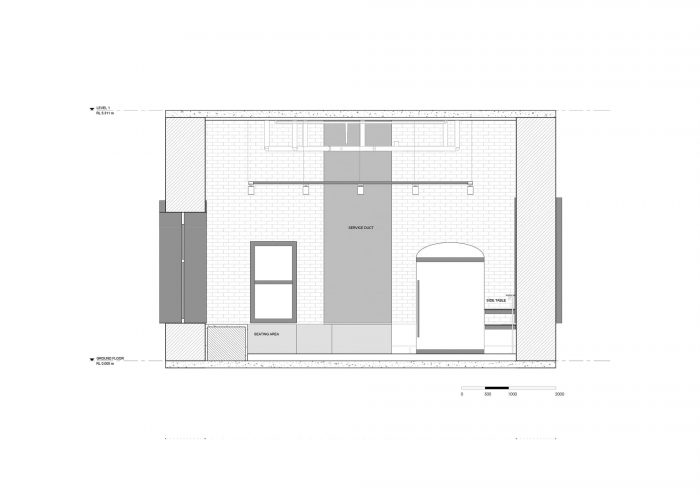
Attention to detail was crucial to ensure the new elements blended seamlessly with the heritage walls and their significance. The counter color and break line detail continue the heritage walls while differing for various uses. The cement render finish brought in solidity and created a sense of timelessness, while the bluestone-like porcelain tiles with a raised floor on the slab continued the external floor finishes and the heritage tower base. This design also created a buffer space underneath, minimizing the moisture and damp impact on the old building structure.


新的轨道照明坐落在原来的特色钢梁的高度,为空间的气氛增加了灵活性。新的推拉门在关闭时与墙上的特色涂鸦图案相接触,为空间提供了独特的触感。
New track lighting sits at the height of the original feature steel beams, adding flexibility to the atmosphere of the space. The new sliding door engages with the feature graffiti pattern on the wall when it's closing, providing a unique touch to the space.


这个项目通过形式、材料、颜色和每一个细节展示了历史元素和新的干预措施之间的共存。相同点和不同点的共存,邀请顾客参与到从历史到现在和未来的时间线的对话中。该项目采取了一种深思熟虑的方法,既庆祝了遗产特征,又为未来的保存和保护提供了保障。该设计表明,遗产地可以被尊重地更新,同时保留一种谦逊和优雅的感觉,不会产生冲突或对比。新空间与现有空间的连续性创造了与历史更深的联系和对未来的感觉。
This project showcases the coexistence between historical elements and new interventions through form, materiality, color, and every detail. The coexistence of similarities and differences invites customers to participate in a dialogue that spans the timeline from history to the present and future. The project has taken a thoughtful approach to both celebrating heritage features and future-proofing conservation and protection. The design demonstrates that heritage sites can be respectfully updated while retaining a sense of humility and elegance without conflict or contrast. The continuity of the new space with the existing creates a deeper connection to history and a sense of the future.

处理遗产地的方法强调连续性、共存性和永恒性,而不产生冲突或对比。这种方法在所有的设计方面和规模上都得到了一致的实施,以确保新与旧的无缝融合。
The approach to heritage sites emphasizes continuity, coexistence, and timelessness without creating conflict or contrast. This approach is consistently implemented across all design aspects and scales to ensure seamless integration of the new with the old.






Architects: SuiL
Area : 150 m²
Year : 2022
Photographs :Peter Clarke Photography
Manufacturers : Luxury Concrete, Signorino
Builder : SGW Construction
Project Team : Jingcong Liu, Songyun Sui, Ke Chen
Client : ULA Café
City : Collingwood
Country : Australia