位于Barra do Una(位于圣保罗市附近的海滩)的住宅公寓,由巴西建筑事务所Apiacás Arquitetos签署的Pavilion Una项目以可行性为前提,考虑到材料的选择,主要集中在构造细节上,能够组织装配系统。因此,该结构是由标准化和模块化的元素组成的:基础是用混凝土执行的,然后是Cumaru木材的支柱和梁,战略性地放置在中心轴线上,以便给构成外墙的枢轴门更大的自由。
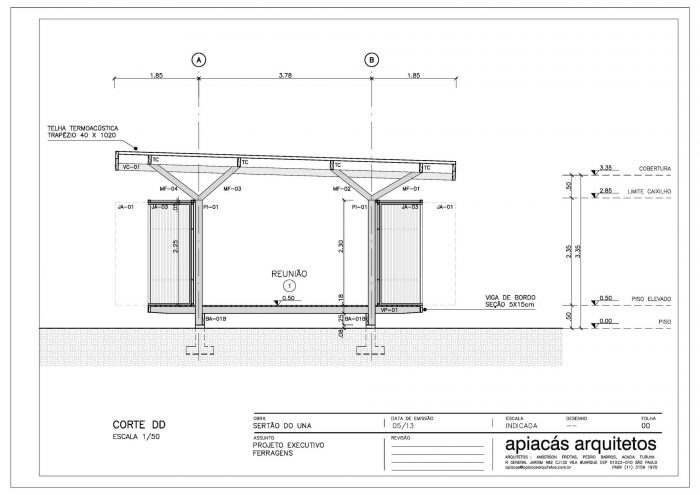
Located in a residential condominium in Barra do Una (a beach located near of São Paulo city), the project Pavilion Una signed by the brazilian architecture office Apiacás Arquitetos had the feasibility as a premise, considering the choice of materials and mainly focusing on the constructive details, capable of organizing the assembly system. Therefore, the structure is made up of standardized and modular elements: the foundation was executed in concrete, followed by pillars and beams in Cumaru wood, strategically placed in central axes in order to give greater freedom to the pivotal doors that make up the facade.



这些封闭装置由穿插的木板条组成,最终起到了垂直砖的作用,发挥了保护建筑和揭示插入的大西洋森林的双重功能。地面被悬空50厘米,以避免因靠近现有的溪流而发生任何水灾。所有的连接都是用金属件,以便于组装,并保证件与件之间有更好的结构性能。这样一来,木制配件的执行就变得更加简单和快捷。屋顶采用金属瓦片,周围有一个连续的关闭,有利于空气的对流循环,此外还可以平衡关闭面板所过滤的光线。
These closures consist of interspersed wooden slats that end up acting as vertical bricks, exerting a double function of protecting the construction and revealing the Atlantic Forest where it is inserted. The ground is suspended 50 cm from the ground in order to avoid any flooding due to its proximity to an existing stream. All the connections were made in metal parts in order to facilitate the assembly and guarantee better structural performance for the meeting of pieces. In this way, the wooden fittings consequently become simpler and faster in their execution. The roof, in metallic tiles, has a continuous shutdown, all around the perimeter, favoring the circulation of the air by convection, in addition to balancing the light filtered by the closing panels.



这套家具也是根据项目的最初前提而理想化的:由同一种木材制成,它们遵循为工作设计的严谨和简单的构造逻辑。重申了我们的前提,即无论物体的规模如何,都要关注构造上的一致性。
The set of furniture was also idealized according to the initial premises of the project: made of the same kind of wood, they follow the rigor and simplicity of the constructive logic designed for the work. Reaffirming our premise of looking at a tectonic coherence no matter the scale of the object.






















Architects: Apiacás Arquitetos
Area: 240 m²
Year: 2013
Photographs: Leonardo Finotti
Manufacturers: Inova, Ipê Telhas, Maxi Lajes
City: SÃO SEBASTIÃO
Country: Brazil